Aktuelle Immobilien.
Startseite > Kauf > Immobilienangebot
Schöner Wohnen. 180m²-Maisonette-Wohnung zwischen Leichlingen und Aufderhöhe.
42699 Solingen, Maisonettewohnung zum Kauf
Kontaktdaten
-
NameFrau Ellen Jaros
-
FirmaKUBIKOM Immobilien GmbH
-
AnschriftKeldersstr. 6
42697 Solingen -
E-Mail
-
E-Mail
-
Telefon
-
Telefon
Objektdaten
-
Objekt IDEJ2279
-
ObjekttypenMaisonettewohnung, Wohnung
-
Adresse42699 Solingen
-
Etage1
-
Etagen im Haus2
-
Wohnfläche ca.181,45 m²
-
Gesamtfläche ca.181,45 m²
-
Zimmer4
-
Schlafzimmer3
-
Badezimmer1
-
Separate WC1
-
Balkone1
-
Terrassen1
-
HeizungsartEtagenheizung
-
Wesentlicher EnergieträgerGas
-
Baujahr1913
-
Zustandmodernisiert
-
Verfügbar abnach Vereinbarung
-
Stellplatz:1 Stellplatz
-
Carport:1 Stellplatz
-
Käuferprovision3,57% inkl. MwSt.
-
Kaufpreis429.000 EUR
Ausstattung / Merkmale
- ✓ Balkon
- ✓ Keller
- ✓ Separates WC
- ✓ Terrasse
Energieausweis
-
EnergieausweistypVerbrauchsausweis
-
Gültig bis04.07.2034
-
GebäudeartWohngebäude
-
Baujahr lt. Energieausweis1913
-
PrimärenergieträgerGas
-
Endenergieverbrauch239,20 kWh/(m²·a)
-
EnergieeffizienzklasseG
Objektbeschreibung
Beschreibung
Diese außergewöhnliche Eigentumswohnung vereint den Charme eines gepflegten Altbaus mit dem Komfort moderner Wohnqualität. Sie erstreckt sich über das erste Obergeschoss und das Dachgeschoss eines repräsentativen Zweifamilienhauses aus dem Jahr 1913 und bietet auf rund 181 m² Wohnfläche ein großzügiges Zuhause mit dem besonderen Gefühl, „im eigenen Haus“ zu wohnen.
Der separate Eingang, der Zugang über den geschützten Innenhof sowie mehrere private Außenbereiche verleihen dieser Einheit eine seltene Eigenständigkeit – ideal für anspruchsvolle Paare oder Familien, die Wert auf Individualität, Raumgefühl und architektonische Authentizität legen.
Historischer Charakter trifft gepflegte Wohnqualität
Das Gebäude wurde 1998/99 grundlegend saniert – einschließlich Dach, Fenster, Elektrik und Gasetagenheizung – und seitdem kontinuierlich instandgehalten. Der Spitzbodenausbau in 2008/2009 erweiterte die Wohnfläche und sorgt heute für ein luftiges Raumgefühl mit besonderem Charme.
Der Innenausbau verbindet liebevolle Altbaudetails mit hochwertigen Materialien: Holzdielenboden (2010) im Wohnbereich, Holzparkett (2018) im Gästezimmer sowie hochwertiger Teppichboden (2020) im Schlafzimmer schaffen eine warme und wohnliche Atmosphäre.
2024/25 wurden zudem umfangreiche Dachreparaturen und Verbesserungen vorgenommen, um die Liegenschaft auch langfristig in einem sehr gepflegten Zustand zu erhalten. Die Fassade erhielt bereits 2017 einen neuen Anstrich.
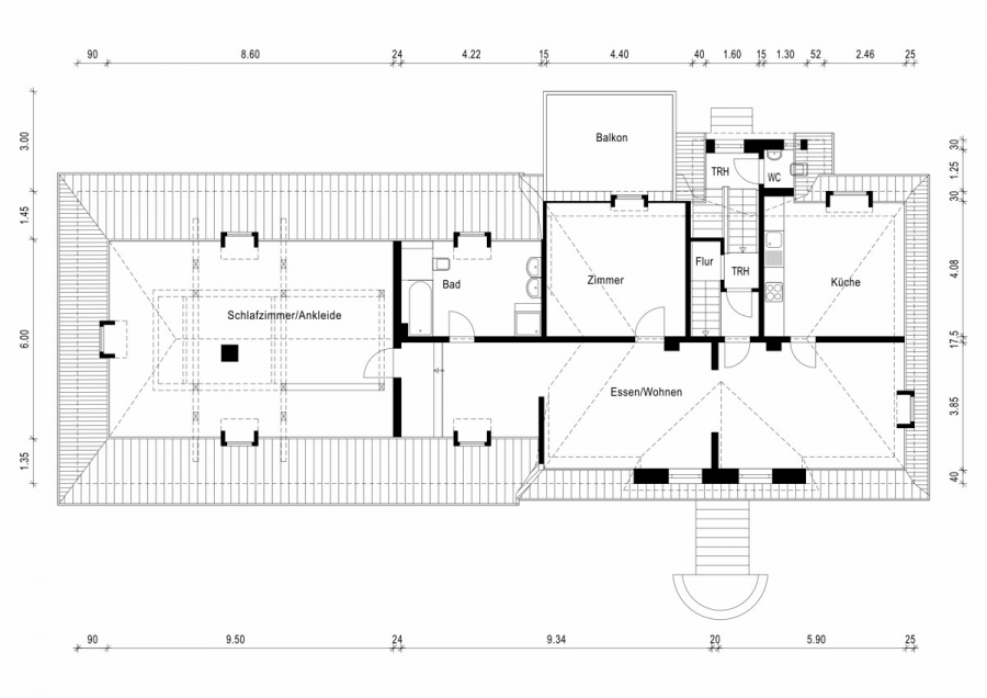
Raumaufteilung & Ausstattung
Die Wohnung beeindruckt durch ihre lichte Großzügigkeit und die durchdachte Gliederung über zwei Ebenen:
1. Obergeschoss: Großzügiger Wohn- und Essbereich mit Zugang zum Holzbalkon (2018), großzügiges Schlafzimmer, separate Küche, Gästezimmer, modernes Bad sowie ein Gäste-WC auf der Zwischenebene.
Dachgeschoss: Offen gestalteter Wohn- oder Arbeitsbereich mit gemütlicher Atmosphäre unter den Dachschrägen.
Ein besonderes Highlight ist die Terrasse im Innenhof, die zum Gemeinschaftseigentum zählt, aber aktuell allein von den Eigentümern der Wohnung genutzt wird und ein charmantes, geschütztes Plätzchen im Freien bietet – ideal für entspannte Stunden im Sommer.
Die Nebenkosten betragen aktuell ca. 300 € im Monat (inkl. Gärtnerkosten für Gemeinschaftsflächen). Zusätzlich wird eine Erhaltungsrücklage von ca.108 € im Monat geleistet.
Die Rücklagen der Eigentümergemeinschaft wurden im Zuge der jüngsten Dachsanierung nahezu vollständig verwendet, was eine umfassende Instandsetzung sicherstellt.
Der Gemeinschaftsbereich und Keller präsentieren sich sehr gepflegt und werden verantwortungsbewusst instandgehalten.
Zur Wohnung gehören ein Carport-Stellplatz sowie ein weiterer Außenstellplatz im Innenhof.
Diese Wohnung ist eine Rarität – großzügig, individuell und mit viel Liebe zum baulichen Detail gepflegt. Sie bietet Raum für stilvolles Wohnen in einem gewachsenen Umfeld, das Ruhe und Eigenständigkeit vereint.
Für weitere Informationen oder zur Vereinbarung eines Besichtigungstermins steht Ihnen Frau Ellen Jaros gerne zur Verfügung.
Ausstattung
– Baujahr des Hauses: 1913
– Grundsanierung: 1998/99 (Gasetagenheizung, Elektrik, Fenster, Dachdämmung)
– Wohnungslage: 1. Obergeschoss + Dachgeschoss (Maisonette) mit separatem Eingang
– Wohnfläche: ca. 181,45 m²
– Zimmeranzahl: 4 großzügige Zimmer
– Kein Denkmalschutz – flexible Modernisierung möglich
– Altbaucharme: hohe Decken, klassische Grundstruktur, sehr gepflegter Zustand
Modernisierungen & bauliche Maßnahmen
– 2008/09: Ausbau des Spitzbodens zur Wohnfläche
– 2010: Holzdielenboden im Wohnbereich
– 2017: neuer Fassadenanstrich
– 2018: Holzbalkon mit Terrassentür, Parkett im Gästezimmer
– 2020: neuer Teppich im Schlafzimmer
– 2024/25: umfassende Reparatur und Verbesserung der Dachflächen
Ausstattung & Besonderheiten
– Separater Zugang über den Innenhof – Gefühl wie im eigenen Haus
– Terrassenbereich zur alleinigen Nutzung unter dem Holzbalkon
- großes Tageslichtbad im OG, Gäste-WC auf Zwischenebene
– Gepflegte Einbauküche vorhanden
– Sehr gepflegter Gemeinschaftskeller und Treppenhausbereich
Grundstück & Außenflächen
– Grundstücksgröße gesamt: 2.740 m² (mehrere Häuser, Gemeinschaftseigentum)
– 1 Carport-Stellplatz im Hof + 1 zusätzlicher Außenstellplatz
– Gärtnerkosten Gemeinschaftsfläche ab 2025: ca. 50 €/Monat
Sonstiges
Der Kaufpreis für die Immobilie beträgt 429.000,00 € zuzüglich der vom Käufer zu zahlenden Provision in Höhe von 3,57 % inkl. gesetzl. Mehrwertsteuer. Wir sind vom Eigentümer allein beauftragt, Verhandlungen mit Interessenten zu führen.
Der Makler-Vertrag mit uns kommt durch schriftliche Vereinbarung oder durch die Inanspruchnahme unserer Maklertätigkeit auf der Basis des Objekt-Exposés und seiner Bedingungen zustande. Die Käufercourtage ist bei notariellem Vertragsabschluss verdient und fällig. Grunderwerbsteuer, Notar- und Gerichtskosten trägt der Käufer. Sollte das von uns nachgewiesene Objekt bereits bekannt sein, teilen Sie uns dies bitte unverzüglich mit. Die Weitergabe dieses Exposés an Dritte ohne unsere Zustimmung löst gegebenenfalls Courtage- bzw. Schadensersatzansprüche aus.
Kleingedrucktes:
Alle Angaben basieren ausschließlich auf Informationen, die uns von unserem Auftraggeber übermittelt wurden. Wir übernehmen keine Gewähr für die Vollständigkeit, Richtigkeit und Aktualität dieser Angaben. Zwischenverkauf bleibt vorbehalten.
Lage
Die angebotene Wohnung befindet sich in angenehm zurückversetzter Lage im beliebten Solinger Stadtteil Aufderhöhe. Das Gebäude liegt geschützt in dritter Reihe, wodurch es von der Straße abgeschirmt ist – ideal für alle, die eine ruhige Wohnatmosphäre in einem gewachsenen Umfeld mit gepflegter Nachbarschaft schätzen. Trotz der geschützten Lage ist das Haus problemlos mit dem Auto erreichbar, sodass eine bequeme Zufahrt jederzeit möglich ist.
Die Lage bietet eine gelungene Mischung aus Naherholung, Wohnkomfort und Verkehrsanbindung. In unmittelbarer Nähe laden Grünflächen und Naherholungsgebiete zu Spaziergängen, Radtouren oder entspannten Stunden im Freien ein. Die Wupper mit ihren Uferwegen sowie der Einstieg in das Bergische Wanderland sind in wenigen Minuten mit dem Fahrrad oder Auto erreichbar – ein echter Vorteil für Naturliebhaber.
Gleichzeitig überzeugt die Lage durch eine gute Infrastruktur: Einkaufsmöglichkeiten, Ärzte, Apotheken, Cafés und Restaurants finden sich im direkten Umfeld. Auch Kindergärten, Schulen und Sporteinrichtungen sind schnell erreichbar. Das nahe gelegene Zentrum von Solingen-Ohligs bietet darüber hinaus zahlreiche weitere Angebote und überzeugt mit seinem belebten Stadtbild und dem ICE-Bahnhof, der schnelle Verbindungen in die Region ermöglicht.
Pendler profitieren von der Nähe zu den Autobahnen A3 und A46, die innerhalb von ca. 10–15 Minuten erreichbar sind. So bestehen hervorragende Verbindungen in die umliegenden Städte wie Düsseldorf, Köln, Leverkusen, Wuppertal, Langenfeld und Leichlingen.
Insgesamt bietet die Wohnlage in Solingen-Aufderhöhe einen idealen Rückzugsort mit urbaner Anbindung – perfekt für Paare, kleine Familien oder Einzelpersonen, die ein Zuhause in ruhiger Lage suchen, ohne auf die Vorteile der Stadt verzichten zu wollen.
42699 Solingen, Deutschland (auf Google Maps ansehen)






















