Aktuelle Immobilien.
Startseite > Kauf > Immobilienangebot
Raum für Familie und Anspruch – Modernes Reihenendhaus mit Garten und vier Zimmern.
42655 Solingen, Reihenendhaus zum Kauf
Kontaktdaten
-
NameFrau Ellen Jaros
-
FirmaKUBIKOM Immobilien GmbH
-
AnschriftKeldersstr. 6
42697 Solingen -
E-Mail
-
E-Mail
-
Telefon
-
Telefon
Objektdaten
-
Objekt IDEJ2234
-
ObjekttypenHaus, Reihenendhaus
-
Adresse42655 Solingen
-
Wohnfläche ca.128 m²
-
Grundstück ca.234 m²
-
Gesamtfläche ca.128 m²
-
Zimmer4
-
Schlafzimmer3
-
Badezimmer1
-
Terrassen1
-
HeizungsartZentralheizung
-
Wesentlicher EnergieträgerGas
-
Baujahr2005
-
Stellplatz:3 Stellplätze
-
Käuferprovision3,57% inkl. MwSt.
-
Kaufpreis475.000 EUR
Ausstattung / Merkmale
- ✓ Keller
- ✓ Stellplatz
- ✓ Terrasse
Energieausweis
-
EnergieausweistypVerbrauchsausweis
-
Gültig bis26.10.2035
-
GebäudeartWohngebäude
-
Baujahr lt. Energieausweis2005
-
PrimärenergieträgerGas
-
Endenergieverbrauch55,20 kWh/(m²·a)
-
EnergieeffizienzklasseB
Objektbeschreibung
Beschreibung
Dieses gepflegte Reihenendhaus aus dem Baujahr 2004/05 bietet anspruchsvollen Familien ein großzügiges Zuhause mit durchdachtem Grundriss, zeitgemäßer Ausstattung und hervorragender Energieeffizienz. Mit einer Wohnfläche von ca. 128 m², verteilt auf vier bis fünf Zimmer, einem sonnigen Garten und bis zu drei Pkw-Stellplätzen, vereint das Haus Funktionalität und Wohnqualität auf hohem Niveau – perfekt für Familien mit dem Wunsch nach Raum zur persönlichen Entfaltung.
Der flexible Grundriss des Hauses folgt modernen Ansprüchen an Offenheit und Flexibilität: Der großzügige Wohn- und Essbereich bildet das Herzstück des Hauses und bietet direkten Zugang zur Terrasse und in den gepflegten Garten – ein idealer Ort für Familienleben, Entspannung und gesellige Stunden. Die großzügigen Fensterflächen sorgen für ein helles, einladendes Ambiente und lassen sich dank vorhandener Jalousien komfortabel beschatten. Die Küche, deren Einrichtung nach Absprache übernommen werden kann und ein Gäste-WC mit Fenster befinden sich direkt am Eingang.
Im Obergeschoss stehen zwei bis drei Schlafzimmer zur Verfügung, die sich flexibel als Kinder-, Arbeits- oder Gästezimmer nutzen lassen.
Ein weiteres Highlight ist das komplett wohnlich ausgebaute Studio im 2. Obergeschoss mit eingebauter Sauna. Eine Wellnessoase im eigenen Haus oder ein zusätzliches Zimmer.
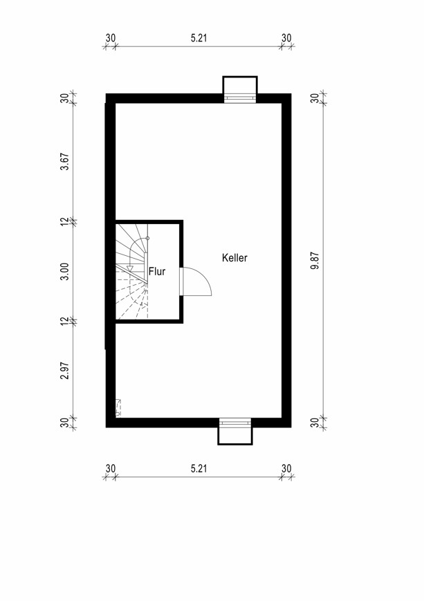
Das Haus ist vollunterkellert und sorgt mit großzügigen Räumen für zusätzliche Nutzfläche für Hobby, Hauswirtschaft oder Stauraum.
Als Niedrigenergiehaus konzipiert, erfüllt das Haus somit bereits zum Zeitpunkt des Baus erhöhte Anforderungen an Energieeffizienz – ein deutlicher Vorteil im Hinblick auf Betriebskosten und ökologische Verantwortung. Aufgrund des jungen Baujahres besteht kein akuter Modernisierungsbedarf – das Haus ist in einem sehr gepflegten Zustand und kann ohne große Maßnahmen bezogen werden.
Zum Haus gehört ein Grundstück von insgesamt 234 m², das neben dem Garten auch Zuwegungen und Außenbereiche umfasst. Bis zu drei Außenstellplätze (je nach Größe der Fahrzeuge) sorgen für komfortables Parken – auch für Besucher oder größere Haushalte.
Dieses moderne Reihenendhaus überzeugt durch seine klare Architektur, durchdachte Raumaufteilung und nachhaltige Bauweise. Es eignet sich ideal für Familien, die ein zeitgemäßes Zuhause in ruhiger, aber gut angebundener Lage suchen – mit ausreichend Platz zum Leben, Wachsen und Wohlfühlen.
Für weitere Informationen oder die Vereinbarung eines Besichtigungstermins steht Ihnen Frau Ellen Jaros gerne zur Verfügung.
Ausstattung
- Reihenendhaus
- Baujahr 2004/2005
- Wohnfläche: ca. 128 m²
- Grundstücksgröße: 234 m² (Gebäude- und Freifläche zzgl. Miteigentumsanteilen)
- Zimmeranzahl: 4–5 Zimmer
- Voll unterkellert
- bis zu 3 Pkw-Stellplätze
- Garten mit Terrasse
- Helle Wohnräume mit großen Fensterflächen
- Jalousien an den Fenstern
- Niedrigenergiehaus – energieeffiziente Bauweise
- Gepflegter Gesamtzustand – direkt bezugsfertig
- Ruhige, familienfreundliche Wohnlage
Sonstiges
Der Kaufpreis für die Immobilie beträgt 475.000,00 € zuzüglich der vom Käufer zu zahlenden Provision in Höhe von 3,57 % inkl. gesetzl. Mehrwertsteuer. Wir sind vom Eigentümer allein beauftragt, Verhandlungen mit Interessenten zu führen.
Der Makler-Vertrag mit uns kommt durch schriftliche Vereinbarung oder durch die Inanspruchnahme unserer Maklertätigkeit auf der Basis des Objekt-Exposés und seiner Bedingungen zustande. Die Käufercourtage ist bei notariellem Vertragsabschluss verdient und fällig. Grunderwerbsteuer, Notar- und Gerichtskosten trägt der Käufer. Sollte das von uns nachgewiesene Objekt bereits bekannt sein, teilen Sie uns dies bitte unverzüglich mit. Die Weitergabe dieses Exposés an Dritte ohne unsere Zustimmung löst gegebenenfalls Courtage- bzw. Schadensersatzansprüche aus.
Kleingedrucktes:
Alle Angaben basieren ausschließlich auf Informationen, die uns von unserem Auftraggeber übermittelt wurden. Wir übernehmen keine Gewähr für die Vollständigkeit, Richtigkeit und Aktualität dieser Angaben. Zwischenverkauf bleibt vorbehalten.
Lage
Das zum Kauf angebotene Einfamilienhaus befindet sich am Anfang einer angenehm ruhigen Anwohnerstraße und einer Haupstraße im östlichen Stadtgebiet von Solingen. Die Umgebung ist geprägt von gepflegten Ein- und Zweifamilienhäusern sowie einer freundlichen Nachbarschaft – ideal für Familien, Paare oder alle, die ein entspanntes Wohnumfeld in stadtnaher Lage suchen.
Sie profitieren hier von einer sehr guten Infrastruktur.
Einkaufsmöglichkeiten, Supermärkte, Apotheken, Ärzte und Bäckereien sind bequem mit dem Fahrrad oder Auto in wenigen Minuten erreichbar. Auch Kindergärten und Schulen befinden sich in der Nähe, was die Lage besonders für Familien attraktiv macht.
Die grüne Umgebung bietet zahlreiche Freizeit- und Erholungsmöglichkeiten. Nahegelegene Grünflächen, mehrere Spielplätze sowie Rad- und Wanderwege laden zu aktiven Nachmittagen und entspannten Spaziergängen im Grünen ein.
Auch die Verkehrsanbindung lässt kaum Wünsche offen: Die Autobahnen A3 und A46 sind in etwa 10 bis 15 Minuten mit dem Auto erreichbar und ermöglichen eine zügige Verbindung nach Düsseldorf, Köln, Wuppertal und Leverkusen. Der Bahnhof Solingen-Ohligs mit S-Bahn-, Regional- und ICE-Verbindungen ist ebenfalls gut erreichbar und macht den Standort auch für Pendler äußerst attraktiv.
Insgesamt bietet diese Lage eine ausgewogene Kombination aus Ruhe, Familienfreundlichkeit und urbaner Nähe – ein ideales Umfeld für alle, die ein langfristiges Zuhause in guter Lage suchen.
42655 Solingen, Deutschland (auf Google Maps ansehen)





















