Aktuelle Immobilien.
Startseite > Kauf > Immobilienangebot
Exklusives Wohnen in historischem, denkmalgeschütztem Vierkanthof. Stilvolle Maisonettewohnung.
41472 Neuss / Holzheim, Maisonettewohnung zum Kauf
Kontaktdaten
 
			- 
NameFrau Angelika Sänger
- 
FirmaKUBIKOM Immobilien GmbH
- 
AnschriftZum Stadion 73
 40764 Langenfeld
- 
E-Mail
- 
E-Mail
- 
Telefon
- 
Telefon
- 
Mobil
- 
Fax004921731650532
Objektdaten
- 
Objekt IDAS 2196
- 
ObjekttypenMaisonettewohnung, Wohnung
- 
Adresse41472 Neuss / Holzheim
- 
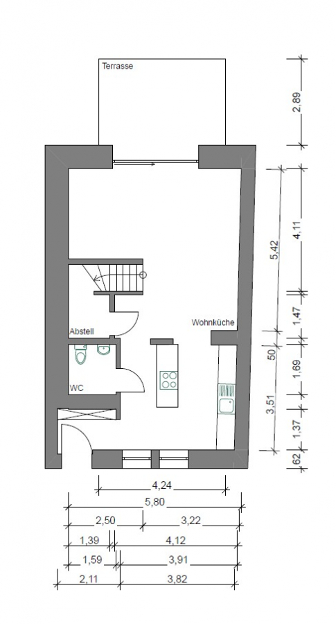
Wohnfläche ca.126,01 m²
- 
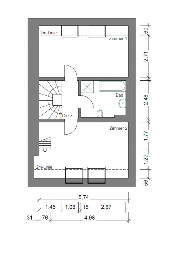
Zimmer3
- 
Schlafzimmer2
- 
Badezimmer1
- 
Separate WC1
- 
Terrassen2
- 
Wesentlicher EnergieträgerLuft/Wasser Wärmepumpe
- 
Verfügbar ab01.10.2025
- 
Stellplatz:1 Stellplatz
- 
Carport:1 Stellplatz
- 
Käuferprovision3,57% inkl. MwSt.
- 
Kaufpreis575.000 EUR
Ausstattung / Merkmale
- ✓ Kein Keller
- ✓ Separates WC
- ✓ Terrasse
Energieausweis
- 
Energieausweisnicht erforderlich
Objektbeschreibung
Beschreibung
Inmitten des traditionsreichen Neusser Stadtteils Holzheim liegt ein einzigartiges Wohnensemble: ein denkmalgeschützter Vierkanthof, der im Zuge einer liebevoll und detailreich durchgeführten Kernsanierung in den Jahren 2010/2011behutsam neu interpretiert wurde. In der rechten Remise dieser eindrucksvollen Hofanlage befindet sich eine außergewöhnliche Maisonettewohnung, die auf rund 120 m² Wohnfläche historischen Charme, charaktervolle Architektur und modernen Wohnkomfort auf elegante Weise vereint.
Der Eingangsbereich öffnet sich in einen großzügigen, lichtdurchfluteten Wohn- und Essbereich mit offener Designküche, die durch hochwertige Ausstattung und durchdachte Funktionalität überzeugt. Zwei separate Terrassen bieten Freiraum zu beiden Seiten: vorne mit Blick in den gepflegten Innenhof, hinten mit direktem Zugang zum eigenen Gartenanteil – ein idyllischer Rückzugsort mit Privatsphäre. Das stilvoll gestaltete Gäste-WC sowie der angrenzende Abstellraum verfügen über überdurchschnittlich hohe flächenbündige Türen, die die besondere Raumwirkung zusätzlich betonen.
Eine geradlinige Eichentreppe führt in das Obergeschoss, dessen offene Holzbalken und großzügige Deckenhöhe dem Raum Weite und architektonische Präsenz verleihen. Zwei flexibel nutzbare Zimmer sowie ein elegantes Bad mit Eckwanne, bodengleicher Dusche und separater Waschnische mit Trocknerstellplatz bieten hohen Komfort und gestalterische Qualität. Ein besonderes Highlight: Über eine freistehende Holztreppe erschließt sich in einem der Zimmer eine offene Galerieebene mit großen Dachflächenfenstern und sichtbarem Gebälk – ein atmosphärisch heller Ort, ideal als Rückzugs-, Arbeits- oder Leseplatz.
Geöltes Eichendielenparkett verleiht den Räumen eine warme, natürliche Anmutung, glatt gespachtelte, farbig gestaltete Akzente unterstreichen den klaren, zeitlosen Stil. Die effiziente Fußbodenheizung wird über eine moderne Wärmepumpe mit Gasunterstützung betrieben – ökologisch durchdacht und wirtschaftlich überzeugend.
Die maßgefertigte Küche von next125 fügt sich harmonisch in das gestalterische Gesamtkonzept ein. Hochwertige Geräte von Gaggenau, Miele und Siemens sowie eine elegante Granit-Arbeitsplatte in „Nero Assoluto“ erfüllen höchste Ansprüche an Design und Funktionalität – ergänzt wird dieses stimmige Gesamtbild durch weitere pfiffige Einbauten, die ebenfalls in der Immobilie verbleiben.
Zwei zur Wohnung gehörende Stellplätze – ein Carport mit Wallbox sowie ein Außenstellplatz – befinden sich direkt an der Hofanlage. Ein abgeschlossener Fahrradunterstand sowie ein gemeinschaftlich nutzbarer Spielplatz mit hochwertigen Holzgeräten runden das Gesamtbild ab.
Die Pflege der Außenanlagen erfolgt wöchentlich durch einen Hausmeisterservice, ergänzt durch einen halbjährlich beauftragten Gärtner. Den Rasenschnitt im Gemeinschaftsbereich übernimmt jede Partei zweimal jährlich selbst – eine gemeinschaftlich beschlossene Maßnahme zur Kostenoptimierung.
Eine professionelle Hausverwaltung betreut die Belange der Eigentümer zuverlässig und sorgt für eine nachhaltige Instandhaltung der Immobilie. Notwendige Maßnahmen zur Werterhaltung werden zeitnah umgesetzt. Das monatliche Hausgeld beträgt derzeit 587€ inkl. eine Zuführung zur Instandhaltungsrücklage in Höhe von 62,27€. Die Höhe der Gesamtrücklage liegt bei 83.147,21€, anteilig 4.348,48€ (Stand: 31.12.2023).
Diese Wohnung ist weit mehr als ein Ort zum Wohnen – sie ist Ausdruck eines besonderen Lebensstils. Für Menschen, die Authentizität, Qualität und architektonische Individualität schätzen, bietet sie ein Zuhause mit Charakter.
Für eine persönliche Besichtigung steht Ihnen Frau Angelika Sänger jederzeit gerne zur Verfügung.
Ausstattung
Exklusive Ausstattung mit Stil, Komfort und moderner Technik
Innenausstattung:
- Hochwertiges Eichendielenparkett, geölt, verleiht sämtlichen Wohnräumen ein edles, natürliches Ambiente
- Fußbodenheizung in allen Räumen sorgt für behaglichen Wohnkomfort
- Glatt gespachtelte und farbig gestaltete Wände in zeitloser Eleganz
- Exklusive Sanitärobjekte und geschmackvoll ausgewählte Fliesen
- Pfiffige, sinnvolle Einbauten in verschiedenen Räumen
Küche:
- Anspruchsvoll konzipierte Küche der Marke next125 überzeugt durch ihr durchdachtes Design und erstklassige Ausstattung: Gaggenau-Induktionskochfeld, Gaggenau-Dampfgarer mit automatischer Wasserzufuhr, Gaggenau-Backofen und -Wärmeschublade, hochwertige Miele-Geschirrspülmaschine, Siemens-Kühlschrank, massive Granit-Arbeitsplatte in „Nero Assoluto“ – äußerst robust und edel
Technik & Nachhaltigkeit:
- Wärmepumpe mit Gasunterstützung für eine effiziente und zukunftsorientierte Energieversorgung
- Eigene Gastherme als zusätzliche Heizquelle
- E-Ladestation für Elektrofahrzeuge direkt an den Stellplätzen
- Zwei PKW-Stellplätze: ein Carport sowie ein weiterer Außenstellplatz
- Abschließbarer Fahrradunterstand in unmittelbarer Nähe der Parkfläche
- Keine Energieausweispflicht aufgrund des Denkmalschutzes – dennoch liegt ein freiwillig erstellter Energieausweis vor, der die Immobilie in die Energieeffizienzklasse A einstuft
Zusätzliche Highlights:
- Freigelegtes Mauerwerk als stilvoller Blickfang im Innenbereich
- Kindgerechter Gemeinschaftsspielplatz mit hochwertigen Spielgeräten aus Holz
Sonstiges
Der Kaufpreis für die Immobilie beträgt 575.000,00€ zuzüglich der vom Käufer zu zahlenden Provision in Höhe von 3,57 % inkl. gesetzl. Mehrwertsteuer. Wir sind vom Eigentümer allein beauftragt, Verhandlungen mit Interessenten zu führen.
Der Makler-Vertrag mit uns kommt durch schriftliche Vereinbarung oder durch die Inanspruchnahme unserer Maklertätigkeit auf der Basis des Objekt-Exposés und seiner Bedingungen zustande. Die Käufercourtage ist bei notariellem Vertragsabschluss verdient und fällig. Grunderwerbsteuer, Notar- und Gerichtskosten trägt der Käufer. Sollte das von uns nachgewiesene Objekt bereits bekannt sein, teilen Sie uns dies bitte unverzüglich mit. Die Weitergabe dieses Exposés an Dritte ohne unsere Zustimmung löst gegebenenfalls Courtage- bzw. Schadensersatzansprüche aus.
Kleingedrucktes:
Alle Angaben basieren ausschließlich auf Informationen, die uns von unserem Auftraggeber übermittelt wurden. Wir übernehmen keine Gewähr für die Vollständigkeit, Richtigkeit und Aktualität dieser Angaben. Zwischenverkauf bleibt vorbehalten.
Lage
Die zum Verkauf stehende Eigentumswohnung befindet sich in einem charmant restaurierten Vierkanthof – dem Zuckerhof – in Neuss-Holzheim, einem der begehrtesten Stadtteile im grünen Süden von Neuss. Die Lage verbindet auf harmonische Weise ländliche Idylle mit urbaner Nähe und bietet sowohl Paaren als auch jungen Familien ein ideales Wohnumfeld mit hoher Lebensqualität.
Verkehrsanbindung:
Trotz der ruhigen und naturnahen Lage ist die Anbindung an das regionale und überregionale Verkehrsnetz hervorragend. Die Autobahnen A46, A57 und A540 sind in wenigen Minuten erreichbar und ermöglichen eine schnelle Verbindung in alle Richtungen. Die Landeshauptstadt Düsseldorf liegt nur rund 20 Fahrminuten entfernt und ist somit ideal für Berufspendler, die im urbanen Raum arbeiten und dennoch im Grünen wohnen möchten. Auch die Städte Köln, Kaarst und Mönchengladbach sind in unter 40 Minuten gut erreichbar.
Naturnähe und Freizeitmöglichkeiten:
Die Umgebung von Holzheim ist geprägt von weitläufigen Feldern, kleinen Wäldern und malerischen Rad- und Wanderwegen. In unmittelbarer Nähe befindet sich der Niersgrünzug mit der idyllischen Niersaue – ein beliebter Ort für Spaziergänge, Fahrradtouren und Naherholung. Auch der Jröne Meerke, ein naturnah gestalteter Park mit See, sowie das Naherholungsgebiet Stadtwald Neuss laden zu erholsamen Ausflügen ein. Für Familien sind der Kinderbauernhof Neuss oder der Kaarster See attraktive Ziele in der Umgebung.
Ein weiteres Highlight in unmittelbarer Nähe ist die Skihalle Neuss mit dem angeschlossenen Alpenpark, die fußläufig in etwa 10 Minuten erreichbar ist. Ganzjähriger Wintersport, Klettergarten und Gastronomie mit Bergblick machen diesen Ort besonders abwechslungsreich. Ebenso schnell mit dem Rad – in etwa 10 Minuten – erreicht man das Kunstareal auf der ehemaligen Raketenstation Hombroich, das mit seinen wechselnden Ausstellungen, Skulpturenparks und Museen weit über die Region hinaus bekannt ist. Das ebenfalls renommierte Museum Insel Hombroich, das Kunst, Architektur und Natur auf einzigartige Weise verbindet, liegt nur rund 15 Fahrradminuten entfernt.
Infrastruktur und Familienfreundlichkeit:
Der Ortsteil Holzheim bietet eine ausgezeichnete Infrastruktur mit allem, was Familien benötigen. Mehrere Kindergärten und zwei Grundschulen befinden sich in fußläufiger Entfernung. Weiterführende Schulen wie das Alexander-von-Humboldt-Gymnasium oder das Marie-Curie-Gymnasium in Neuss sind mit dem Fahrrad oder öffentlichen Verkehrsmitteln gut erreichbar. Die nahegelegene S-Bahn-Haltestelle „Neuss-Holzheim“ ermöglicht zudem eine schnelle Anbindung an den Neusser und Düsseldorfer Hauptbahnhof.
Ein vielseitiges Angebot an Einkaufsmöglichkeiten – vom Supermarkt über Bäckereien bis hin zum Wochenmarkt in der Neusser Innenstadt – befindet sich in wenigen Minuten Entfernung. Ärzte, Apotheken und weitere Einrichtungen des täglichen Bedarfs sind ebenfalls schnell erreichbar und runden das komfortable Umfeld ab.
Lebensqualität mit Charakter:
Die besondere Atmosphäre des historischen Vierkanthofs verleiht der Immobilie ein einzigartiges Flair. Das Ensemble aus denkmalgeschützter Bausubstanz und modernem Wohnkomfort bietet ein außergewöhnliches Wohngefühl mit viel Liebe zum Detail. Familienfreundliche Nachbarschaften, gepflegte Innenhöfe und der ländlich inspirierte Charakter des Standorts schaffen ein ruhiges, sicheres und zugleich inspirierendes Umfeld.
Weitere Empfehlungen und Ausflugstipps – darunter ausgewählte Restaurants, Kulturstätten und Nahversorger – entnehmen Sie bitte der detaillierten Standortübersicht, die Ihnen vom Eigentümer im Datenanhang zur Verfügung gestellt wird.
41472 Neuss / Holzheim, Deutschland (auf Google Maps ansehen)



























