Aktuelle Immobilien.
Startseite > Kauf > Immobilienangebot
Großzügiges Wohnhaus mit flexibler Nutzung im Zentrum von Langenfeld.
40764 Langenfeld, Zweifamilienhaus zum Kauf
Kontaktdaten
-
NameHerr Michael Sorgnit
-
FirmaKUBIKOM Immobilien GmbH
-
AnschriftHeiligenstr. 6
40721 Hilden -
E-Mail
-
E-Mail
-
Telefon
-
Telefon
Objektdaten
-
Objekt IDMS1835_ZFH
-
ObjekttypenHaus, Zweifamilienhaus
-
Adresse40764 Langenfeld
-
Wohnfläche ca.166,03 m²
-
Grundstück ca.750 m²
-
Gesamtfläche ca.166,03 m²
-
Vermietbare Fläche ca.166,03 m²
-
Zimmer7
-
Schlafzimmer5
-
Badezimmer3
-
Separate WC3
-
Wohneinheiten2
-
UmgebungGrundschule: 0,5 km
Gymnasium: 0,5 km
Autobahn: 1,0 km
Zentrum: 0,5 km
-
Baujahr1934
-
Zustandrenovierungsbedürftig
-
AusstattungStandard
-
Verfügbar absofort
-
Garage:1 Stellplatz
-
Käuferprovision3,57% inkl. MwSt.
-
Kaufpreis430.000 EUR
Ausstattung / Merkmale
- ✓ Einliegerwohnung
- ✓ Kamin
- ✓ Keller
- ✓ Separates WC
Objektbeschreibung
Beschreibung
Dieses attraktive Wohnhaus mit einer Gesamtwohnfläche von ca. 166 m² wurde im Jahr 1934 in bevorzugter Innenstadtlage von Langenfeld errichtet und im Jahr 1990 im Rahmen eines Umbaus in Teilen modernisiert.
Die Immobilie überzeugt durch ihre vielseitige Struktur und zahlreichen Nutzungsmöglichkeiten. Ob als klassisches Einfamilienhaus, in getrennter Aufteilung für zwei Parteien oder als Mehrgenerationenhaus – die Immobilie bietet ideale Voraussetzungen, um individuelle Wohnkonzepte zu verwirklichen.
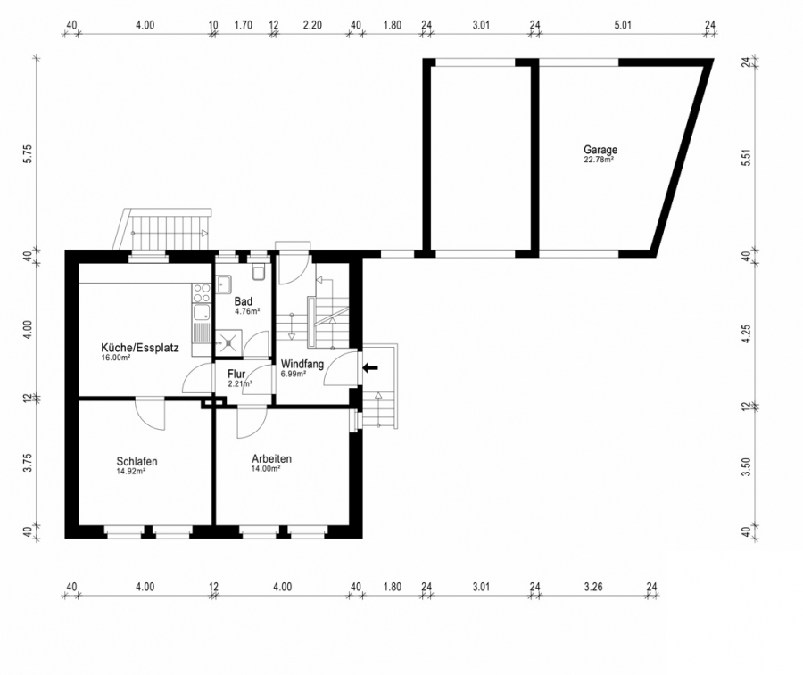
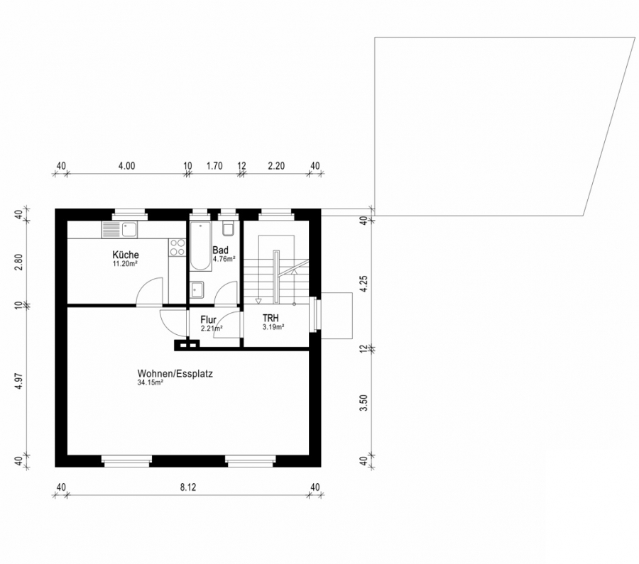
Mit insgesamt sieben Zimmern, zwei Küchen und drei Bädern eröffnet sich ein großzügiges Raumangebot, das flexibel auf die Bedürfnisse der künftigen Bewohner angepasst werden kann. Eine Garage ergänzt die praktische Ausstattung.
Neben zwei eigenen Kellerräumen, sowie weiteren Gemeinschaftsflächen im Untergeschoss, bietet auch der Spitzboden des Hauses zusätzlichen großzügigen Stauraum. Dieser ist bereits mit Velux-Fenstern ausgestattet und könnte sich – zumindest eingeschränkt – auch als Büro oder Spielzimmer eignen.
Das Haus ist nach WEG geteilt. Das komplette Grundstück ist Gemeinschaftsfläche, wurde jedoch in der Teilungserklärung durch Sondernutzungsrechte klar geregelt. Zur hier angebotenen Wohneinheit gehört ein Gartenanteil mit überdachter Terrasse, der als exklusiver Außenbereich genutzt und selbstverständlich auch nach eigenem Geschmack begrünt und gestaltet werden kann.
Die Immobilie präsentiert sich insgesamt in einem sehr gepflegten Zustand, ist jedoch in Teilen in die Jahre gekommen. Dies eröffnet künftigen Eigentümern die Möglichkeit, nach eigenen Vorstellungen zu modernisieren und individuelle Akzente zu setzen.
Das Haus vereint Substanz, Flexibilität und solide Rahmenbedingungen – eine seltene Gelegenheit für Eigennutzer wie auch Kapitalanleger.
Lassen Sie sich von dieser attraktiven Immobilie im Rahmen einer persönlichen Besichtigung überzeugen. Hierfür steht Ihnen Herr Michael Sorgnit jederzeit gerne zur Verfügung.
Ausstattung
Wohnfläche ca. 166 m²
Derzeit 2 Wohneinheiten – Option für Einfamilienhaus, Mehrgenerationenhaus oder Kapitalanlage
7 Zimmer, 2 Küchen, 3 Bäder
Grundstück ca. 750 m² (geteilt)
Gemeinschaftseigentum: Hoffläche, Grünfläche, Kellerräume
Eine Garage vorhanden
Gepflegter Gesamtzustand, mit Potenzial für Modernisierungen
Sonstiges
Der Kaufpreis für die Immobilie beträgt 430.000,00 € zuzüglich der vom Käufer zu zahlenden Provision in Höhe von 3,57 % inkl. gesetzl. Mehrwertsteuer. Wir sind vom Eigentümer allein beauftragt, Verhandlungen mit Interessenten zu führen.
Der Makler-Vertrag mit uns kommt durch schriftliche Vereinbarung oder durch die Inanspruchnahme unserer Maklertätigkeit auf der Basis des Objekt-Exposés und seiner Bedingungen zustande. Die Käufercourtage ist bei notariellem Vertragsabschluss verdient und fällig. Grunderwerbsteuer, Notar- und Gerichtskosten trägt der Käufer. Sollte das von uns nachgewiesene Objekt bereits bekannt sein, teilen Sie uns dies bitte unverzüglich mit. Die Weitergabe dieses Exposés an Dritte ohne unsere Zustimmung löst gegebenenfalls Courtage- bzw. Schadensersatzansprüche aus.
Kleingedrucktes:
Alle Angaben basieren ausschließlich auf Informationen, die uns von unserem Auftraggeber übermittelt wurden. Wir übernehmen keine Gewähr für die Vollständigkeit, Richtigkeit und Aktualität dieser Angaben. Zwischenverkauf bleibt vorbehalten.
Lage
Die Immobilie befindet sich in einer begehrten Wohnlage von Langenfeld (Rheinland) – ruhig, gepflegt und zugleich sehr zentral. Das Umfeld ist geprägt von Ein- und Zweifamilienhäusern, kleinen Gärten und einer gewachsenen Nachbarschaft – ideal für Familien und Mehrgenerationen.
Die Lage vereint städtischen Komfort mit naturnaher Erholung. Spazier- und Radwege, Felder und Grünflächen beginnen fast vor der Haustür, während die Langenfelder Innenstadt mit Marktplatz, Einkaufsmöglichkeiten, Restaurants, Ärzten und Wochenmarkt nur rund 250 Meter entfernt liegt.
Kindergärten, Schulen, Spielplätze und Sportvereine sind schnell erreichbar und bieten beste Voraussetzungen für ein familienfreundliches Leben.
Auch die Verkehrsanbindung überzeugt: Die Autobahnen A3, A59 und A542 sind in wenigen Minuten erreichbar, der fußläufige Bahnhof Langenfeld bietet mit der S6 direkte Verbindungen nach Köln und Düsseldorf – ideal für Pendler.
Trotz der zentralen Lage bleibt das Wohnumfeld angenehm ruhig und bietet ein hohes Maß an Lebensqualität.
Grundschule 500 m | Gymnasium 500 m | Autobahn 1 km | Zentrum 500 m
40764 Langenfeld, Deutschland (auf Google Maps ansehen)
































