Aktuelle Immobilien.
Startseite > Kauf > Immobilienangebot
Ein Zuhause mit Charakter und Perspektive – charmantes Einfamilienhaus mit großem Grundstück und Potenzial zur Entfaltung
42659 Solingen, Einfamilienhaus zum Kauf
Kontaktdaten
-
NameHerr Stefan Siepmann
-
FirmaKUBIKOM Immobilien GmbH
-
AnschriftKeldersstr. 6
42697 Solingen -
E-Mail
-
E-Mail
-
Telefon
-
Telefon
-
Mobil
Objektdaten
-
Objekt IDSTS2281
-
ObjekttypenEinfamilienhaus, Haus
-
Adresse42659 Solingen
-
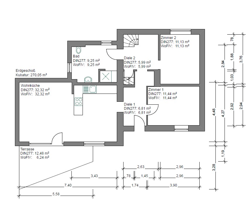
Wohnfläche ca.89,42 m²
-
Grundstück ca.3.935 m²
-
Gesamtfläche ca.160,40 m²
-
Zimmer3
-
Schlafzimmer1
-
Badezimmer1
-
Terrassen1
-
Verfügbar abnach Vereinbarung
-
Käuferprovision3,57% inkl. MwSt.
-
Kaufpreis249.000 EUR
Ausstattung / Merkmale
- ✓ Teilunterkellert
- ✓ Terrasse
Objektbeschreibung
Beschreibung
Dieses liebevoll modernisierte Einfamilienhaus aus der Jahrhundertwende vereint den Charme traditioneller Architektur mit einer naturnahen Wohnlage und bietet Paaren oder kleinen Familien ein besonderes Zuhause mit Entwicklungsmöglichkeiten. Auf einem beeindruckenden, ca. 3.181 m² großen Hanggrundstück gelegen, eröffnet sich Ihnen hier eine ruhige Rückzugsoase mit Weitblick – ideal für naturverbundene Menschen, die Ruhe, Charakter und Gestaltungsspielraum zu schätzen wissen.
Wohnkomfort im Erdgeschoss – einziehen & wohlfühlen
Die ca. 89 m² Wohnfläche im Erdgeschoss wurden in den letzten Jahren umfassend saniert und präsentieren sich in einem äußerst gepflegten, bezugsfertigen Zustand. Helle Räume mit Eicheparkett, ansprechenden Feinheiten, wie eine freigelegte Wandfläche und geschmackvolle Materialien schaffen eine Atmosphäre mit Seele und Stil.
Das Herzstück bildet der großzügige Wohnbereich mit Kaminofen – ein Ort für gemütliche Stunden zu jeder Jahreszeit. Von hier aus gelangen Sie direkt auf die sonnige Terrasse mit Blick auf den gegenüberliegenden Hang und das Tal – ein idyllischer Platz zum Durchatmen. Manuelle Jalousien und eine Markise sorgen für zusätzlichen Komfort.
Die Küche – offen gestaltet und mit Einbauten von IKEA ausgestattet – ist im Kaufpreis enthalten und überzeugt mit klarer Linienführung, Stauraum und Alltagstauglichkeit. Das moderne Badezimmer bietet Anschlussmöglichkeiten für Waschmaschine und Trockner.
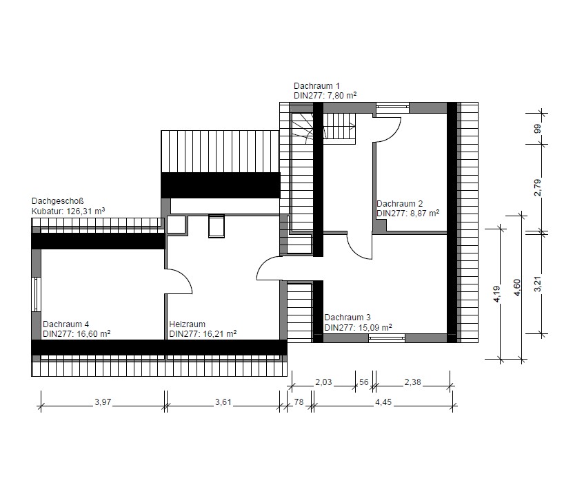
Raum zur Entfaltung im Dachgeschoss
Das Dachgeschoss befindet sich im entkernten Zustand und bietet die seltene Gelegenheit, individuelle Vorstellungen zu verwirklichen – ob zusätzlicher Wohnraum, Arbeitsbereich oder Rückzugsort. Die neue Heizungsanlage ist hier bereits installiert, ebenso sind vorbereitende Sanierungsmaßnahmen erfolgt. Mit kreativem Gespür lässt sich hier zusätzlicher Wohnwert schaffen und das Haus sinnvoll erweitern.
Rückzugsort mit besonderer Lage
Die Lage in Hangposition verleiht dem Grundstück eine einzigartige Topografie mit bewaldetem Grundstücksanteil und hohem Maß an Privatsphäre. Das Haus ist nur fußläufig über einen steileren Aufgang erreichbar – ein Aspekt, der zur besonderen Atmosphäre dieses Ortes beiträgt. Ausreichend Stellplätze befinden sich im Umfeld.
Umfassend modernisiert – Außenhülle & Erdgeschoss
Seit 2020 wurden am Haus wesentliche Sanierungs- und Modernisierungsmaßnahmen durchgeführt. Dazu zählen unter anderem:
Anschluss an das Gasnetz und Einbau einer modernen Heizungs- und Lüftungsanlage
umfangreiche Feuchtigkeitssanierungen mit Horizontalsperre und Klimaplatten
neue Drainage und Kanalsanierung
Dacheindeckung (2025)
Dieses besondere Einfamilienhaus richtet sich an Menschen mit einem Blick für das Außergewöhnliche. Ein Haus mit Geschichte, Charme und der Möglichkeit, sich kreativ zu entfalten. Der moderne, komfortable Erdgeschossbereich trifft auf ausbaubares Potenzial im Obergeschoss – eingebettet in eine malerische Umgebung.
Ideal für Paare oder kleine Familien, die bewusst und naturnah wohnen möchten – bereit für den nächsten Schritt in Richtung eines unverwechselbaren Lebensraums.
Für weitere Informationen oder die Vereinbarung eines Besichtigungstermins steht Ihnen Herr Stefan Siepmann gerne zur Verfügung.
Ausstattung
- Einfamilienhaus, Baujahr um 1900
- Grundstücksgröße ca. 3.935 m² in Hanglage (teilweise bewaldet)
- Wohnfläche ca. 89 m²
- Erdgeschoss liebevoll kernsaniert und sofort bezugsfertig
- Dachgeschoss entkernt, mit Ausbaupotenzial und neuer Heizungsanlage
- Kaminofen im Wohnbereich
- Eiche-Parkettboden im Erdgeschoss
- Offene Küche mit Einbauten (im Kaufpreis enthalten)
- Terrasse mit schöner Aussicht ins Tal und in den gegenüberliegenden Hang
- Bad mit Anschluss für Waschmaschine und Trockner
- Büro mit freigelegter Wand
- Schlafzimmer mit Klimaplatten
- Manuelle Jalousien im EG
- Markise vorhanden
- Keine Zufahrt mit dem Auto, Zugang nur fußläufig über steilen Aufgang
- Keine Garage oder Stellplatz
- Vollständig modernisierte Außenhülle (ab 2020):
Gasanschluss und neue Heizungs-/Lüftungsanlage (2020)
Drainage, Mauer aus Böschungssteinen, Hauswand freigelegt (2022)
Horizontalsperre und Klimaplatten zur Feuchtigkeitssanierung (2022)
Kanalsanierung (2022)
Neue Dacheindeckung (2025)
- Nutzung ideal für Paare oder kleine Familien mit Wunsch nach individueller Gestaltung und naturnahem Wohnen
- Ruhige Rückzugslage mit außergewöhnlichem Grundstück und viel Privatsphäre
- Keine direkte Anbindung für Fahrzeuge – naturnaher Charakter
Sonstiges
Der Kaufpreis für die Immobilie beträgt 249.000,00€ zuzüglich der vom Käufer zu zahlenden Provision in Höhe von 3,57 % inkl. gesetzl. Mehrwertsteuer. Wir sind vom Eigentümer allein beauftragt, Verhandlungen mit Interessenten zu führen.
Der Makler-Vertrag mit uns kommt durch schriftliche Vereinbarung oder durch die Inanspruchnahme unserer Maklertätigkeit auf der Basis des Objekt-Exposés und seiner Bedingungen zustande. Die Käufercourtage ist bei notariellem Vertragsabschluss verdient und fällig. Grunderwerbsteuer, Notar- und Gerichtskosten trägt der Käufer. Sollte das von uns nachgewiesene Objekt bereits bekannt sein, teilen Sie uns dies bitte unverzüglich mit. Die Weitergabe dieses Exposés an Dritte ohne unsere Zustimmung löst gegebenenfalls Courtage- bzw. Schadensersatzansprüche aus.
Kleingedrucktes:
Alle Angaben basieren ausschließlich auf Informationen, die uns von unserem Auftraggeber übermittelt wurden. Wir übernehmen keine Gewähr für die Vollständigkeit, Richtigkeit und Aktualität dieser Angaben. Zwischenverkauf bleibt vorbehalten.
Lage
Die Immobilie liegt im charmanten Stadtteil Solingen-Unterburg – einer der geschichtsträchtigsten und zugleich malerischsten Wohnlagen Solingens. Die Lage verbindet auf einzigartige Weise naturverbundenes Wohnen, eine intakte Nachbarschaft und gute Erreichbarkeit – ideal für alle, die Ruhe, Charakter und Nähe zur Stadt schätzen. Zudem befindet sich das Einfamilienhaus in einer Sachgassenlage.
Unterburg liegt eingebettet im idyllischen Tal der Wupper und bietet eine fast dörfliche Atmosphäre mit historischem Flair. Fachwerkhäuser, kleine Gassen und traditionelle Gasthöfe prägen das Ortsbild. Direkt vor der Haustür beginnt die Natur: Die Wupper, der Sengbachtalsperrenweg, die Burg mit ihrer Seilbahn und der Zugang zum Bergischen Weg machen die Umgebung zu einem echten Paradies für Wanderer, Radfahrer und Naturliebhaber. Wer Naherholung und Ursprünglichkeit sucht, findet sie hier im Alltag.
Trotz der naturnahen Lage ist die Infrastruktur gut ausgebaut: In Unterburg selbst gibt es gemütliche Cafés, Restaurants, eine Bäckerei und kleinere Fachgeschäfte. Für den täglichen Bedarf sowie für größere Einkäufe befinden sich Supermärkte und Versorgungszentren im benachbarten Stadtteil Solingen-Höhscheid oder im nahegelegenen Solingen-Mitte, das in wenigen Minuten erreichbar ist.
Familien profitieren von der Nähe zu Kindergärten und Schulen in den angrenzenden Stadtteilen. Freizeit- und Sportangebote wie Reitställe, Tennisanlagen und Wanderwege sind ebenso vorhanden wie kulturelle Sehenswürdigkeiten, darunter die berühmte Schloss Burg – ein beliebtes Ausflugsziel mit besonderem Charme.
Die Anbindung an das regionale und überregionale Straßennetz ist ebenfalls komfortabel: Die A1 (Anschlussstelle Wermelskirchen) ist in rund 15 Minuten mit dem Auto erreichbar, ebenso die A3 (Solingen/Ohligs) in etwa 20 Minuten. Die umliegenden Städte wie Wuppertal, Leverkusen, Remscheid, Düsseldorf oder Köln sind somit in 30 bis 45 Minuten gut erreichbar. Der öffentliche Nahverkehr bindet Unterburg über Buslinien an die Solinger Innenstadt und die Bahnhöfe an.
Der Standort überzeugt durch seine einmalige Mischung aus historischer Kulisse, naturnahem Leben und stadtnaher Erreichbarkeit – ein Wohnort mit besonderem Charakter für alle, die das Außergewöhnliche im Alltäglichen suchen.
42659 Solingen, Deutschland (auf Google Maps ansehen)

































