Aktuelle Immobilien.
Startseite > Kauf > Immobilienangebot
Charakter, Charme und Raum für Ideen – Einfamilienhaus mit Fachwerk-Seele
42719 Solingen, Einfamilienhaus zum Kauf
Kontaktdaten
-
NameFrau Ellen Jaros
-
FirmaKUBIKOM Immobilien GmbH
-
AnschriftKeldersstr. 6
42697 Solingen -
E-Mail
-
E-Mail
-
Telefon
-
Telefon
Objektdaten
-
Objekt IDEJ2262
-
ObjekttypenEinfamilienhaus, Haus
-
Adresse42719 Solingen
-
Wohnfläche ca.140,90 m²
-
Grundstück ca.342 m²
-
Gesamtfläche ca.140,90 m²
-
Zimmer6
-
Schlafzimmer5
-
Badezimmer2
-
Terrassen1
-
HeizungsartZentralheizung
-
Wesentlicher EnergieträgerGas
-
Baujahr1890
-
Zustandmodernisiert
-
Verfügbar abFebruar 2026
-
Stellplatz:1 Stellplatz
-
Garage:1 Stellplatz
-
Käuferprovision3,57% inkl. MwSt.
-
Kaufpreis445.000 EUR
Ausstattung / Merkmale
- ✓ Keller
- ✓ Terrasse
Energieausweis
-
EnergieausweistypBedarfsausweis
-
Gültig bis13.11.2035
-
GebäudeartWohngebäude
-
Baujahr1890
-
PrimärenergieträgerGas
-
Endenergiebedarf310,50 kWh/(m²·a)
-
EnergieeffizienzklasseH
Objektbeschreibung
Beschreibung
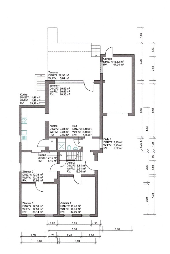
Dieses freistehende Einfamilienhaus aus dem späten 19. Jahrhundert vereint den authentischen Charakter historischer Fachwerkarchitektur mit zeitgemäßem Wohnkomfort. Auf einer Wohnfläche von ca. 140 m² und insgesamt sechs Zimmern bietet es einer anspruchsvollen Familie ein ebenso individuelles wie großzügiges Zuhause. Das rund 342 m² große Grundstück umfasst neben einer großen Garage und zwei Stellplätzen auch einen liebevoll angelegten Garten mit Terrasse – ein Rückzugsort mit Geschichte und Substanz.
Bereits beim Betreten des Hauses spürt man die besondere Atmosphäre: Die aufgearbeitete originale Holztreppe und die im Obergeschoss erhaltenen Kassettentüren erzählen von der historischen Herkunft des Hauses, das etwa um 1890 errichtet und ca. 1970 durch einen Anbau erweitert wurde.
Stilvoll saniert mit Blick fürs Detail
Im Rahmen einer umfangreichen Sanierung im Jahr 2010/2011 wurde das Gebäude nahezu vollständig erneuert – mit Ausnahme der Fachwerkfassade am Anbau (diese wurde gestrichen) und des Daches, das jedoch bereits einfach gedämmt ist. Erneuert wurden unter anderem:
Elektrik und Verrohrung
Gasheizung
Bodenbeläge (u. a. Holzdielen im EG, Laminat im OG)
zwei modernisierte Bäder
Terrassengestaltung
sowie die vollständige Erneuerung der tragenden Sockelbalken
Im Erdgeschoss unterstreichen Holzdielen und Fliesen in Holzoptik das warme, wohnliche Ambiente. Die Räume sind hell und offen, was insbesondere durch die für ein Fachwerkhaus ungewöhnlich hohen Decken positiv überrascht. Küche, Wohnzimmer, Essbereich, zwei Schlafzimmer und ein modernes Duschbad lassen wenig Wünsche offen.
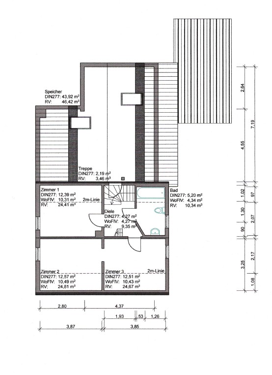
Im Obergeschoss befinden sich drei weitere Schlafzimmer – eines davon als Durchgangszimmer – sowie ein großes Bad mit Tageslicht. Der ausgebaute Spielspeicher über dem Dachboden (nicht zur Wohnfläche zählend) bietet zusätzlichen Platz für kreative Nutzung.
Ein weiteres Highlight ist der direkte Zugang zur großzügigen Terrasse mit neuer Terrassentür (Glas 2024) – perfekt für entspannte Stunden im Freien oder gesellige Familienabende.
Nutzflächen & Technik
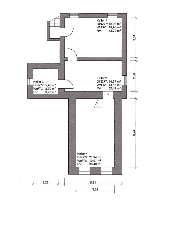
Das Haus verfügt über einen Keller mit drei Räumen, darunter ein alter Gewölbekeller mit Pumpe sowie ein funktionalerer, neuerer Bereich unter dem Anbau – praktisch und vielseitig nutzbar. Die große Garage und zwei zusätzliche Außenstellplätze unterstreichen den alltagstauglichen Komfort.
Dieses charmante Haus richtet sich an Familien, die das Besondere suchen: Raum, Charakter und Geschichte vereinen sich hier zu einem seltenen Angebot. Die solide Substanz und die umfassende Sanierung bieten eine ausgezeichnete Grundlage für sofortiges Einziehen – kleinere Maßnahmen, wie eine künftige Überarbeitung des Daches oder der Fassade des Anbaus, können mittelfristig nach eigenem Ermessen umgesetzt werden.
Lassen Sie sich von der Verbindung aus historischem Flair und modernem Wohnkomfort begeistern. Für weitere Informationen oder eine persönliche Besichtigung steht Ihnen Frau Ellen Jaros gerne zur Verfügung.
Ausstattung
– Freistehendes Einfamilienhaus im Fachwerkstil
– Baujahr: ca. 1890
– Anbau: ca. 1970
– Sanierung: umfangreich 2010/2011 (nahezu Komplettsanierung)
– Wohnfläche: ca. 140 m²
– Grundstücksgröße: ca. 342 m²
– Zimmer: 6 (davon 1 Durchgangszimmer)
– Deckenhöhe: überdurchschnittlich hoch für Fachwerkhaus
Ausstattung & Raumaufteilung
– Erdgeschoss: Holzdielen und Fliesen in Holzoptik, Wohnräume, zwei Schlafräume, Bad, Küche mit Zugang zur Terrasse
– Obergeschoss: Laminatböden, drei Zimmer (eins als Durchgangszimmer), großes Bad mit Tageslicht
– Originaldetails erhalten: aufgearbeitete Holztreppe, Kassettentüren im 1. OG
– Großer, ausgebauter Spielspeicher (keine Wohnfläche)
– Terrasse mit neuer Terrassentür (Glas 2024)
– Zwei Bäder: innenliegend im EG, Tageslichtbad im OG
Technik & Sanierungsstand
– Erneuert: Elektrik, Verrohrung, Gasheizung, Böden, Bäder, Terrasse
– Gasheizung: aus 2011
– Fenster: Kunststofffenster von 1983
– Dach: einfach gedämmt, mittelfristig sanierungsfähig
– Sockelbalken komplett erneuert (2010)
– Fassade Anbau: gestrichen (nicht neu gedämmt)
Grundstück & Außenbereich
– Garten mit großer Terrasse
– Grundstücksgröße: ca. 342 m²
– Zwei PKW-Stellplätze direkt am Haus vor der Garage
– Große Garage mit zusätzlichem Stauraum
Keller & Nebenflächen
– Drei Kellerräume
– Alter Gewölbekeller mit Pumpe
– Neuer Keller unter dem Anbau
– Viel Stauraum im Haus und auf dem Dachboden
Besonderheiten & Hinweise
– Sehr gepflegter Zustand mit umfangreicher Sanierung
– Authentische Fachwerkarchitektur mit modernem Wohnkomfort
– Hohe Decken, heller Raumeindruck
– Potenzial für künftige Dach- oder Fassadensanierung (optional)
– Ideal für Familien mit Anspruch auf Raum, Atmosphäre und Individualität
Sonstiges
Der Kaufpreis für die Immobilie beträgt 445.000,00 € zuzüglich der vom Käufer zu zahlenden Provision in Höhe von 3,57 % inkl. gesetzl. Mehrwertsteuer. Wir sind vom Eigentümer allein beauftragt, Verhandlungen mit Interessenten zu führen.
Der Makler-Vertrag mit uns kommt durch schriftliche Vereinbarung oder durch die Inanspruchnahme unserer Maklertätigkeit auf der Basis des Objekt-Exposés und seiner Bedingungen zustande. Die Käufercourtage ist bei notariellem Vertragsabschluss verdient und fällig. Grunderwerbsteuer, Notar- und Gerichtskosten trägt der Käufer. Sollte das von uns nachgewiesene Objekt bereits bekannt sein, teilen Sie uns dies bitte unverzüglich mit. Die Weitergabe dieses Exposés an Dritte ohne unsere Zustimmung löst gegebenenfalls Courtage- bzw. Schadensersatzansprüche aus.
Kleingedrucktes:
Alle Angaben basieren ausschließlich auf Informationen, die uns von unserem Auftraggeber übermittelt wurden. Wir übernehmen keine Gewähr für die Vollständigkeit, Richtigkeit und Aktualität dieser Angaben. Zwischenverkauf bleibt vorbehalten.
Lage
Dieses freistehende Einfamilienhaus befindet sich im nördlichen Stadtgebiet von Solingen, in einem gewachsenen Wohnumfeld, das besonders durch seine Mischung aus urbaner Infrastruktur und historischem Charakter überzeugt. Die Umgebung ist geprägt von Ein- und Mehrfamilienhäusern sowie guter Nahversorgung und bietet somit einen praktischen Alltag für Familien und Paare.
Die Lage besticht durch ihre zentrale Erreichbarkeit: Verschiedene Hauptverkehrsstraßen verlaufen in der Nähe und ermöglichen eine zügige Anbindung an alle Stadtteile Solingens sowie an die Autobahnen A3 und A46, die in etwa 10 bis 15 Minuten erreichbar sind. Eine Bushaltestelle befindet direkt in der Nähe. Auch die Bahnhöfe Solingen-Mitte und Solingen-Ohligs mit Anschluss an den Regional- und Fernverkehr sind schnell erreichbar – ein klarer Vorteil für Pendler.
Trotz der stadtnahen Lage bietet das direkte Umfeld auch grüne Erholungsmöglichkeiten: Das nur wenige Minuten entfernte Ittertal lädt zu Spaziergängen, Joggingrunden oder Familienausflügen ein. Ob durch das Tal entlang der Itter, zum Freibad im Sommer oder zur Eislaufbahn im Winter – hier beginnt das Freizeitvergnügen direkt vor der Haustür.
Einkaufsmöglichkeiten, Supermärkte, Bäcker, Apotheken, Arztpraxen sowie Schulen und Kindergärten sind in unmittelbarer Umgebung vorhanden und größtenteils sogar fußläufig erreichbar. Ebenso bieten sich in kurzer Distanz Freizeitmöglichkeiten, Sportvereine und Spielplätze, die den Alltag besonders für Familien angenehm gestalten.
Insgesamt bietet die Lage eine ausgewogene Kombination aus urbaner Infrastruktur, grüner Naherholung und guter Erreichbarkeit – perfekt für Menschen, die den historischen Charme eines Fachwerkhauses mit den Vorteilen einer zentral gelegenen Wohnlage verbinden möchten.
42719 Solingen, Deutschland (auf Google Maps ansehen)





























