Aktuelle Immobilien.
Startseite > Kauf > Immobilienangebot
Die Alternative: Kernsanierte Erdgeschosswohnung mit Haus-im-Haus-Gefühl inkl. Garage und Garten.
40764 Langenfeld, Einfamilienhaus zum Kauf
Kontaktdaten
-
NameFrau Ellen Jaros
-
FirmaKUBIKOM Immobilien GmbH
-
AnschriftAckerstr. 137
40233 Düsseldorf -
E-Mail
-
E-Mail
-
Telefon
-
Telefon
-
Mobil
Objektdaten
-
Objekt IDEJ2565
-
ObjekttypenEinfamilienhaus, Haus
-
Adresse40764 Langenfeld
-
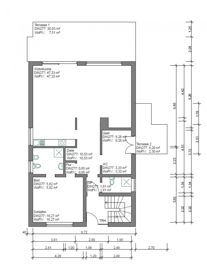
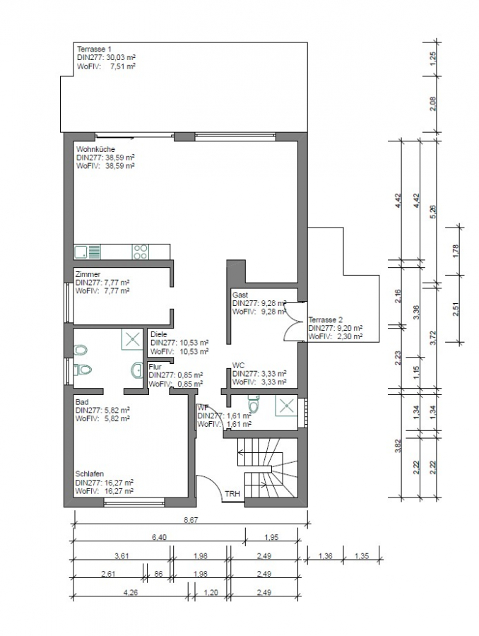
Wohnfläche ca.104,83 m²
-
Grundstück ca.520 m²
-
Gesamtfläche ca.134,25 m²
-
Zimmer4
-
Schlafzimmer2
-
Badezimmer2
-
Terrassen1
-
Wesentlicher EnergieträgerGas
-
Baujahr1979
-
Zustandteil-/vollsaniert
-
Verfügbar abnach Vereinbarung
-
Garage:1 Stellplatz
-
Käuferprovision3,57% inkl. MwSt.
-
Kaufpreis559.000 EUR
Ausstattung / Merkmale
- ✓ Keller
- ✓ Terrasse
Energieausweis
-
EnergieausweistypVerbrauchsausweis
-
Gültig bis16.08.2034
-
GebäudeartWohngebäude
-
Baujahr lt. Energieausweis2022
-
PrimärenergieträgerGas
-
Endenergieverbrauch136,50 kWh/(m²·a)
-
EnergieeffizienzklasseE
Objektbeschreibung
Beschreibung
Diese außergewöhnliche Erdgeschosswohnung bietet eine seltene Gelegenheit, stilvollen Wohnkomfort mit individueller Gestaltungsfreiheit zu vereinen. In einem hochwertig kernsanierten Dreifamilienhaus aus dem Ursprungsbaujahr 1979 entsteht derzeit ein modernes Zuhause mit dem Charakter eines eigenen Hauses – inklusive großzügiger Terrasse am Wohnbereich, beeindruckender Gartenfläche, kleiner Terrasse am Büro/Gästezimmer, privater Garage und das Ganze in einer Sackgassenendlage.
Individueller Ausbau nach Ihren Wünschen – bis Ende April mitgestalten!
Mit einer Wohnfläche von rund 104 m² eröffnet sich hier eine flexible Grundrissgestaltung: Ob drei großzügige Zimmer oder vier individuell zugeschnittene Räume – die Aufteilung kann noch an Ihre Bedürfnisse angepasst werden. Die Wohnung befindet sich aktuell im Innenausbau, wodurch Sie die einmalige Möglichkeit haben, aktiv Einfluss auf wichtige Ausstattungsmerkmale zu nehmen:
- Gestalten Sie den Fußboden und die Raumaufteilung nach Ihren Vorstellungen, wählen Sie Fliesen im Wert von bis zu 40€/m², Vinyl bis zu 40€/m² oder Parkett bis zu 70€/m²
- Entscheiden Sie sich für einen Kamin Ihrer Wahl – bis zu einem Wert von 4.000€ ohne zusätzliche Kosten
- Legen Sie die Badausstattung fest – das Hauptbad ist mit Dusche geplant, eine Badewanne kann nach Absprache alternativ integriert werden
Modernes Wohngefühl mit hochwertiger Technik
Die Ausstattung überzeugt durch hochwertige Technik und Komfort: Die neue Fußbodenheizung (2026) greift auf die erst kürzlich erneuerte Gasetagenheizung (2022) und sorgt für angenehme Wärme. Elektrische Jalousien, moderne Aluminiumfenster (2-fach verglast, 2022) und eine zeitgemäße energetische Basis runden das Gesamtbild ab.
Großzügiger Außenbereich mit Haus-im-Haus-Charakter
Ein absolutes Highlight ist der Außenbereich: Die Wohnung verfügt über eine große Terrasse und einen rund 210 m² großen Garten in Alleinnutzung – eine Oase für Naturliebhaber, Familien oder Hobbygärtner. Der Zaun sowie ein modernes Gartenhaus sind bereits fertiggestellt, die weitere Gestaltung der Gartenfläche bleibt Ihnen überlassen – ob pflegeleichter Rasen oder aufwändige Bepflanzung, hier bestimmen Sie den Charakter Ihres neuen Refugiums.
Komfort durch eigene Garage mit Zugang zum Garten
Für zusätzlichen Komfort sorgt die eigene Garage mit elektrischem Tor und praktischem Hinterausgang direkt zum Garten. Diese hat einen Wert von 20.000€ und ergänzt das "Haus-im-Haus"-Gefühl auf ideale Weise. Weitere kostenfreie Parkmöglichkeiten befinden sich in unmittelbarer Umgebung.
Kleine Eigentümergemeinschaft – klare Strukturen
Das gepflegte Dreifamilienhaus kommt ohne klassische Hausverwaltung aus. Das monatliche Hausgeld kann mit ca. 3 €/m² angesetzt werden, Rücklagen werden individuell mit den Miteigentümern abgestimmt. Diese Struktur ermöglicht größtmögliche Flexibilität und eine überschaubare Verwaltung.
Diese bald bezugsbereite Erdgeschosswohnung bietet Ihnen die ideale Kombination aus stilvoller Sanierung, großzügiger Wohnfläche und außergewöhnlicher Gestaltungsfreiheit – ein echtes Unikat für anspruchsvolle Käufer, die mehr suchen als Standard. Lassen Sie sich vor Ort überzeugen und gestalten Sie Ihr neues Zuhause aktiv mit. Frau Ellen Jaros steht Ihnen für sämtliche Fragen rund um diese Immobilie zur Verfügung.
Ausstattung
- kernsanierte Eigentumswohnung
- Erdgeschosswohnung mit „Haus-im-Haus“-Charakter
- Wohnfläche ca. 104 m²
- Zimmeranzahl flexibel: 3 Zimmer, Option auf 4 Zimmer
- Mitgestaltung des Innenausbaus bis Ende April möglich
- Auswahl von Bodenbelägen und Fliesen
- Kamin optional bis 4.000 € ohne Zuzahlung
- Zwei Bäder mit WC
- Fußbodenheizung von 2026 über Gas-Etagenheizung (2022)
- Baujahr Ursprung 1979, umfassende Sanierung 2022 + 2025/2026
- Hochwertige Aluminiumfenster (doppelt verglast) aus 2022
- Elektrische Jalousien
- Große Terrasse und Gartenfläche in Alleinnutzung
- Zaunanlage und Gartenhaus bereits vorhanden
- Gartenanlage (210 m²) ansonsten frei gestaltbar (alternativ Rasen)
- Eigene Garage
- Garage mit elektrischem Tor und direktem Zugang in den Garten
- Drei-Familienhaus
- Aktuell keine Hausverwaltung
- Hausgeld ca. 3€/m² monatlich angesetzt
- Rücklagenregelung noch mit den Miteigentümern festzulegen
Sonstiges
Der Kaufpreis für die Immobilie beträgt 559.000,00 € inkl. Garage zuzüglich der vom Käufer zu zahlenden Provision in Höhe von 3,57 % inkl. gesetzl. Mehrwertsteuer. Wir sind vom Eigentümer allein beauftragt, Verhandlungen mit Interessenten zu führen.
Der Makler-Vertrag mit uns kommt durch schriftliche Vereinbarung oder durch die Inanspruchnahme unserer Maklertätigkeit auf der Basis des Objekt-Exposés und seiner Bedingungen zustande. Die Käufercourtage ist bei notariellem Vertragsabschluss verdient und fällig. Grunderwerbsteuer, Notar- und Gerichtskosten trägt der Käufer. Sollte das von uns nachgewiesene Objekt bereits bekannt sein, teilen Sie uns dies bitte unverzüglich mit. Die Weitergabe dieses Exposés an Dritte ohne unsere Zustimmung löst gegebenenfalls Courtage- bzw. Schadensersatzansprüche aus.
Kleingedrucktes:
Alle Angaben basieren ausschließlich auf Informationen, die uns von unserem Auftraggeber übermittelt wurden. Wir übernehmen keine Gewähr für die Vollständigkeit, Richtigkeit und Aktualität dieser Angaben. Zwischenverkauf bleibt vorbehalten.
Lage
Die zum Kauf angebotene Eigentumswohnung befindet sich im begehrten Stadtteil Langenfeld-Langfort, einer der gefragtesten Wohnlagen der Stadt. Diese Adresse verbindet eine ruhige, grüne Wohnatmosphäre mit der Nähe zu urbaner Infrastruktur – ideal für anspruchsvolle Paare oder Eigennutzer, die naturnah, aber dennoch gut angebunden leben möchten.
Direkt vor der Haustür erstreckt sich der Langforter Wald, ein beliebtes Naherholungsgebiet mit zahlreichen Spazier- und Joggingwegen. Auch der Freizeitpark Langfort mit weitläufigen Grünflächen, Sportanlagen, Tennisplätzen und dem Langenfeldbad bietet vielfältige Möglichkeiten zur Erholung und aktiven Freizeitgestaltung. Ob gemütlicher Spaziergang, sportliche Betätigung oder einfach frische Luft genießen – hier beginnt die Erholung direkt vor der Tür.
Trotz der naturnahen Lage ist die Innenstadt von Langenfeld in wenigen Minuten erreichbar. Dort finden sich vielfältige Einkaufsmöglichkeiten, charmante Cafés, Restaurants, Ärzte, Apotheken, Banken und kulturelle Angebote, die den täglichen Bedarf ebenso wie den gehobenen Anspruch bestens abdecken.
Die Verkehrsanbindung ist hervorragend: Die Autobahnen A3, A59 und A542 sind in etwa 5–10 Minuten erreichbar und sorgen für eine zügige Verbindung nach Düsseldorf, Köln, Leverkusen, Monheim und Hilden. Auch der S-Bahnhof Langenfeld ist bequem erreichbar und bietet mit der Linie S6 eine schnelle und direkte Verbindung in die umliegenden Großstädte – ein klarer Vorteil für Pendler.
Diese Lage bietet die perfekte Kombination aus Rückzugsort im Grünen und zentraler Infrastruktur, ergänzt durch exzellente Verkehrsanbindung und hohe Lebensqualität – ideal für alle, die komfortables Wohnen mit ruhiger Lage und naturnaher Umgebung verbinden möchten.
40764 Langenfeld, Deutschland (auf Google Maps ansehen)

























