Aktuelle Immobilien.
Startseite > Kauf > Immobilienangebot
Charmantes Einfamilienhaus mit großem Garten und Potenzial zur Verwirklichung
42659 Solingen, Doppelhaushälfte zum Kauf
Kontaktdaten
-
NameHerr Stefan Siepmann
-
FirmaKUBIKOM Immobilien GmbH
-
AnschriftKeldersstr. 6
42697 Solingen -
E-Mail
-
E-Mail
-
Telefon
-
Telefon
-
Mobil
Objektdaten
-
Objekt IDSTS 2126
-
ObjekttypenDoppelhaushälfte, Haus
-
Adresse42659 Solingen
-
Wohnfläche ca.195,12 m²
-
Grundstück ca.603 m²
-
Gesamtfläche ca.333,96 m²
-
Zimmer5
-
Schlafzimmer0,0
-
Badezimmer2
-
Separate WC1
-
Balkone1
-
Terrassen1
-
Baujahr1950
-
Verfügbar absofort
-
Stellplatz:1 Stellplatz
-
Garage:1 Stellplatz
-
Käuferprovision3,57% inkl. MwSt.
-
Kaufpreis419.000 EUR
Ausstattung / Merkmale
- ✓ Balkon
- ✓ Keller
- ✓ Separates WC
- ✓ Terrasse
Energieausweis
-
EnergieausweistypBedarfsausweis
-
Gültig bis20.11.2035
-
GebäudeartWohngebäude
-
Baujahr1950
-
Endenergiebedarf322,80 kWh/(m²·a)
-
EnergieeffizienzklasseH
Objektbeschreibung
Beschreibung
Dieses in Massivbauweise errichtete Doppelhaus aus dem Jahr 1950, ergänzt durch einen rückwärtigen Anbau aus dem Jahr 1977, bietet eine seltene Gelegenheit für Eigennutzer, die ein Haus mit Geschichte, Substanz und Entwicklungsmöglichkeiten suchen. Auf einem großzügigen Grundstück von 603 m² vereint das Haus Wohnkomfort auf drei Ebenen mit weitläufigen Außenflächen und einer flexiblen Raumstruktur – perfekt für Familien oder Paare mit dem Wunsch nach einem individuellen Zuhause.
Das Haus wurde zuletzt als Zweifamilienhaus genutzt, lässt sich jedoch ideal als großzügiges Einfamilienhaus gestalten. Der Zugang erfolgt über ein vorgelagertes Treppenhaus, das sowohl das Erd- als auch das Obergeschoss separat erschließt. So bietet sich neben der klassischen Familiennutzung auch ein Konzept mit Homeoffice, Mehrgenerationenwohnen oder Gästeetage an.
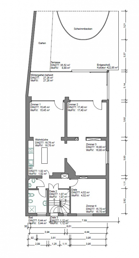
Im Erdgeschoss stehen ca. 131 m² zur Verfügung – mit drei gut geschnittenen Zimmern, einer offenen Küche, die harmonisch in den Wohnbereich integriert ist, sowie einem offenen Kamin, der dem Raum ein besonderes Wohngefühl verleiht. Ein Highlight bildet der Wintergarten aus dem Jahr 1992, der sich zur Gartenlandschaft hin öffnet und zu jeder Jahreszeit als erweiterter Wohnraum genutzt werden kann.
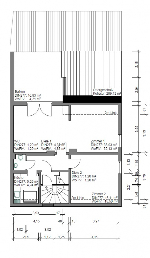
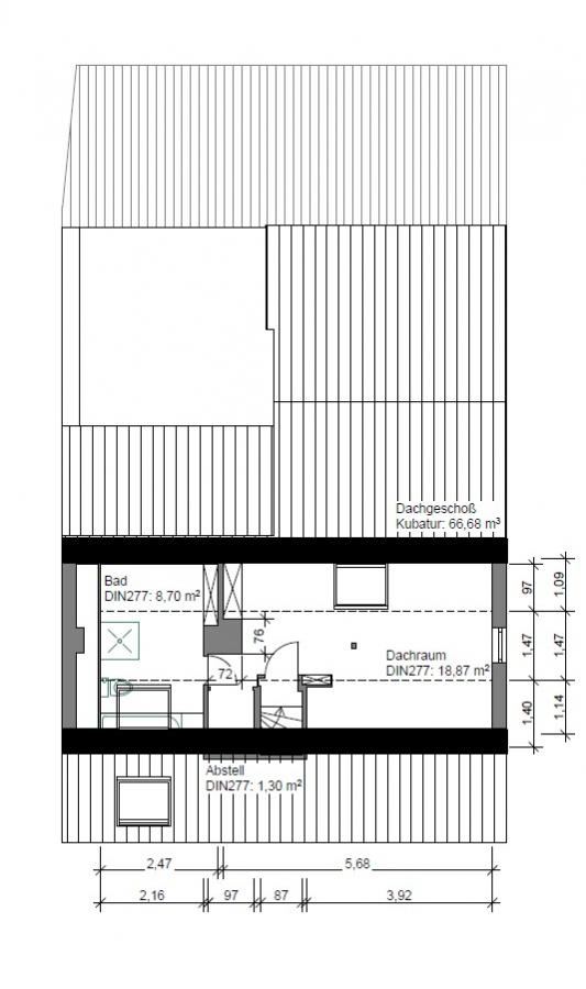
Das Obergeschoss verfügt über ca. 63 m² Wohnfläche mit zwei Zimmern und einem eigenen Balkon. Über eine innenliegende Treppe ist der ausgebaute Dachgeschossbereich mit weiteren ca. 28 m² Nutzfläche als Maisonette-Einheit angeschlossen – ideal als Atelier, Gäste-, Schlaf- oder Arbeitsbereich mit viel Licht und Blick ins Grüne.
Das Gebäude wurde zwischen 1980 und 2002 in mehreren Abschnitten modernisiert, befindet sich jedoch in weiten Teilen in renovierungsbedürftigem Zustand – ein ideales Projekt für Käufer mit Sinn für Gestaltung und dem Wunsch, eigene Wohnideen umzusetzen. Die Elektrik stammt aus den späten 1980er Jahren, die Ölzentralheizung wurde im Jahr 2000 installiert. Fenster, Böden und Oberflächen bedürfen größtenteils einer Erneuerung.
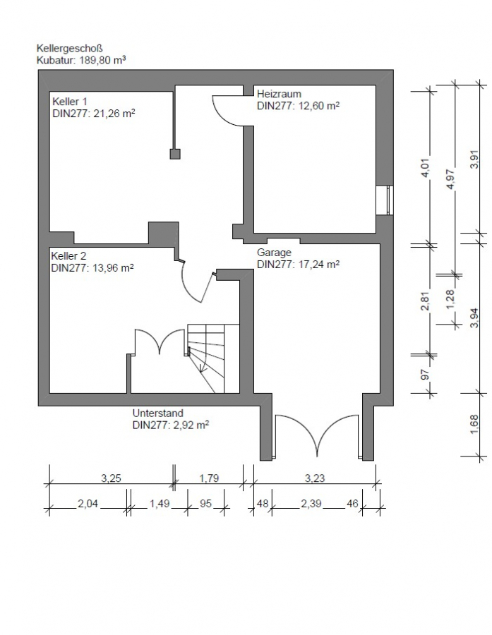
Der große Garten mit altem Baumbestand und geschütztem Rückzugsbereich bietet viel Raum für Freizeit, Spiel und Erholung im Grünen. Zwei Garagen – eine klassisch auf Erdgeschossniveau sowie eine ehemalige Kellergarage? – gehören zum Haus. Letztere ist heute nicht mehr als Garage nutzbar, bietet aber Potenzial für alternative Nutzung, z. B. als Werkstatt oder Lager.
Ein Haus mit Charme, Potenzial und großzügigem Raumangebot – ideal für alle, die Wohnen nicht „von der Stange“ suchen. Die ruhige Lage in einem gewachsenen Wohnumfeld, das große Grundstück und die flexible Raumstruktur schaffen beste Voraussetzungen für ein Zuhause mit individueller Note. Ob Familie mit Kindern, Paare mit Platzbedarf oder Visionäre mit Gestaltungsideen – hier findet jeder den nötigen Raum zur Entfaltung.
Für weitere Informationen oder zur Vereinbarung eines Besichtigungstermins steht Ihnen Herr Stefan Siepmann gerne zur Verfügung.
Ausstattung
- Doppelhaushälfte, Baujahr 1950
- Rückwärtiger Anbau aus dem Jahr 1977
- Grundstücksgröße 603 m²
- Wohnfläche Erdgeschoss: ca. 131 m² (3 Zimmer, offene Küche im Wohnzimmer, offener Kamin)
- Wohnfläche Obergeschoss: ca. 63 m² (2 Zimmer + eigener Balkon)
- Ausgebaute Nutzfläche im Dachgeschoss: ca. 28 m² (Maisonette-Stil)
- Gesamtwohnkonzept auf drei Etagen, bisher als Zweifamilienhaus genutzt
- Nutzung als großzügiges Einfamilienhaus möglich
- Zugang zu EG und OG über gemeinsames vorgelagertes Treppenhaus
- Wintergarten (Baujahr 1992) mit Zugang zum Garten
- 1 Garage
- 1 Stellplatz
- 1 Kellergarage (derzeit nicht als Garage nutzbar)
- Elektrik überwiegend aus den späten 1980er Jahren
- Ölzentralheizung aus dem Jahr 2000
- Modernisierungen erfolgten zwischen ca. 1980 und 2002
- In weiten Teilen renovierungsbedürftig
- Großzügiger Garten mit altem Baumbestand
- Flexible Grundrissgestaltung mit Potenzial für Homeoffice, Mehrgenerationenwohnen oder Gästeetage
- Ruhige Lage in gewachsenem Wohnumfeld
Sonstiges
Der Kaufpreis für die Immobilie beträgt 419.000€ zuzüglich der vom Käufer zu zahlenden Provision in Höhe von 3,57 % inkl. gesetzl. Mehrwertsteuer. Sollte der Verkaufspreis jedoch bei oder unter 83.500,00€ liegen, wird die festgelegte Mindestprovision von 2.975,00€ inkl. gesetzl. Mehrwertsteuer fällig.
Wir sind vom Eigentümer allein beauftragt, Verhandlungen mit Interessenten zu führen.
Der Makler-Vertrag mit uns kommt durch schriftliche Vereinbarung oder durch die Inanspruchnahme unserer Maklertätigkeit auf der Basis des Objekt-Exposés und seiner Bedingungen zustande. Die Käufercourtage ist bei notariellem Vertragsabschluss verdient und fällig. Grunderwerbsteuer, Notar- und Gerichtskosten trägt der Käufer. Sollte das von uns nachgewiesene Objekt bereits bekannt sein, teilen Sie uns dies bitte unverzüglich mit. Die Weitergabe dieses Exposés an Dritte ohne unsere Zustimmung löst gegebenenfalls Courtage- bzw. Schadensersatzansprüche aus.
Kleingedrucktes:
Alle Angaben basieren ausschließlich auf Informationen, die uns von unserem Auftraggeber übermittelt wurden. Wir übernehmen keine Gewähr für die Vollständigkeit, Richtigkeit und Aktualität dieser Angaben. Zwischenverkauf bleibt vorbehalten.419.000,00€
Lage
Dieses Einfamilienhaus befindet sich in Solingen-Burg, einem der historisch und landschaftlich besonders reizvollen Stadtteile der Klingenstadt. Die Umgebung ist geprägt von einer eindrucksvollen Naturkulisse, sanften Höhenlagen und zahlreichen Freizeitmöglichkeiten im Grünen – ideal für Familien, die ein wohnliches Zuhause mit Zugang zu Natur und Kultur gleichermaßen suchen.
In direkter Nähe erstrecken sich die beliebten Wupperberge, der Brückenpark Müngsten und das weithin bekannte Schloss Burg, die zu Spaziergängen, Fahrradtouren oder Familienausflügen einladen. Die waldreiche Umgebung rund um den Ortsteil Burg bietet Ruheoasen, Aussichtspunkte und Erholung direkt vor der Haustür.
Gleichzeitig profitieren Sie von einer guten Anbindung an das Solinger Stadtzentrum sowie an die umliegenden Städte wie Remscheid, Wermelskirchen, Leichlingen und Wuppertal. Die Bundesstraße B229 sowie die nahe gelegenen Autobahnen A1 und A46 sorgen für schnelle Verbindungen in Richtung Köln, Düsseldorf oder ins Ruhrgebiet – ein klarer Vorteil für Berufspendler. Der öffentliche Nahverkehr ist fußläufig erreichbar und sorgt für zusätzliche Flexibilität im Alltag.
Kindergärten und Grundschulen befinden sich in der Umgebung und sind schnell erreichbar. Weiterführende Schulen und ein umfassendes Angebot an Freizeit- und Sporteinrichtungen runden das familienfreundliche Umfeld ab. Einkaufsmöglichkeiten für den täglichen Bedarf sowie Ärzte und Apotheken finden sich im Ort und in den benachbarten Stadtteilen.
Die Lage der Immobilie bietet eine gute Erreichbarkeit und naturnahe Umgebung – gleichzeitig ist die unmittelbare Umgebung verkehrlich belebt, was für manche eine praktische Nähe zur Infrastruktur, für andere eine lebendige Geräuschkulisse bedeuten kann.
Ein Zuhause in grüner Höhenlage mit hohem Freizeitwert und attraktiver Anbindung – ideal für Familien, die die Kombination aus Natur, Geschichte und Stadtnähe zu schätzen wissen.
42659 Solingen, Deutschland (auf Google Maps ansehen)

























