Aktuelle Immobilien.
Startseite > Kauf > Immobilienangebot
Besonder Fläche für Büro oder Praxis perfekt gelegen in Solingen-Wald.TEILBAR!
42657 Solingen, Bürohaus zur Miete
Kontaktdaten
-
NameFrau Ellen Jaros
-
FirmaKUBIKOM Immobilien GmbH
-
AnschriftKeldersstr. 6
42697 Solingen -
E-Mail
-
E-Mail
-
Telefon
-
Telefon
Objektdaten
-
Objekt IDEJ987
-
ObjekttypenBüro/Praxis, Bürohaus
-
Adresse42657 Solingen
-
EtageEG
-
Bürofläche ca.450 m²
-
Gesamtfläche ca.450 m²
-
Teilbar ab100 m²
-
Zimmer0,0
-
Schlafzimmer0,0
-
Badezimmer0,0
-
Baujahr1991
-
Zustandgepflegt
-
AusstattungStandard
-
Verfügbar absofort
-
Tiefgarage:5 Stellplätze
-
Kaution12.150,00 EUR
-
Kaltmiete4.050,00 EUR
-
Betriebskosten brutto1.350,00 EUR
-
Gesamtbelastung brutto5.400,00 EUR
Ausstattung / Merkmale
- ✓ Gewerblich nutzbar
- ✓ Parkettboden
- ✓ Teppichboden
Energieausweis
-
EnergieausweistypVerbrauchsausweis
-
Gültig bis25.04.2033
-
GebäudeartNichtwohngebäude
-
Baujahr lt. Energieausweis1991
-
PrimärenergieträgerGas
-
Endenergieverbrauch87,90 kWh/(m²·a)
-
Endenergieverbrauch Strom15,00 kWh/(m²·a)
-
Endenergieverbrauch Wärme55,30 kWh/(m²·a)
-
EnergieeffizienzklasseC
Objektbeschreibung
Beschreibung
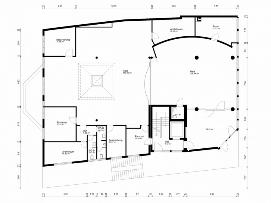
Diese außergewöhnliche Gewerbefläche befindet sich im Erdgeschoss eines Wohn/Geschäftshauses mit Tiefgarage. Egal ob als Büro oder Praxis – hier haben Sie viele Möglichkeiten. Ab ca. 100 m² ist die Fläche teilbar.
Mit einer bodentiefen Fensterfront zur Straße haben Sie nicht nur viel Licht in ihren Räumen sondern auch die Möglichkeit, sich perfekt zu präsentieren.
Ein mit Glastüren abgetrenntes Foyer kann als Empfangsbereich genutzt werden.
Von dort aus gelangen Sie in den ersten Teil des großräumigen Büros mit Zugang zu einem kleineren Büro und einer Abstellkammer. Dieser Bereich (wie auch das Foyer) ist mit Parkettboden ausgestattet und kann nach Abstimmung auch räumlich angepasst werden.
Der zweite Teil des offenen Bereichs ist aktuell mit Teppichboden ausgestattet und ist auf Grund des großen eingebauten Oberlichtes besonders hell und außergewöhnlich. Von hier aus haben Sie Zugang zu verschiedenen kleineren Büroräumen, den sanitären Anlagen, der Küche und einem Lagerraum.
Ganz gleich wie Sie diese außergewönliche Gewerbefläche nutzen möchten – es ist einen Blick wert.
Eine langfristige Anmietung von mindestens 5 Jahren ist gewünscht.
Zur Gewerbefläche gehören 5 Tiefgaragenstellplätze, welche für je 60,00 € monatlich mit angemietet werden können.
Nach einem ereignisreichen Jahr macht auch das Team der KUBIKOM einmal Pause und nutzt die Zeit zum Durchatmen und Regenerieren. Daher bleibt unser Büro vom 23.12.2024 bis einschließlich 03.01.2025 geschlossen. Wir freuen uns über Ihre Anfragen nach Besichtigungsterminen, die wir schnellstmöglich, spätestens jedoch ab dem 06.Januar 2025 beantworten. Mit dem Exposé erhalten Sie darüber hinaus weitere Dateien und Informationen, die Ihnen schon einen erweiterten Blick auf die Immobilie ermöglichen.
Ausstattung
- Die Fläche ist individuell teilbar.
- Echtholzparkett im Eingangsbereich
- Teppichboden im Bürobereich
- großes helles Oberlicht
- Tiefgaragenstellplätze
Sonstiges
Die Nettokaltmiete beträgt 4.050,00 EUR zzgl. 1.350,00 EUR Nebenkostenvorauszahlung zzgl. der gesetzlichen MwSt.
Optional können Tiefgaragenstellplätze für 60,00 EUR zzgl. der gesetzlichen MwSt. mit angemietet werden.
Die Kaution beläuft sich auf 12.150,00 EUR.
Diese ist zunächst ohne die Summe der gewünschten Stellplätze angegeben und entspricht dem
Betrag von 3 Monatsmieten (Gesamtbetrag).
Der schnellste Weg, das Objekt kennenzulernen, ist nur einen Klick entfernt.
Nutzen Sie bitte die Schaltfläche „Anbieter kontaktieren“.
So erhalten Sie kurzfristig die Adresse der Immobilie und können diese anschließend gerne diskret von außen besichtigen oder direkt mit uns in Kontakt treten.
Lage
Das Gewerbeobjekt befindet sich auf der Haupteinkaufsstraße von Solingen-Wald und ist damit nicht nur gut zu erreichen - sondern auch für die Ansprache von Laufkundschaft perfekt geeignet.
Über die B224, B228 und die Viehbachtalstraße gelangen Sie schnell in alle anliegenden Ortsteile und Ortschaften. Die A46 über die Anschlussstelle in Haan erreichen Sie in 10 Autominuten.
Restaurants, Lebensmittelläden und Tankstellen befinden sich in direkter Nähe.
42657 Solingen, Deutschland (auf Google Maps ansehen)




















