Aktuelle Immobilien.
Startseite > Kauf > Immobilienangebot
Komplette Büroetage im 1. OG mit 516m² perfekt angebunden in Ratingen für Ihre erfolgreiche Zukunft.
40878 Ratingen, Bürohaus zur Miete
Kontaktdaten
-
NameFrau Ellen Jaros
-
FirmaKUBIKOM Immobilien GmbH
-
AnschriftHeiligenstr. 6
40721 Hilden -
E-Mail
-
E-Mail
-
Telefon
-
Telefon
-
Mobil
Objektdaten
-
Objekt IDEJ1075
-
ObjekttypenBüro/Praxis, Bürohaus
-
Adresse40878 Ratingen
-
Etage1
-
Bürofläche ca.516 m²
-
Gesamtfläche ca.516 m²
-
Teilbar ab225 m²
-
Zimmer13
-
Schlafzimmer0,0
-
Badezimmer0,0
-
Baujahr1990
-
AusstattungStandard
-
Verfügbar absofort
-
Stellplatz:7 Stellplätze
-
Kaution13.158,00 EUR
13.158,00 EUR -
Kaltmiete4.386,00 EUR
-
Betriebskosten brutto1.806,00 EUR
-
Gesamtbelastung brutto6.192,00 EUR
Ausstattung / Merkmale
- ✓ Gewerblich nutzbar
- ✓ Kein Keller
- ✓ Teppichboden
Energieausweis
-
EnergieausweistypVerbrauchsausweis
-
Gültig bis20.06.2024
-
GebäudeartNichtwohngebäude
-
Baujahr lt. Energieausweis1990
-
PrimärenergieträgerGas
-
Endenergieverbrauch266,79 kWh/(m²·a)
-
Endenergieverbrauch Strom13,60 kWh/(m²·a)
-
Endenergieverbrauch Wärme212,90 kWh/(m²·a)
Objektbeschreibung
Beschreibung
Die angebotenen Büroetagen befinden sich im vorderen Teil eines größeren Büros- und Lagerkomplexes mit ausreichend Stellplätzen auf dem Innenhof – perfekt angebunden in Ratingen Tiefenbroich.
Egal ob Sie beide Etagen mit 1.032 m² oder innerhalb der Etagen eine Fläche ab 225 m² anmieten möchten – hier lohnt sich eine Besichtigung!
Der repräsentative Eingang empfängt Ihre Kunden und Mitarbeiter jeden Tag mit einem hellen und sehr gepflegten Treppenhaus.
Auf jeder Etage stehen ausreichend getrennte Sanitäranlagen zur alleinigen Nutzung der jeweiligen Etage zur Verfügung. Diese befinden sich außerhalb der Büroräume mit Zugang vom Treppenhaus.
Aktuell sind alle Räume mit Teppichboden ausgelegt und in der Aufteilung sehr hell und großzügig.
Teilweise befinden sich praktische Einbauschränke in den Büros oder auch in den Fluren und sorgen für unsichtbaren Stauraum. Die Eingangstüren sind so konzipiert, dass bei einer Aufteilung der Flächen jeweils eine separate Eingangstür zur Verfügung steht.
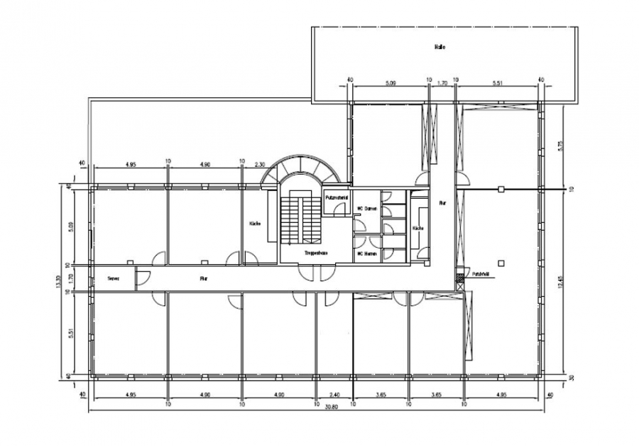
Hier im Angebot geht es konkret um das 1. Obergeschoss, welches gesamt über 516 m² verfügt und in 225 m² und 291 m² teilbar ist. Aktuell gibt es hier keine Trennung. Der Zustand der Büroräume ist gut. Ein großer und heller Besprechungsraum wird Sie beeindrucken. Auf dieser Etage befinden sich auf beiden Seiten der Fläche jeweils eine eingerichtete Küche. Dies macht eine mögliche Aufteilung einfacher und komfortabler. Alle Büroräume verfügen über stetig gewartete Klimaanlagen.
Details zur Aufteilung entnehmen Sie bitte den beigefügten Grundriss-Skizzen.
Die Anmietung von 7 Stellplätzen im Innenhof ist für je 40,00 € zzgl. MwSt. möglich.
Information zum 2. Obergeschoss (kein Bestandteil dieses Angebotes):
Das 2. Obergeschoß hat ebenfalls 516 m² und ist in 225 m² und 291 m² teilbar. Hier wurde vom Vormieter bereits eine Teilung vorgenommen. Eine Verbindung zwischen den beiden Büroteilen ist über eine schließbare Tür aktuell hergestellt. Eingebaute Trennwände sind unkompliziert entfernbar.
Die rechte Seite mit 225 m² ist in einem guten Zustand, klimatisiert analog zum 1. OG und verfügt über helle freundliche Büroräume. Der linke Teil der Fläche mit 291 m² ist renovierungsbedürftig, da dieser Teil sehr selten oder als Lagerraum genutzt wurde, und bisher auch nicht klimatisiert.
Nach einem ereignisreichen Jahr macht auch das Team der KUBIKOM einmal Pause und nutzt die Zeit zum Durchatmen und Regenerieren. Daher bleibt unser Büro vom 23.12.2024 bis einschließlich 03.01.2025 geschlossen. Wir freuen uns über Ihre Anfragen nach Besichtigungsterminen, die wir schnellstmöglich, spätestens jedoch ab dem 06.Januar 2025 beantworten. Mit dem Exposé erhalten Sie darüber hinaus weitere Dateien und Informationen, die Ihnen schon einen erweiterten Blick auf die Immobilie ermöglichen.
Ausstattung
- Flexible Raumaufteilung
- CAT3 Verkabelung über Brüstungskanäle
- Außenliegender elektrischer Sonnenschutz
- Klimaanlage
- Stellplätze im Innenhof anmietbar
Sonstiges
Die Nettokaltmiete beträgt 4.386,00 EUR zzgl. 1.806,00 EUR Nebenkostenvorauszahlung zzgl. der gesetzlichen MwSt.
Optional können 7 Außenstellplätze für 40,00 EUR mtl. zzgl. der gesetzlichen MwSt. mit angemietet werden.
Die Kaution beläuft sich auf 13.158,00 EUR zzgl. der gesetzlichen MwSt.
Diese ist zunächst ohne die Summe der gewünschten Stellplätze angegeben und entspricht dem Betrag von 3 Monatsmieten (Gesamtbetrag).
Der schnellste Weg, das Objekt kennenzulernen, ist nur einen Klick entfernt.
Nutzen Sie bitte die Schaltfläche „Anbieter kontaktieren“.
So erhalten Sie kurzfristig die Adresse der Immobilie und können diese anschließend gerne diskret von außen besichtigen oder direkt mit uns in Kontakt treten.
Lage
Das Objekt liegt in einem in der Stadt integrierten Gewerbegebiet in Ratingen Tiefenbroich.
Ratingen ist vor allem wegen der perfekten Anbindung eine gefragte Lage für Gewerbetreibende jeder Art.
Die kurzen Wege zu den Autobhanen A52 und A44 verbinden Sie schnell und einfach mit den umliegenden Städten und dem internationalen Flughafen Düsseldorf.
Eine Bushaltestelle befindet sich wenige Meter entfernt und bringt Sie zu demn U-Bahnlinien der Stadt Düsseldorf.
Im Umkreis befinden sich Einkaufsmöglichkeiten und Restaurants für Ihre Kunden und Mitarbeiter.
40878 Ratingen, Deutschland (auf Google Maps ansehen)























