Referenzen.
Startseite > Verkauf > Referenzen
Kapitalanlage oder erstes Zuhause. Solide Wohnung im Herzen von Aufderhöhe.
42699 Solingen, Etagenwohnung zum Kauf
Referenz
Dieses Objekt wurde bereits erfolgreich vermittelt.
Objektdaten
-
Objekt IDMS1924
-
ObjekttypenEtagenwohnung, Wohnung
-
Adresse42699 Solingen
-
Wohnfläche ca.34,47 m²
-
Zimmer1
-
Schlafzimmer0,0
-
Badezimmer1
-
Wohneinheiten1
-
Balkone1
-
Wesentlicher EnergieträgerGas
-
Baujahr1971
-
Verfügbar absofort
-
Garage:1 Stellplatz
Ausstattung / Merkmale
- ✓ Balkon
- ✓ Keller
Objektbeschreibung
Beschreibung
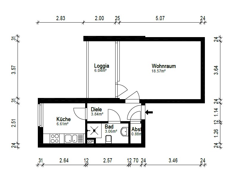
Diese freundliche und gut geschnittene Ein-Zimmer-Wohnung aus dem Baujahr 1971 befindet sich im 3. Obergeschoss eines gepflegten Mehrfamilienhauses. Die Wohnfläche von ca. 34 m² verteilt sich auf eine Diele, einen Abstellraum, einen Wohnraum mit Austritt auf die Loggia, ein Bad und eine Küche. Der Grundriss ist zeitgemäß und sinnvoll. Die Wohnräume sind sehr hell, einladend und bieten einer Person ausreichend Wohnfläche.
Die Beheizung der mit weißen isolierverglasten Fenstern ausgestatteten Wohnung erfolgt über eine Gas-Zentralheizung (Bj. 2019). Ein der Wohnung zugeordneter Kellerraum sowie eine große Waschküche befinden sich im Untergeschoss des Mehrfamilienhauses.
Ein Tiefgaragenstellplatz mit der Nr. 3 ist in diesem Angebot enthalten.
Das monatliche Hausgeld beläuft sich auf aktuell 181,56€, hierin enthalten ist eine Zuführung zur Instandhaltungsrücklage in Höhe von 43,69€ für die Wohneinheit und 4,27€ für die Tiefgarage. Die Instandhaltungsrücklage für die gesamte Immobilie beträgt zum 31.12.2023 10.996,74€, anteilig 305,54€, für den Tiefgaragenstellplatz liegt die Gesamtrücklage zum 31.12.2023 bei 13.198,17€, anteilig 1.199,83€. Die Wohnung steht bereits leer und kann nach einer Renovierung sofort genutzt werden.
Eine professionelle Hausverwaltung kümmert sich sowohl um die Belange der Eigentümer als auch um die Instandhaltung der Immobilie. Erforderliche Maßnahmen zur Instandhaltung und Werterhaltung wurden offenbar immer zeitnah durchgeführt.
Alles in allem finden Sie hier eine helle und gepflegte Eigentumswohnung, die Ihnen die Möglichkeit bietet, Ihren Traum vom Wohnen in den eigenen vier Wänden oder eine Vermietungsstrategie umzusetzen.
Lassen Sie sich von dieser attraktiven Immobilie im Rahmen einer persönlichen Besichtigung überzeugen. Hierfür steht Ihnen Herr Michael Sorgnit jederzeit gerne zur Verfügung. Wir freuen uns auf Ihren Anruf!
Sonstiges
Der Kaufpreis für die Immobilie beträgt 57.500,00€ zuzüglich der vom Käufer zu zahlenden Provision in Höhe von fest 2.975,00€ inklusive Mehrwertsteuer. Diese wird mit der Beurkundung des Kaufvertrags fällig.
Wir sind vom Eigentümer allein beauftragt, Verhandlungen mit Interessenten zu führen.
Der Makler-Vertrag mit uns kommt durch schriftliche Vereinbarung oder durch die Inanspruchnahme unserer Maklertätigkeit auf der Basis des Objekt-Exposés und seiner Bedingungen zustande. Die Käufercourtage ist bei notariellem Vertragsabschluss verdient und fällig. Grunderwerbsteuer, Notar- und Gerichtskosten trägt der Käufer. Sollte das von uns nachgewiesene Objekt bereits bekannt sein, teilen Sie uns dies bitte unverzüglich mit. Die Weitergabe dieses Exposés an Dritte ohne unsere Zustimmung löst gegebenenfalls Courtage- bzw. Schadensersatzansprüche aus.
Kleingedrucktes:
Alle Angaben basieren ausschließlich auf Informationen, die uns von unserem Auftraggeber übermittelt wurden. Wir übernehmen keine Gewähr für die Vollständigkeit, Richtigkeit und Aktualität dieser Angaben. Zwischenverkauf bleibt vorbehalten.
Lage
Die Immobilie befindet sich in Solingen-Aufderhöhe an einer ruhigen Nebenstraße unweit der Löhdorfer Straße. Aufderhöhe ist bekannt für seine familienfreundliche und naturnahe Umgebung, die für eine hervorragende Lebensqualität steht. Die Lage kombiniert ruhiges Wohnen in einer gepflegten Nachbarschaft mit einer sehr guten Anbindung an die städtische Infrastruktur.
In unmittelbarer Nähe befinden sich zahlreiche Geschäfte des täglichen Bedarfs.
Trotz der ruhigen Wohnlage ist die Verkehrsanbindung ideal: Über die nahegelegene B229 erreichen Sie zügig die Solinger Innenstadt sowie die umliegenden Städte wie Hilden, Langenfeld und Leverkusen. Auch die Autobahnen A3 und A46 sind in wenigen Minuten erreichbar, was Pendlern eine schnelle Anbindung in die gesamte Rhein-Ruhr-Region bietet.
42699 Solingen, Deutschland (auf Google Maps ansehen)








