Aktuelle Immobilien.
Startseite > Kauf > Immobilienangebot
Stilvolles Wohnen über zwei Etagen – großzügige Maisonette mit Loggia, Kamin & exklusiver Ausstattung
42699 Solingen, Etagenwohnung zum Kauf
Kontaktdaten
-
NameHerr Florian Rossa
-
FirmaKUBIKOM Immobilien GmbH
-
AnschriftKeldersstr. 6
42697 Solingen -
E-Mail
-
E-Mail
-
Telefon
-
Telefon
-
Mobil
Objektdaten
-
Objekt IDFR2316
-
ObjekttypenEtagenwohnung, Wohnung
-
Adresse42699 Solingen
-
Wohnfläche ca.115,82 m²
-
Zimmer3
-
Schlafzimmer2
-
Badezimmer2
-
Wohneinheiten1
-
Balkone1
-
Wesentlicher EnergieträgerGas
-
Baujahr1990
-
Verfügbar abnach Vereinbarung
-
Stellplatz:1 Stellplatz
-
Käuferprovision3,57% inkl. MwSt.
-
Kaufpreis429.000 EUR
Ausstattung / Merkmale
- ✓ Balkon
- ✓ Kamin
- ✓ Keller
Energieausweis
-
EnergieausweistypVerbrauchsausweis
-
Gültig bis24.02.2029
-
GebäudeartWohngebäude
-
Baujahr1990
-
PrimärenergieträgerGas
-
Endenergieverbrauch113,00 kWh/(m²·a)
Objektbeschreibung
Beschreibung
Diese außergewöhnliche Maisonettewohnung über zwei Etagen, in Split-Level-Bauweise konzipiert, bietet anspruchsvollen Paaren oder kleinen Familien ein Zuhause mit Persönlichkeit, Charakter und Qualität. In ruhiger, gewachsener Wohnlage überzeugt die ca. 115 m² große Eigentumswohnung mit einem großzügigen Raumgefühl, einer durchdachten Grundrissgestaltung und einem offenen Wohnkonzept, das zugleich Geborgenheit wie auch stilvolle Großzügigkeit vermittelt.
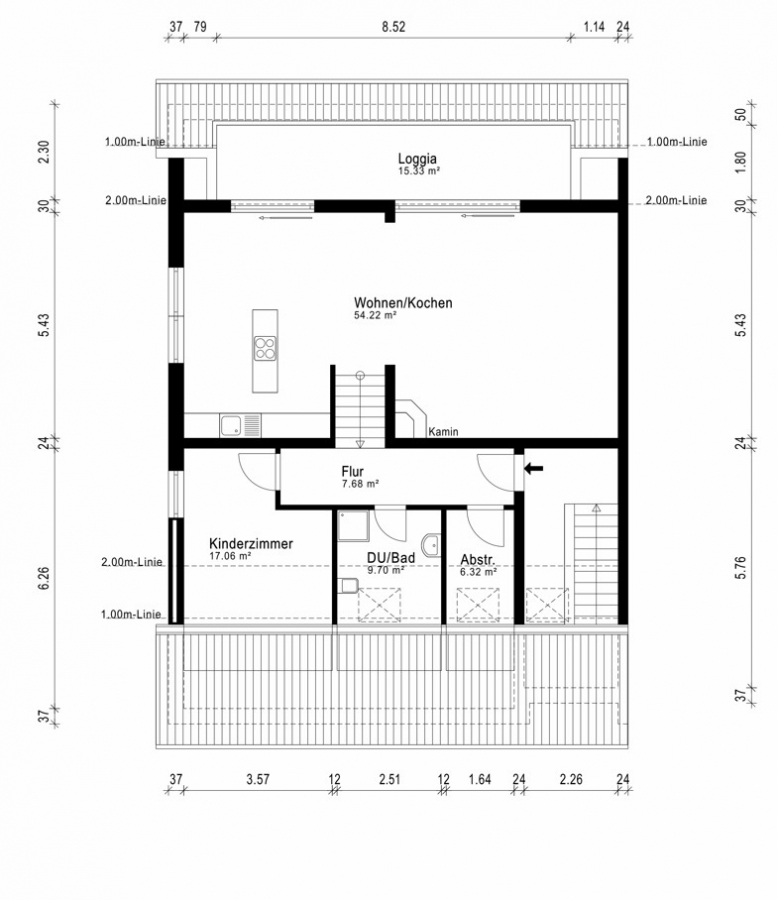
Bereits beim Betreten fällt die lichtdurchflutete Atmosphäre ins Auge, die durch große Fensterflächen und den gelungenen Grundriss getragen wird. Das Herzstück der Wohnung befindet sich im ersten Dachgeschoss: ein weitläufiger Wohn- und Essbereich mit integrierter Küche, der durch seine Offenheit, klare Linien und wohnliche Materialien besticht. Hier sorgt ein Kamin für besondere Momente, während die angeschlossene Loggia mit schönem Blick ins Grüne zum Verweilen einlädt – ein Ort für entspannte Stunden im Freien, der sowohl vom Wohnbereich als auch direkt von der Küche aus zugänglich ist.
Die Küche selbst ist ein echtes Highlight: Hochwertig ausgestattet mit einer Nobilia-Einbauküche (Baujahr 2018), modernen Elektrogeräten, viel Stauraum und edlen Oberflächen, wird sie hohen Ansprüchen gerecht – funktional, stilvoll und harmonisch in das Gesamtkonzept eingebettet. Für Kochbegeisterte wie auch für stilbewusste Genießer bietet sie ein ideales Umfeld, das Wohnen und Kochen auf charmante Weise miteinander verbindet.
Wenige Stufen oberhalb des offenen Wohnbereichs befinden sich der Wohnungseingang, ein praktischer Abstellraum sowie ein modernes Tageslichtbad mit Walk-in-Dusche. Ergänzt wird diese Ebene durch ein weiteres Zimmer, das flexibel als Kinder-, Gäste- oder Arbeitszimmer genutzt werden kann – je nach Lebensentwurf.
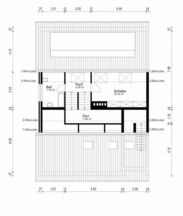
Die obere Etage – das zweite Dachgeschoss – beherbergt das großzügige Hauptschlafzimmer und ein weiteres Badezimmer. Hier setzt eine freistehende Badewanne einen eleganten Akzent und verleiht dem Raum eine besondere Wohlfühlatmosphäre. Die Verbindung beider Wohnebenen über eine offene Treppe mit Galerie schafft ein Gefühl von Leichtigkeit und verbindet Funktion mit architektonischem Anspruch.
Zahlreiche Modernisierungen in den letzten Jahren unterstreichen den hohen Standard der Wohnung. Dazu gehören unter anderem zwei sanierte Bäder mit Beton Ciré, neue Elektrik in Küche, Bädern und Gästezimmer sowie stilvolle Details wie elektrische Jalousien, Designheizkörper in Schwarz, neue Plissees und eine hochwertige Wandgestaltung mit Spezialtapeten gegen Spannungsrisse. Auch die Loggia wurde fachgerecht saniert und bietet mit einem modernen Geländer, sowie Feinsteinzeugplatten ein elegantes Erscheinungsbild.
Zur Wohnung gehört ein Außenstellplatz sowie ein Kellerraum. Ein gemeinschaftlicher Wasch- und Trockenraum, steht Ihnen ebenfalls zur Verfügung. Das Gebäude selbst umfasst lediglich drei Wohneinheiten mit zwei separaten Zugängen – eine ruhige, fast hausähnliche Wohnsituation mit einem hohen Maß an Privatsphäre.
Die Eigentümergemeinschaft verwaltet das Gebäude derzeit in Eigenregie. Eine Umstellung auf eine professionelle Hausverwaltung befindet sich aktuell in Abstimmung. Es besteht aktuell keine laufende Instandhaltungsrücklage – stattdessen werden notwendige Maßnahmen gemeinschaftlich nach Bedarf und in Abstimmung umgesetzt.
Diese Immobilie bietet nicht nur Raum, sondern auch Raumgefühl. Sie verbindet Großzügigkeit mit Wohnqualität, Stil mit Alltagstauglichkeit und schafft ein Zuhause, das sich jedem Lebensentwurf anpasst – bereit zum Einziehen und Wohlfühlen.
Für die Vereinbarung eines Besichtigungstermins steht Ihnen Herr Florian Rossa jederzeit gerne zur Verfügung.
Ausstattung
– Wohnfläche 115,82 m²
– Maisonettewohnung über zwei Etagen
– 3 Zimmer mit offener Wohnraumgestaltung
– Stilvoll verbundene Etagen über Treppe mit Galerie
– Hochwertige Nobilia-Einbauküche (Baujahr 2018)
– Loggia mit Blick ins Grüne – direkt zugänglich von Küche und Wohnbereich
– Kamin und Fußbodenheizung im Wohnbereich
– 2 moderne Bäder (Beton Ciré, 2018)
– Tageslichtbad mit Walk-in-Dusche im 1. DG
– Badezimmer mit freistehender Badewanne im 2. DG
– Neue Elektrik in Küche, Bädern und Gästezimmer
– Elektrische Jalousien in Küche und Wohnzimmer
– Neue Designheizkörper (schwarz) in mehreren Räumen
– Neue Plissees in Bad, Gästezimmer, Schlafzimmer und Loggia
– Spezialtapeten gegen Spannungsrisse in Treppenhaus, Schlaf- und Gästezimmer
– Balkonsanierung 2022 (fachmännisch abgedichtet, Feinsteinzeug 2019, neues Geländer)
– Videosprechanlage Comelit (2023)
– Ein Außenstellplatz (Die Außenstellplätze wurden 2021 gemeinschaftlich mit den Lichtschächten neu errichtet)
– Kellerraum mit Fliesen und gemeinschaftlichem Wasch- und Trockenraum (2021)
– Ruhige Lage in Haus mit nur drei Wohneinheiten
– Bezugsfertiger Zustand – einfach einziehen und wohlfühlen
Sonstiges
Der Kaufpreis für die Immobilie beträgt 429.000,00€ zuzüglich der vom Käufer zu zahlenden Provision in Höhe von 3,57 % inkl. gesetzl. Mehrwertsteuer. Wir sind vom Eigentümer allein beauftragt, Verhandlungen mit Interessenten zu führen.
Der Makler-Vertrag mit uns kommt durch schriftliche Vereinbarung oder durch die Inanspruchnahme unserer Maklertätigkeit auf der Basis des Objekt-Exposés und seiner Bedingungen zustande. Die Käufercourtage ist bei notariellem Vertragsabschluss verdient und fällig. Grunderwerbsteuer, Notar- und Gerichtskosten trägt der Käufer. Sollte das von uns nachgewiesene Objekt bereits bekannt sein, teilen Sie uns dies bitte unverzüglich mit. Die Weitergabe dieses Exposés an Dritte ohne unsere Zustimmung löst gegebenenfalls Courtage- bzw. Schadensersatzansprüche aus.
Kleingedrucktes:
Alle Angaben basieren ausschließlich auf Informationen, die uns von unserem Auftraggeber übermittelt wurden. Wir übernehmen keine Gewähr für die Vollständigkeit, Richtigkeit und Aktualität dieser Angaben. Zwischenverkauf bleibt vorbehalten.
Lage
Die zum Kauf stehende Wohnung befindet sich in Solingen-Aufderhöhe, einem der beliebten Wohnstandorte der Klingenstadt, der durch seine gelungene Kombination aus Ruhe, Naturnähe und guter Infrastruktur überzeugt. Das Wohnhaus liegt zurückgesetzt von der Straße – angenehm ruhig, aber dennoch komfortabel mit dem Auto erreichbar.
Das unmittelbare Wohnumfeld ist geprägt von gepflegten Mehrfamilienhäusern, kleinen Gärten und einer freundlichen Nachbarschaft. Gleichzeitig profitieren Ihre Wege im Alltag von kurzen Distanzen: Supermärkte, Bäckereien, Apotheken, Arztpraxen und weitere Versorgungseinrichtungen liegen in direkter Umgebung oder im nahen Zentrum von Aufderhöhe.
Ein zusätzlicher Standortvorteil ist die Nähe zur charmanten Blütenstadt Leichlingen: In nur wenigen Minuten erreichen Sie die grüne Kleinstadt mit ihren vielfältigen Freizeitmöglichkeiten, idyllischen Spazierwegen entlang der Wupper sowie einer Auswahl an kleinen, feinen Fachgeschäften und Cafés – ideal für entspanntes Bummeln mit persönlichem Flair. Leichlingen ergänzt das urbane Angebot von Solingen damit um ein Stück Lebensqualität mit ländlichem Charakter.
Auch für Pendler und Vielreisende ist die Lage hervorragend geeignet: Die Autobahnen A3 und A46 sind in etwa 10 bis 15 Minuten mit dem Auto erreichbar und bieten eine direkte Verbindung nach Düsseldorf, Köln, Leverkusen, Langenfeld und Wuppertal. Der Bahnhof Solingen-Ohligs mit seinen ICE-, Regional- und S-Bahn-Verbindungen ist ebenfalls gut erreichbar und stellt einen der wichtigsten Verkehrsknotenpunkte der Region dar.
Naturliebhaber kommen voll auf ihre Kosten: Das nahegelegene Wupperufer lädt zu Rad- und Wandertouren ein, ebenso wie der grüne Solinger Süden mit weiten Feldern, Waldrändern und stillen Wegen. Wer die Ruhe sucht und gleichzeitig auf gute Infrastruktur nicht verzichten möchte, findet hier ideale Bedingungen.
Diese Lage bietet eine ausgewogene Mischung aus Rückzug und Anbindung, Natur und Stadtnähe – perfekt für Eigennutzer, die ein Zuhause mit Lebensqualität in einem gewachsenen Umfeld suchen.
42699 Solingen, Deutschland (auf Google Maps ansehen)
















