Aktuelle Immobilien.

Startseite > Kauf > Immobilienangebot

Großzügige 4-Zimmer-Wohnung mit zwei Balkonen in kleiner Eigentümergemeinschaft

58089 Hagen, Etagenwohnung zum Kauf

Kontaktdaten

Michael Sorgnit, KUBIKOM Immobilien GmbH

Objektdaten

  • Objekt ID
    MS 2429
  • Objekttypen
    Etagenwohnung, Wohnung
  • Adresse
    58089 Hagen
  • Etage
    2
  • Wohnfläche ca.
    109,52 m²
  • Zimmer
    4
  • Schlafzimmer
    3
  • Badezimmer
    1
  • Balkone
    2
  • Baujahr
    1910
  • Verfügbar ab
    nach Vereinbarung
  • Hausgeld
    250 EUR
  • Käufer­provision
    3,57% inkl. MwSt.
  • Kaufpreis
    125.000 EUR

Ausstattung / Merkmale

  • ✓ Balkon
  • ✓ Keller

Energieausweis

  • Energieausweistyp
    Bedarfs­ausweis
  • Gültig bis
    16.04.2036
  • Gebäudeart
    Wohngebäude
  • Baujahr lt. Energieausweis
    1910
  • Primärenergieträger
    Gas
  • Endenergie­bedarf
    225,50 kWh/(m²·a)
  • Energie­effizienz­klasse
    G
0 25 50 75 100 125 150 175 200 225 250+ H G F E D C B A A+ H G F E D C B A A+ Endenergiebedarf 225,50 kWh/(m²·a)

Objekt­beschreibung

Beschreibung

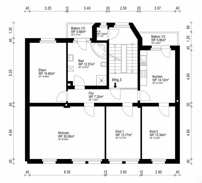
Diese ansprechende Vier-Zimmer-Wohnung (Baujahr unbekannt) befindet sich im 2. Obergeschoss eines gepflegten Mehrfamilienhauses und bietet auf ca. 109 m² Wohnfläche eine durchdachte Raumaufteilung sowie ein angenehmes Wohnumfeld.

Die Raumstruktur überzeugt durch ihre Funktionalität: Nahezu alle Zimmer sind direkt vom Flur aus erreichbar, was eine klare und alltagstaugliche Aufteilung ermöglicht. Ein weiteres Zimmer erschließt sich über die Küche und eignet sich ideal als Arbeitszimmer, Gästezimmer oder zusätzlicher Schlafraum. Diese flexible Struktur macht die Wohnung besonders attraktiv für Familien mit Kindern oder für eine langfristige Vermietung.

Der Wohnkomfort wird durch zwei Balkone unterstrichen, die zusätzliche Aufenthaltsqualität im Freien bieten und den Wohnraum angenehm erweitern. Das großzügige Badezimmer wurde im Jahr 2014 umfassend saniert und ist sowohl mit einer Badewanne als auch mit einer Dusche ausgestattet – eine Kombination, die den Ansprüchen des modernen Alltags gerecht wird. Der Waschmaschinenanschluss kann bequem im Badezimmer realisiert werden, was zusätzliche Flexibilität schafft.

Ebenfalls im Jahr 2014 wurde die Elektroinstallation erneuert, was einen wichtigen Beitrag zur technischen Qualität der Wohnung leistet. Insgesamt befindet sich die Immobilie in einem gepflegten Zustand ohne erkennbaren Reparaturstau.

Die Beheizung erfolgt über eine Gas-Etagenheizung, wodurch eine individuelle Steuerung der Heizkosten möglich ist. Das monatliche Hausgeld beträgt ca. 250 €, wovon rund 105 € auf die Instandhaltungsrücklage entfallen. Die Immobilie wird von einer professionellen Hausverwaltung betreut, was eine strukturierte Bewirtschaftung gewährleistet.

Derzeit wird die Wohnung von der Familie des Eigentümers selbst genutzt und kann sowohl für Eigennutzer als auch für Kapitalanleger eine interessante Option darstellen. Die Kombination aus guter Aufteilung, solider Ausstattung und überschaubarer Eigentümergemeinschaft macht dieses Angebot besonders attraktiv für Käufer, die Wert auf langfristige Wohnqualität und stabile Rahmenbedingungen legen.

Gerne stellen wir Ihnen diese Immobilie im Rahmen einer persönlichen Besichtigung näher vor. Hierfür steht Ihnen Herr Michael Sorgnit jederzeit gerne zur Verfügung.

Ausstattung

  • Eigentumswohnung im 2. Obergeschoss
  • Baujahr: unbekannt
  • Wohnfläche: ca. 109 m²
  • 4 Zimmer
  • Gut aufgeteilter Grundriss
  • Alle Zimmer vom Flur erreichbar (ein Zimmer über die Küche)
  • Zwei Balkone
  • Ideal für Familien mit Kindern
  • Großzügiges Badezimmer (2014 saniert)
  • Ausstattung mit Badewanne und Dusche
  • Elektroinstallation 2014 erneuert
  • Kein direkter Reparaturstau
  • Gas-Etagenheizung
  • Kleine Eigentümergemeinschaft (nur 4 Parteien)
  • Professionelle Hausverwaltung
  • Hausgeld: ca. 250 € monatlich
  • Davon ca. 105 € Rücklage
  • Aktuell vom Eigentümer bewohnt
  • Geeignet für Eigennutzer oder Kapitalanleger

Sonstiges

Der Kaufpreis für die Immobilie beträgt 149.000 € zuzüglich der vom Käufer zu zahlenden Provision in Höhe von 3,57 % inkl. gesetzl. Mehrwertsteuer. Wir sind vom Eigentümer allein beauftragt, Verhandlungen mit Interessenten zu führen.
Der Makler-Vertrag mit uns kommt durch schriftliche Vereinbarung oder durch die Inanspruchnahme unserer Maklertätigkeit auf der Basis des Objekt-Exposés und seiner Bedingungen zustande. Die Käufercourtage ist bei notariellem Vertragsabschluss verdient und fällig. Grunderwerbsteuer, Notar- und Gerichtskosten trägt der Käufer. Sollte das von uns nachgewiesene Objekt bereits bekannt sein, teilen Sie uns dies bitte unverzüglich mit. Die Weitergabe dieses Exposés an Dritte ohne unsere Zustimmung löst gegebenenfalls Courtage- bzw. Schadensersatzansprüche aus.
Kleingedrucktes:
Alle Angaben basieren ausschließlich auf Informationen, die uns von unserem Auftraggeber übermittelt wurden. Wir übernehmen keine Gewähr für die Vollständigkeit, Richtigkeit und Aktualität dieser Angaben. Zwischenverkauf bleibt vorbehalten.

Lage

Die angebotene Wohnung befindet sich im Hagener Stadtteil Weringhausen, einem innenstadtnahen und gewachsenen Wohngebiet, das sich durch eine gute Infrastruktur, kurze Wege und eine solide Mieterstruktur auszeichnet. Die Lage bietet eine gelungene Kombination aus urbaner Nähe und alltagstauglichem Wohnkomfort – ideal sowohl für Eigennutzer als auch für Kapitalanleger.

Das unmittelbare Umfeld ist geprägt von Mehrfamilienhäusern, kleineren Gewerbeeinheiten und einer funktionierenden Nahversorgung. Zahlreiche Einkaufsmöglichkeiten, Supermärkte, Bäckereien, Apotheken und Dienstleister sind in wenigen Minuten erreichbar, teilweise auch fußläufig. Die Hagener Innenstadt liegt nur etwa 5 Fahrminuten entfernt und bietet ein umfangreiches Angebot an Einzelhandel, Gastronomie, Cafés sowie kulturellen Einrichtungen.

Auch für Familien oder Paare ist die Lage attraktiv: Kindergärten, Grundschulen und weiterführende Schulen befinden sich im näheren Umfeld und sind in etwa 5–10 Minuten erreichbar. Ergänzt wird das Angebot durch Sportvereine, Fitnessstudios und Freizeitmöglichkeiten in der Umgebung.

Die Anbindung an den öffentlichen Nahverkehr ist sehr gut. Bushaltestellen befinden sich in fußläufiger Entfernung, und auch der Hagener Hauptbahnhof ist in etwa 5–10 Minuten erreichbar. Von hier bestehen Regional- und Fernverkehrsverbindungen in Richtung Dortmund, Essen, Wuppertal, Köln und Düsseldorf, was den Standort auch für Pendler interessant macht.

Die Autobahnanbindung ist ebenfalls überzeugend: Die A45 und A46 erreichen Sie in etwa 5–10 Fahrminuten, wodurch eine schnelle Verbindung in das gesamte Ruhrgebiet sowie ins Sauerland gewährleistet ist.

Für Erholung im Grünen sorgen mehrere Parkanlagen und Grünflächen im Umfeld. Der nahegelegene Stadtgarten Hagen sowie weitere Grünzüge bieten Möglichkeiten für Spaziergänge, sportliche Aktivitäten oder entspannte Stunden im Freien.

Die Lage in Hagen-Weringhausen bietet eine zentrale, gut angebundene Wohnlage mit solider Infrastruktur und kurzen Wegen. Die Kombination aus urbaner Nähe, guter Erreichbarkeit und Nahversorgung macht diesen Standort sowohl für Eigennutzer als auch für Kapitalanleger besonders attraktiv.

Sie sehen gerade einen Platzhalterinhalt von Google Maps. Um auf den eigentlichen Inhalt zuzugreifen, klicken Sie auf die Schaltfläche unten. Bitte beachten Sie, dass dabei Daten an Drittanbieter weitergegeben werden.

Mehr Informationen

Direktanfrage

* Pflichtangaben
 SSL-verschlüsselt
Immobiliendaten-Import und Darstellung für WordPress: WP-ImmoMakler