Aktuelle Immobilien.
Startseite > Kauf > Immobilienangebot
Jahresendspurt für Kapitalanleger – Jetzt Senkung des Kaufpreises und der Vermittlungsprovision –
50226 Frechen, Etagenwohnung zum Kauf
Kontaktdaten
-
NameFrau Angelika Sänger
-
FirmaKUBIKOM Immobilien GmbH
-
AnschriftZum Stadion 73
40764 Langenfeld -
E-Mail
-
E-Mail
-
Telefon
-
Telefon
-
Mobil
-
Fax004921731650532
Objektdaten
-
Objekt IDAS 2208
-
ObjekttypenEtagenwohnung, Wohnung
-
Adresse50226 Frechen
-
Etage1
-
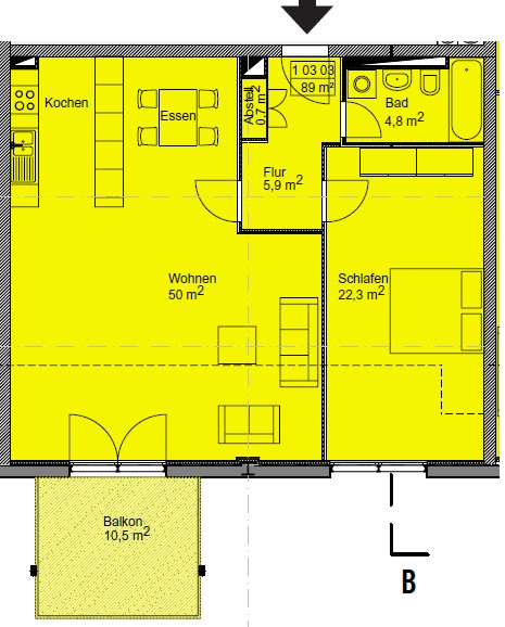
Wohnfläche ca.89 m²
-
Zimmer2
-
Schlafzimmer1
-
Badezimmer1
-
Wohneinheiten1
-
Balkone1
-
Terrassen1
-
HeizungsartFußbodenheizung
-
Baujahr2007
-
Zustandneuwertig
-
Stellplatz:1 Stellplatz
-
Hausgeld500 EUR
-
Käuferprovision2,97% inkl. MwSt.
-
Kaufpreis330.000 EUR
Ausstattung / Merkmale
- ✓ Balkon
- ✓ denkmalschutz
- ✓ Stellplatz
- ✓ Terrasse
Energieausweis
-
Energieausweisnicht erforderlich
Objektbeschreibung
Beschreibung
Jahresendspurt für Kapitalanleger! Neuer Preis und Provisionssenkung!
Diese außergewöhnliche Zwei-Zimmer-Wohnung vereint Großzügigkeit, hochwertige Ausstattung und historischen Charme zu einem Wohnambiente mit besonderem Charakter. Sie befindet sich im ersten Obergeschoss der denkmalgeschützten „Grube Carl“ – einer ehemaligen Brikettfabrik, deren Ursprünge bis ins 18. Jahrhundert zurückreichen und deren heutiges Erscheinungsbild auf die Jahre 1928 bis 1930 datiert ist.
Mit der behutsamen Umnutzung des industriellen Kulturerbes entstand ein lebendiges, modernes Quartier, das hochwertiges Wohnen, urbane Arbeitswelten und Nahversorgung auf stilvolle Weise miteinander verknüpft. Neben Büro- und Gewerbeeinheiten sind hier Einfamilienhäuser, Stadthäuser sowie vielfältige Freizeitangebote in direkter Umgebung angesiedelt – ein gelungenes Beispiel zeitgenössischer Quartiersentwicklung mit historischem Fundament.
Großzügige Raumwirkung und hochwertige Ausstattung
Auf ca. 89 m² Wohnfläche eröffnet sich eine helle, loftartige Wohnatmosphäre mit hoher Aufenthaltsqualität. Das Herzstück bildet das rund 50 m² große Wohn-/Esszimmer mit offenem Küchenbereich – ein weitläufiger Raum mit teilweise bodentiefen Holzfenstern und Isolierverglasung, der durch Licht, Offenheit und Ausblick überzeugt. Der angeschlossene Balkon (ca. 11 m²) bietet eine geschützte Freifläche mit angenehmer Privatsphäre durch die besondere Architektur des Ensembles.
Die Ausstattung folgt einem zurückhaltend eleganten Konzept: Schiffsbodenparkett in den Wohn- und Schlafräumen sowie im Flur sorgt für eine natürliche, warme Anmutung. Die Wände in Putzoptik unterstreichen das ruhige und hochwertige Wohnbild. Im Flur ist ein praktischer Abstellschrank integriert – ideal für Stauraum im Alltag.
Das komfortable Badezimmer bietet sowohl eine Badewanne als auch eine separate Dusche sowie einen Waschmaschinenanschluss. Hochwertige, türhoch verlegte Fliesen in hellgrauer Optik schaffen eine klare, moderne Atmosphäre.
Sämtliche Fenster der Wohnung sind als bodentiefe Holzfenster mit Isolierverglasung ausgeführt. Die Eingangs- und Innentüren sind als massive, glatte Elemente gestaltet – stilistisch abgestimmt auf das industrielle Erbe der Immobilie.
Weitere Ausstattungsdetails:
Zentrale Heizungs- und Warmwasserversorgung
Ebenerdiger Zugang über den Aufzug
Wohnung im 1. Obergeschoss, hell und lichtdurchflutet
Denkmalgeschütztes Ensemble mit hochwertiger Revitalisierung
Hochwertiger Schiffsbodenparkett in Wohn- und Schlafbereichen mit Fußbodenheizung
Abstellschrank im Flur integriert
Balkon mit ca. 11 m² Fläche
Bad mit Dusche, Wanne und Waschmaschinenanschluss
Stellplatz im denkmalgeschützten Garagenhaus
Urbanes Quartier mit Geschichte
Die "Grube Carl" steht heute beispielhaft für die erfolgreiche Transformation eines Industrieareals in ein durchmischtes, zukunftsfähiges Quartier. Die Kombination aus historischen Strukturen und zeitgemäßem Wohnen verleiht der Umgebung eine besondere Atmosphäre – urban, individuell, lebendig. Einkaufsmöglichkeiten, Freizeitangebote und Erholungsflächen sind ebenso Teil des Konzepts wie ein gewachsenes Miteinander aus Wohnen und Arbeiten.
Diese Loftwohnung ist mehr als ein stilvoller Rückzugsort – sie ist Teil eines architektonisch bedeutsamen Ortes mit Zukunft. Ob für Eigennutzer oder als hochwertige Kapitalanlage: Wer Großzügigkeit, Substanz und Charakter sucht, wird hier fündig.
Die Einheit ist derzeit vermietet. Die Nettokaltmiete beträgt 12.150 € p.a. Das aktuelle Hausgeld liegt bei 500 €, inkl. Umlage der Dachsanierung und 21,10 € für den Stellplatz.
Angelika Sänger steht Ihnen gerne für weitere Informationen und Besichtigungen zur Verfügung.
Ausstattung
Wohnung / Gebäude
- Zwei-Zimmer-Wohnung in der denkmalgeschützten „Grube Carl“
- Helle Loftwohnung mit ca. 89 m² Wohnfläche
- ca. 50 m² Wohn-/Esszimmer mit offenem Küchenbereich
- Balkon ca. 11 m², nahezu uneinsehbar
- Erstes Obergeschoss, rollstuhlgerechter Aufzug vorhanden
- Massive, glatte Wohnungs- und Innentüren
Ausstattung
- Industrieparkett in Wohn-, Schlafräumen und Flur
- Wände in hochwertiger Putzoptik
- Bodentiefe Holzfenster mit Isolierverglasung
- Bad mit Badewanne, Dusche und Waschmaschinenanschluss
- Türhoch geflieste Badflächen in hochwertiger Ausführung
- Praktischer Abstellschrank im Flur
- Zentrale Heizungs- und Warmwasserversorgung
- Fußbodenheizung
Stellplatz / Garagenhaus
- Stellplatz im denkmalgeschützten Garagenhaus
- Monatliche Miete für den Stellplatz: 90€
Objekt & Umfeld
- Denkmalgeschütztes Areal: Ehemalige Brikettfabrik „Grube Carl“
- Ursprünge im 18. Jahrhundert, heutige Form 1928–1930
- Quartiersentwicklung mit hochwertigem Wohnen, Gewerbe und Freizeit
- Urbanes Umfeld mit Nahversorgung und Einfamilien-/Stadthäusern
Sonstiges
Der Kaufpreis für die Immobilie beträgt 330.000,00€ zuzüglich der vom Käufer zu zahlenden Provision in Höhe von 2,97 % inkl. gesetzl. Mehrwertsteuer. Wir sind vom Eigentümer allein beauftragt, Verhandlungen mit Interessenten zu führen.
Der Makler-Vertrag mit uns kommt durch schriftliche Vereinbarung oder durch die Inanspruchnahme unserer Maklertätigkeit auf der Basis des Objekt-Exposés und seiner Bedingungen zustande. Die Käufercourtage ist bei notariellem Vertragsabschluss verdient und fällig. Grunderwerbsteuer, Notar- und Gerichtskosten trägt der Käufer. Sollte das von uns nachgewiesene Objekt bereits bekannt sein, teilen Sie uns dies bitte unverzüglich mit. Die Weitergabe dieses Exposés an Dritte ohne unsere Zustimmung löst gegebenenfalls Courtage- bzw. Schadensersatzansprüche aus.
Kleingedrucktes:
Alle Angaben basieren ausschließlich auf Informationen, die uns von unserem Auftraggeber übermittelt wurden. Wir übernehmen keine Gewähr für die Vollständigkeit, Richtigkeit und Aktualität dieser Angaben. Zwischenverkauf bleibt vorbehalten.
Lage
In einer der gefragtesten Lagen von Frechen – dem rund 130m hoch gelegenen Stadtteil Benzelrath – bietet diese Eigentumswohnung ein Wohnumfeld, das Ruhe, Qualität und urbanen Komfort gekonnt miteinander vereint. Die Immobilie liegt zwischen der Rosmarstraße und Am Rosenhügel, in der bekannten Grube Carl – einem beliebten Wohnareal mit gewachsenem Charakter und hervorragender Infrastruktur.
Die Immobilie eignet sich ideal für Singles und Paare, die ein Zuhause in ruhiger und gehobener Umgebung suchen, aber dennoch nicht auf die Nähe zu städtischen Angeboten verzichten möchten.
Mit nur etwa 1 km Entfernung zur Frechener Innenstadt liegt die Wohnung nah am lebendigen Zentrum mit seiner Fußgängerzone, charmanten Cafés, Restaurants, Einkaufsmöglichkeiten und Wochenmarkt. Sämtliche Einrichtungen des täglichen Bedarfs – von Supermärkten über Apotheken bis hin zu Ärzten – sind bequem erreichbar.
Die Anbindung an den öffentlichen Nahverkehr ist hervorragend: Ein Linienbus hält quasi vor der Haustür, die Straßenbahnhaltestelle ist in wenigen Minuten fußläufig erreichbar. So gelangen Sie schnell und unkompliziert in die Innenstadt von Köln, die nur rund 12km entfernt ist. Auch das nahe gelegene Autobahnkreuz Köln-West (A1/A4) erreichen Sie in etwa vier Kilometern, was eine ideale Verbindung in alle Richtungen des Rheinlands bietet – ob Richtung Köln, Bonn, Aachen oder Düsseldorf.
Trotz dieser ausgezeichneten Verkehrsanbindung genießen Sie hier ein ruhiges, naturnahes Wohnumfeld. Spaziergänge durch die angrenzenden Felder und Grünzüge, ein Abstecher zur Grube Carl mit ihren landschaftlich reizvollen Wegen oder entspannte Stunden im eigenen Garten oder auf dem Balkon sind hier fester Bestandteil des Alltags.
Darüber hinaus bietet die Region rund um Frechen und Köln eine Fülle an Kunst, Kultur und Freizeitangeboten: Theater, Museen, Veranstaltungen, Sportmöglichkeiten oder Naherholungsgebiete wie der Königsforst oder der Decksteiner Weiher liegen in bequemer Reichweite.
Diese Wohnlage überzeugt durch ihre ausgewogene Balance aus Ruhe, Urbanität und Mobilität – ein idealer Ort zum Leben, Ankommen und Wohlfühlen für anspruchsvolle Eigentümer, die sowohl das Grüne als auch das pulsierende Stadtleben schätzen.
50226 Frechen, Deutschland (auf Google Maps ansehen)











