Referenzen.
Startseite > Verkauf > Referenzen
Gräfrath. Vier-Zimmer-Wohnung mit schönem Garten und tollem Blick.
42653 Solingen, Erdgeschosswohnung zum Kauf
Referenz
Dieses Objekt wurde bereits erfolgreich vermittelt.
Objektdaten
-
Objekt IDMS2044
-
ObjekttypenErdgeschosswohnung, Wohnung
-
Adresse42653 Solingen
-
Wohnfläche ca.110,88 m²
-
Zimmer4
-
Schlafzimmer3
-
Badezimmer1
-
Wohneinheiten1
-
Terrassen1
-
Baujahr1965
-
Verfügbar absofort
-
Stellplatz:1 Stellplatz
Ausstattung / Merkmale
- ✓ Einbauküche
- ✓ Keller
- ✓ Stellplatz
- ✓ Terrasse
Objektbeschreibung
Beschreibung
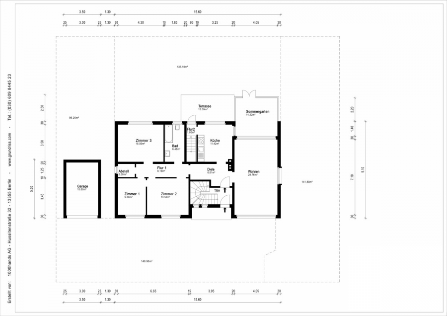
Diese großzügige und außergewöhnliche Eigentumswohnung vereint Wohnkomfort mit einem charmanten Ambiente. Auf einer Wohnfläche von ca. 110 m² bietet sie vier Zimmer sowie einen ca. 15 m² großen, unbeheizten Wintergarten mit einer beeindruckenden Süd-Ost-Terrasse und Zugang zum pflegeleichten Garten – ein perfektes Refugium für Familien, Naturliebhaber und Sonnenanbeter.
Die im Jahr 1965 auf einem 623 m² großen Grundstück errichtete Immobilie befindet sich im Erdgeschoss eines gepflegten Zweifamilienhauses in begehrter Lage von Solingen-Gräfrath. Dank der naturnahen und zugleich verkehrsgünstigen Umgebung genießen Sie hier eine ideale Kombination aus Ruhe und urbaner Erreichbarkeit. Die massiv erbaute Immobilie wurde stets liebevoll instand gehalten und von den Eigentümern selbst bewohnt.
Die Wohnfläche wurde 2014 modernisiert und ist optimal aufgeteilt:
Eine einladende, sinnvoll ausgestattete Küche mit Zugang zur weitläufigen Terrasse und dem eigenen Keller.
Ein großzügiger Wohnbereich, der durch einen stilvollen Kamin eine behagliche Atmosphäre schafft und eine direkte Verbindung zum offenen Sommergarten bietet.
Drei ruhige und ausreichend große Schlaf-/Kinder-/Gästezimmer.
Ein zusätzliches modernes Badezimmer mit eleganter Walk-in-Dusche.
Eine Diele sowie ein Flur, die für ein harmonisches Wohngefühl sorgen.
Ein praktischer Abstellraum für zusätzlichen Stauraum.
Sowohl vom Wohnbereich als auch von der Küche gelangen Sie auf die weitläufige Terrasse und in den großen, pflegeleicht angelegten und vollständig eingefriedeten Garten, der Ihnen zur Verfügung steht. Hier können Kinder spielen, Haustiere frei laufen oder Sie einfach die Sonne genießen. Ein geräumiges Gartenhaus sorgt für zusätzlichen Stauraum und bietet Platz für Garten- und Terrassenutensilien. Ein Highlight ist der unverbaute Blick über die Felder bis nach Cronenberg.
Die praktische Garage und die Möglichkeit, ein Auto direkt vor der Garage zu parken, runden die Optionsvielfalt ab.
Technische Ausstattung & energetische Merkmale
Die Wohnung überzeugt durch eine zeitgemäße Bauweise und eine gepflegte Ausstattung:
Holzfenster bzw. Kunststofffenster mit Doppelverglasung sorgen für eine angenehme Wohnatmosphäre.
Laminatböden verleihen den Räumen ein modernes und wohnliches Flair.
Die Beheizung erfolgt über eine Holzpelletheizung aus dem Jahr 2008.
Die Warmwasserbereitung wird über Durchlauferhitzer gewährleistet.
Zwei verschließbare Kellerräume und/oder Hobbyräume, eine Dusche sowie ein eigener Wasch- und Trockenraum runden das Platzangebot ab.
Die Verwaltung der Immobilie wird von den Eigentümern selbstständig organisiert, was eine persönliche und unkomplizierte Abstimmung innerhalb der Hausgemeinschaft ermöglicht.
Lassen Sie sich bei einer persönlichen Besichtigung von dieser außergewöhnlichen Immobilie überzeugen. Für weitere Informationen und Terminvereinbarungen steht Ihnen Herr Michael Sorgnit jederzeit gerne zur Verfügung.
Sonstiges
Der Kaufpreis für die Immobilie beträgt 349.000,00 € zuzüglich der vom Käufer zu zahlenden Provision in Höhe von 3,57 % inkl. gesetzl. Mehrwertsteuer. Wir sind vom Eigentümer allein beauftragt, Verhandlungen mit Interessenten zu führen.
Der Makler-Vertrag mit uns kommt durch schriftliche Vereinbarung oder durch die Inanspruchnahme unserer Maklertätigkeit auf der Basis des Objekt-Exposés und seiner Bedingungen zustande. Die Käufercourtage ist bei notariellem Vertragsabschluss verdient und fällig. Grunderwerbsteuer, Notar- und Gerichtskosten trägt der Käufer. Sollte das von uns nachgewiesene Objekt bereits bekannt sein, teilen Sie uns dies bitte unverzüglich mit. Die Weitergabe dieses Exposés an Dritte ohne unsere Zustimmung löst gegebenenfalls Courtage- bzw. Schadensersatzansprüche aus.
Kleingedrucktes:
Alle Angaben basieren ausschließlich auf Informationen, die uns von unserem Auftraggeber übermittelt wurden. Wir übernehmen keine Gewähr für die Vollständigkeit, Richtigkeit und Aktualität dieser Angaben. Zwischenverkauf bleibt vorbehalten.
Lage
Diese ansprechende Immobilie befindet sich in einer Seitenstraße im lebendigen Solingen-Gräfrath. Der malerische und einladende Ortskern mit seinen charmanten Cafés und verwinkelten Gassen ist fußläufig in 20 Minuten erreichbar und verleiht der Umgebung eine besondere Atmosphäre.
Ebenfalls für Spaziergänger geeignet sind die Felder und Wiesen, die direkt an das Grundstück angrenzen.
In unmittelbarer Nähe stehen Ihnen eine ausgezeichnete Infrastruktur und zahlreiche Versorgungsmöglichkeiten zur Verfügung: Ärzte, eine Bäckerei sowie ein Supermarkt befinden sich in direkter Nachbarschaft. Die umliegende Bebauung wird überwiegend von stilvollen Einfamilienhäusern geprägt, ergänzt durch einige Mehrfamilienhäuser.
Die verkehrstechnische Anbindung ist hervorragend: Die Buslinien 690, 695 und NE23 sind schnell zu Fuß erreichbar und ermöglichen eine flexible Mobilität innerhalb der Stadt. Zudem bietet die nahe gelegene Autobahn A46 eine schnelle Verbindung nach Wuppertal, Haan sowie in die Metropolen Düsseldorf und Köln. Auch die übrigen Stadtteile Solingens sind dank der Stadt-Autobahn L141n bequem zugänglich.
42653 Solingen, Deutschland (auf Google Maps ansehen)























