Referenzen.
Startseite > Verkauf > Referenzen
Ohligs. Charmante Zwei-Zimmerwohnung. Sanierungsbedürftig.
42697 Solingen, Erdgeschosswohnung zum Kauf
Referenz
Dieses Objekt wurde bereits erfolgreich vermittelt.
Objektdaten
-
Objekt IDEJ 2139
-
ObjekttypenErdgeschosswohnung, Wohnung
-
Adresse42697 Solingen
-
Etagen im Haus4
-
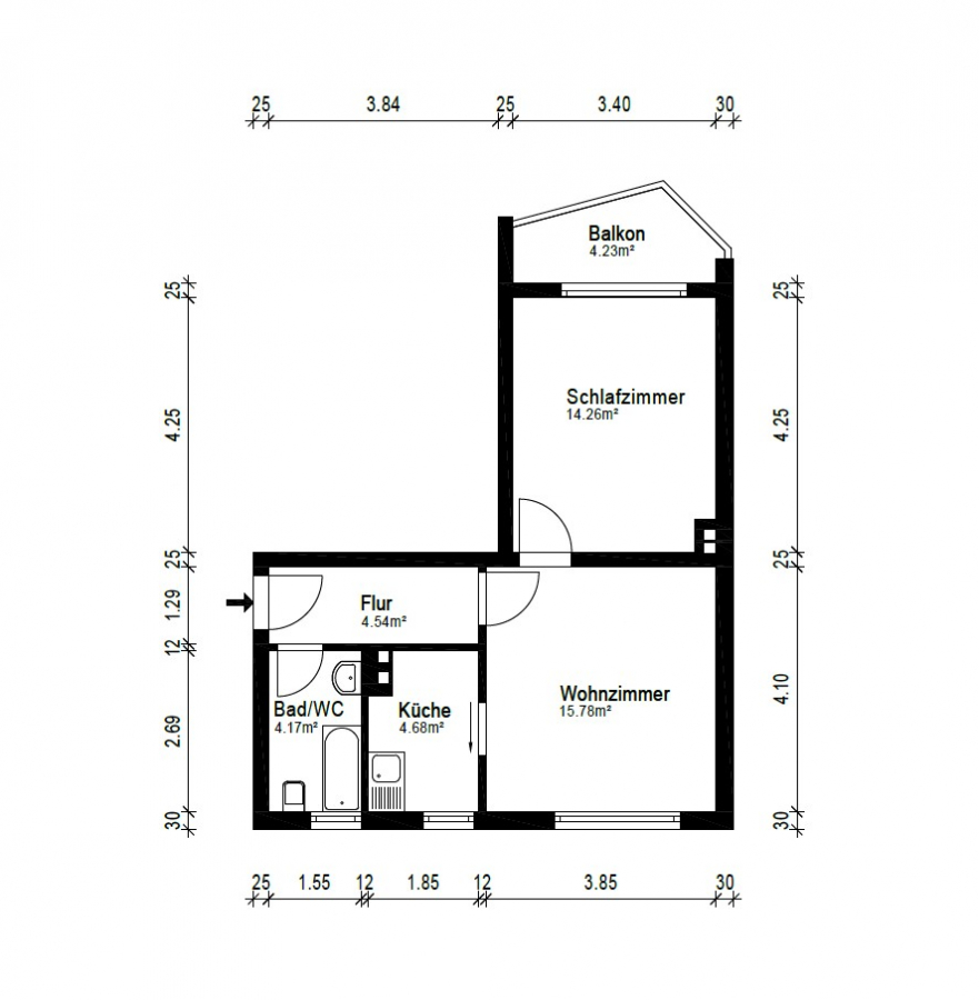
Wohnfläche ca.44,49 m²
-
Zimmer2
-
Schlafzimmer0,0
-
Badezimmer1
-
Balkone1
-
HeizungsartEtagenheizung
-
Wesentlicher EnergieträgerGas
-
Baujahr1954
-
Verfügbar absofort
Ausstattung / Merkmale
- ✓ Balkon
- ✓ Keller
Objektbeschreibung
Beschreibung
Die Zwei-Zimmer-Wohnung befindet sich im Hochparterre eines gepflegten Mehrfamilienhauses mit insgesamt neun Parteien. Auf einer Wohnfläche von ca. 44 m² überzeugt die Wohnung durch eine überschaubare und zugleich praktische Raumaufteilung. Die Wohnung bedarf einer Grundsanierung und ist dann sowohl als Kapitalanlage als auch zum Eigennutz perfekt geeignet.
Vom Schlafzimmer aus gelangen Sie direkt auf den Balkon, der einen angenehmen Blick ins Grüne bietet und zusätzlichen Platz zur Erholung schafft. Alle Fenster der Wohnung sind mit Jalousien ausgestattet. Ein eigener Kellerraum sorgt für zusätzlichen Stauraum. Die ruhige Wohnlage mit viel Grün unterstreicht den wohnlichen Charakter der Einheit.
Die Eigentümergemeinschaft wird von einer professionellen Hausverwaltung betreut, die sich zuverlässig um alle Belange der Eigentümer und die Instandhaltung des Hauses kümmert. Zum Stichtag 31.12.2024 beträgt die Rücklage der Gemeinschaft 306.596,64€, was für eine solide wirtschaftliche Basis spricht. Das monatliche Hausgeld beläuft sich aktuell auf 140,00€ bei Leerstand. Je nach Verbrauch wird dies angepasst.
Die Immobilie eignet sich sowohl für Eigennutzer als auch für Kapitalanleger, die eine zentrale und gleichzeitig ruhige Wohnlage mit intakter Nachbarschaft und langfristigem Wertpotenzial zu schätzen wissen.
Sonstiges
Der Kaufpreis für die Immobilie beträgt 94.000,00 € zuzüglich der vom Käufer zu zahlenden Provision in Höhe von 3,57 % inkl. gesetzl. Mehrwertsteuer. Sollte der Verkaufspreis jedoch bei oder unter 83.500,00 € liegen, wird die festgelegte Mindestprovision von 2.975,00 € inkl. gesetzl. Mehrwertsteuer fällig.
Wir sind vom Eigentümer allein beauftragt, Verhandlungen mit Interessenten zu führen.
Der Makler-Vertrag mit uns kommt durch schriftliche Vereinbarung oder durch die Inanspruchnahme unserer Maklertätigkeit auf der Basis des Objekt-Exposés und seiner Bedingungen zustande. Die Käufercourtage ist bei notariellem Vertragsabschluss verdient und fällig. Grunderwerbsteuer, Notar- und Gerichtskosten trägt der Käufer. Sollte das von uns nachgewiesene Objekt bereits bekannt sein, teilen Sie uns dies bitte unverzüglich mit. Die Weitergabe dieses Exposés an Dritte ohne unsere Zustimmung löst gegebenenfalls Courtage- bzw. Schadensersatzansprüche aus.
Kleingedrucktes:
Alle Angaben basieren ausschließlich auf Informationen, die uns von unserem Auftraggeber übermittelt wurden. Wir übernehmen keine Gewähr für die Vollständigkeit, Richtigkeit und Aktualität dieser Angaben. Zwischenverkauf bleibt vorbehalten.
Lage
Die Wohnung befindet sich in zentraler Lage auf der Hamburger Straße, nur wenige Gehminuten vom Solinger Hauptbahnhof entfernt. Damit profitieren Bewohner gleichermaßen von urbaner Nähe und einer hervorragenden Erreichbarkeit.
Das direkte Umfeld ist geprägt von einer lebendigen Mischung aus Wohnhäusern, kleinen Geschäften und gastronomischen Angeboten. Einkaufsmöglichkeiten für den täglichen Bedarf, Dienstleister und Ärzte sind bequem zu Fuß erreichbar.
Die Anbindung an den öffentlichen Nahverkehr ist ausgezeichnet: Neben dem Solinger Hauptbahnhof mit Anschluss an den Regional- und Fernverkehr befinden sich auch mehrere Bushaltestellen in der Nähe. So lassen sich innerstädtische Ziele ebenso schnell erreichen wie die umliegenden Städte Düsseldorf, Köln oder Wuppertal.
Für Autofahrer bietet die Lage ebenfalls ideale Voraussetzungen. Über die B229 sowie die nahegelegene A3 und A46 ist eine schnelle Verbindung gewährleistet.
Diese Kombination aus zentraler Lage, sehr guter Infrastruktur und optimaler Verkehrsanbindung macht die Wohnung gleichermaßen interessant für Studierende, Berufspendler und Eigennutzer.
42697 Solingen, Deutschland (auf Google Maps ansehen)









