Referenzen.
Startseite > Verkauf > Referenzen
Burscheid. Moderne 3-Zimmer-Erdgeschosswohnung mit Garten.
51399 Burscheid, Erdgeschosswohnung zum Kauf
Referenz
Dieses Objekt wurde bereits erfolgreich vermittelt.
Objektdaten
-
Objekt IDMS1388
-
ObjekttypenErdgeschosswohnung, Wohnung
-
Adresse51399 Burscheid
-
Etagen im Haus3
-
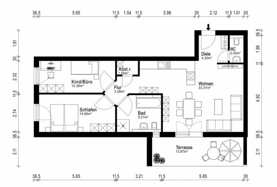
Wohnfläche ca.83,15 m²
-
Nutzfläche ca.10,48 m²
-
Gesamtfläche ca.93,63 m²
-
Zimmer3
-
Schlafzimmer2
-
Badezimmer2
-
Separate WC1
-
Terrassen1
-
HeizungsartFußbodenheizung, Fernwärme
-
Wesentlicher EnergieträgerAlternativ
-
Baujahr2019
-
Zustandneuwertig
-
Ausstattunggehoben
-
Stellplatz:1 Stellplatz
Ausstattung / Merkmale
- ✓ Einbauküche
- ✓ Keller
- ✓ Personenaufzug
- ✓ Separates WC
- ✓ Terrasse
Objektbeschreibung
Beschreibung
Diese charmante und moderne Eigentumswohnung bietet auf ca. 83 m² Wohnfläche mit drei Zimmern und einer etwa 14 m² großen Süd-Terrasse mit Garten sämtlichen Wohnkomfort, den ein Erwerber sucht. Die Immobilie wurde im Jahr 2019 erbaut und befindet sich im Erdgeschoss eines Mehrfamilienhauses. Die massiv errichtete, äußerst gepflegte Immobilie wird überwiegend von Eigentümern bewohnt und befindet sich etwas nach hinten versetzt von der Straße.
Die Wohnfläche verteilt sich auf einen Wohn-/Essbereich mit einer offenen und hochwertigen Einbauküche, ein helles Schlafzimmer, ein Kinderzimmer/Büro, ein gemütliches Badezimmer mit Badewanne und ebenerdiger Dusche sowie ein Gäste-WC.
Vom Wohn-/Essbereich aus haben Sie Zugang zur großen Terrasse und zu dem ca. 80 m² großen, angelegten Garten. Dieses Areal steht Ihnen im Rahmen des Sondernutzungsrechtes allein zur Verfügung. Hier kommen Kinder, Haustiere und Gartenliebhaber gleichermaßen auf Ihre Kosten. Ein separater Abstellraum sorgt innerhalb der Wohnung für Ordnung.
Die attraktive Immobilie ist mit hochwertigen, großformatigen Fliesen in hellem Grauton ausgestattet, dunkelgraue Fliesen wurden im Badezimmer verlegt.
Außerdem verfügt die Immobilie über 3-fach-verglaste, bodentiefe Kunststofffenster und -türen, die mittels Rollläden beschattbar sind und gesichert werden können. Die in der Wohnung verlegte Fußbodenheizung sowie die Erwärmung des Wassers erfolgt über ein lokales Blockheizkraftwerk.
Bei der Herstellung der Immobilie wurde darauf geachtet, möglichst barrierearm zu bauen, so erreichen Sie die Immobilie stufenlos und auch innerhalb der Wohnung sind unter anderem die Türzargen breiter als das herkömmliche Standardmaß.
Sehr komfortabel gestaltet sich die Nutzung des Wasch- und Trockenraumes sowie der Fahrradkeller, denn dank des Personenaufzugs gelangen Sie stufenlos in den Keller des Hauses, wo sich zusätzlich ein verschließbarer Raum befindet, der zu der Wohnung gehört.
Nahegelegen zum Hauseingang befindet sich der Außenstellplatz mit installierter Wallbox, an der Sie bequem Ihr Auto laden können. Der Stellplatz ist bereits im Kaufpreis inkludiert.
Das monatliche Hausgeld beläuft sich inkl. Heizkosten auf derzeit ca. 551 € und beinhaltet eine Zuführung zur Instandhaltungsrücklage in Höhe von ca. 67 €.
Lassen Sie sich von dieser attraktiven Immobilie im Rahmen einer persönlichen Besichtigung überzeugen. Hierfür steht Ihnen Herr Michael Sorgnit jederzeit gerne zur Verfügung.
Ausstattung
- Einbauküche
- Fußbodenheizung
- 3-fach-Verglasung
- extra breite Türzargen
- barrierearm gebaut
- Außenstellplatz mit installierter Wallbox
- Terrasse in Süd-Ausrichtung
- großzügiger Garten
Sonstiges
Der Kaufpreis für die Immobilie beträgt 318.000,00€ zuzüglich der vom Käufer zu zahlenden Provision in Höhe von 3,57 % inkl. gesetzl. Mehrwertsteuer. Wir sind vom Eigentümer allein beauftragt, Verhandlungen mit Interessenten zu führen.
Der Makler-Vertrag mit uns kommt durch schriftliche Vereinbarung oder durch die Inanspruchnahme unserer Maklertätigkeit auf der Basis des Objekt-Exposés und seiner Bedingungen zustande. Die Käufercourtage ist bei notariellem Vertragsabschluss verdient und fällig. Grunderwerbsteuer, Notar- und Gerichtskosten trägt der Käufer. Sollte das von uns nachgewiesene Objekt bereits bekannt sein, teilen Sie uns dies bitte unverzüglich mit. Die Weitergabe dieses Exposés an Dritte ohne unsere Zustimmung löst gegebenenfalls Courtage- bzw. Schadensersatzansprüche aus.
Kleingedrucktes:
Alle Angaben basieren ausschließlich auf Informationen, die uns von unserem Auftraggeber übermittelt wurden. Wir übernehmen keine Gewähr für die Vollständigkeit, Richtigkeit und Aktualität dieser Angaben. Zwischenverkauf bleibt vorbehalten.
Lage
Die Immobilie liegt ruhig und naturnah, aber dennoch zentral, in beliebter Lage von Burscheid. Dienstleistungsunternehmen, Geschäfte jeglicher Art und Gastronomie-Angebote sind in der näheren Umgebung zu finden. Die gute Anbindung an den öffentlichen Nahverkehr ist gewährleistet, auch überörtlich aus den umliegenden Städten, wie Leichlingen, Langenfeld, Leverkusen und Köln. Ein guter Anschluss an die Autobahn A1 ist ebenfalls gegeben. Direkt vor der Haustüre erstreckt sich der beliebte Panorama Radweg Balkantrasse. Auf einer Gesamtstrecke von ca. 51 Kilometern zwischen Leverkusen und Remscheid kann man fast ohne Steigung entspannt die ländliche Idylle sowie das städtische Leben genießen.
Die dargestellte Position der Immobilie ist nur eine ungefähre Angabe.







