Referenzen.
Startseite > Verkauf > Referenzen
Einzigartige Single-Wohnung in denkmalgeschützter Hofanlage. Düsseldorf-Hubbelrath.
40629 Düsseldorf / Hubbelrath, Dachgeschosswohnung zur Miete
Referenz
Dieses Objekt wurde bereits erfolgreich vermittelt.
Objektdaten
-
Objekt ID1807
-
ObjekttypenDachgeschosswohnung, Wohnung
-
Adresse40629 Düsseldorf / Hubbelrath
-
Wohnfläche ca.72 m²
-
Zimmer2
-
Schlafzimmer1
-
Badezimmer1
-
Separate WC1
-
HeizungsartFußbodenheizung
-
Wesentlicher EnergieträgerGas
-
Baujahr2020
-
Zustandneuwertig
-
Ausstattunggehoben
-
Verfügbar ab01.09.2024
-
Tiefgarage:1 Stellplatz
Ausstattung / Merkmale
- ✓ Einbauküche
- ✓ Kabel-/Sat-TV
- ✓ Separates WC
Objektbeschreibung
Beschreibung
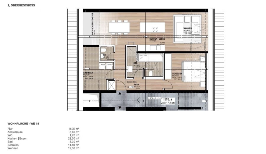
Diese einzigartige 2-Zimmer-Wohnung befindet sich im Dachgeschoss des unter Denkmalschutz stehendem "Gut zum Hof" aus dem Jahr 1877, welcher im Jahr 2020 umfangreich saniert wurde. Die Wohnfläche von ca. 72 m² verteilt sich auf ein Wohn-/Esszimmer mit offener Küche (inkl. hochwertiger Einbauküche), ein Schlafzimmer, ein Hauswirtschaftsraum mit Waschmaschinen- und Trockneranschluss, ein separates Gäse-WC sowie ein großes Badezimmer mit Walk-In-Dusche und Badewanne. Über eine Leiter gelangt man auf den über dem Badezimmer liegenden Spitzboden, der Ihnen zusätzlichen Stauraum bietet.
Große Dachfenster lassen viel Licht in Küche/Wohnzimmer und das Schlafzimmer und entwickeln in geöffnetem Zustand das Gefühl einer Loggia.
Die genaue Aufteilung der Wohnung können Sie der beigefügten Grundriss-Skizze entnehmen.
Ausstattung
- Wohn-/Esszimmer mit hochwertiger Einbauküche inkl. Bora Kochfeldabzug sowie einem Siemens Backofen mit Mikrowelle
- großzügiges Badezimmer mit Walk-In-Dusche und Badewanne
- separates Gäste-WC
- Schlafzimmer
- Velux Elektro-Dachflächenfenster
- Hauswirtschaftsraum mit Waschmaschinen- und Trockneranschluss
- Einbau-Garderobenschrank in der Diele
- ca. 7 m² großer Spitzboden
- Tiefgaragenstellplatz
Sonstiges
Die Kaltmiete beträgt 980,00 EUR zzgl. 300,00 EUR Nebenkostenvorauszahlung zzgl. 90,- EUR Tiefgaragenstellplatz. Die Kaution beläuft sich auf 2.940,00 EUR (dies entspricht drei Nettokaltmieten).
Der schnellste Weg zu uns ist nur einen Klick entfernt. Nutzen Sie bitte die Schaltfläche „Nachricht“ und schreiben Sie uns darüber eine E-Mail.
Da dies ein weitgehend automatisierter Prozess ist, erhalten Sie so kurzfristig die Adresse der Immobilie und können diese anschließend diskret von außen besichtigen.
Wenn Sie einen Besichtigungstermin der Wohnung wünschen, lassen Sie uns bitte die dem Exposé beigefügte Selbstauskunft inkl. Datenschutz unterschrieben zukommen.
Das Exposé wurde für Sie sorgfältig und nach bestem Wissen erstellt. Grundlage der vorstehenden Angaben sind Informationen und/ oder Unterlagen, welche uns seitens der Eigentümer oder Dritter zur Verfügung gestellt worden sind. Eine Gewähr für die Richtigkeit der Angaben kann nicht übernommen werden.
Lage
Der unter Denkmalschutz stehende Gut zum Hof von 1877 liegt umringt von Feldern zwischen
Mettmann und Ratingen auf Düsseldorfer Stadtgebiet. In jeweils weniger als 15 Minuten sind Sie in der Mettmanner bzw. Ratinger Innenstadt oder dem Düsseldorfer Flughafen. Die Düsseldorfer Altstadt erreichen Sie in nur 25 Minuten.
Die dargestellte Position der Immobilie ist nur eine ungefähre Angabe.









