Aktuelle Immobilien.
Startseite > Kauf > Immobilienangebot
Einmalige Chance für Kapitalanaleger. Drei Wohnungen in einem Haus.Charmanter Altbau. Gepflegt.
42651 Solingen, Wohnanlagen zum Kauf
Kontaktdaten
-
NameFrau Ellen Jaros
-
FirmaKUBIKOM Immobilien GmbH
-
AnschriftKeldersstr. 6
42697 Solingen -
E-Mail
-
E-Mail
-
Telefon
-
Telefon
reserviert
Dieses Objekt ist zur Zeit leider nicht verfügbar.
Objektdaten
-
Objekt IDEJ2304
-
ObjekttypenRenditeobjekt, Wohnanlagen
-
Adresse42651 Solingen
-
EtageEG
-
Wohnfläche ca.158,64 m²
-
Vermietbare Fläche ca.158,64 m²
-
Zimmer7
-
Schlafzimmer0,0
-
Badezimmer3
-
Balkone1
-
Wesentlicher EnergieträgerGas
-
Baujahr1911
-
Verfügbar absofort
Ausstattung / Merkmale
- ✓ Balkon
- ✓ Keller
Energieausweis
-
EnergieausweistypBedarfsausweis
-
Gültig bis08.07.2035
-
GebäudeartWohngebäude
-
Baujahr lt. Energieausweis2024
-
PrimärenergieträgerGas
-
Endenergiebedarf215,80 kWh/(m²·a)
-
EnergieeffizienzklasseG
Objektbeschreibung
Beschreibung
Zum Verkauf steht ein attraktives Wohnungspaket bestehend aus drei Einheiten von insgesamt acht (31,06 %) in einem gepflegten Mehrfamilienhaus aus dem Jahr 1911. Die Immobilie mit insgesamt nur acht Wohneinheiten befindet sich in ruhiger Lage und zeichnet sich durch eine gepflegte Bausubstanz, laufende Instandhaltung und ein aktives, selbstverwaltetes Eigentümerumfeld aus.
Die Einheiten im Überblick:
EG-Wohnung (ca. 43 m², 2 Zimmer):
Langfristig vermietet, solide Mieteinnahmen (aktuell 310 € kalt). 2023 modernisiertes Tageslichtbad, neue Fenster, funktionale Raumaufteilung – ideal für eine nachhaltige Vermietung mit Entwicklungspotenzial. Einzelpreis: 85.000 €
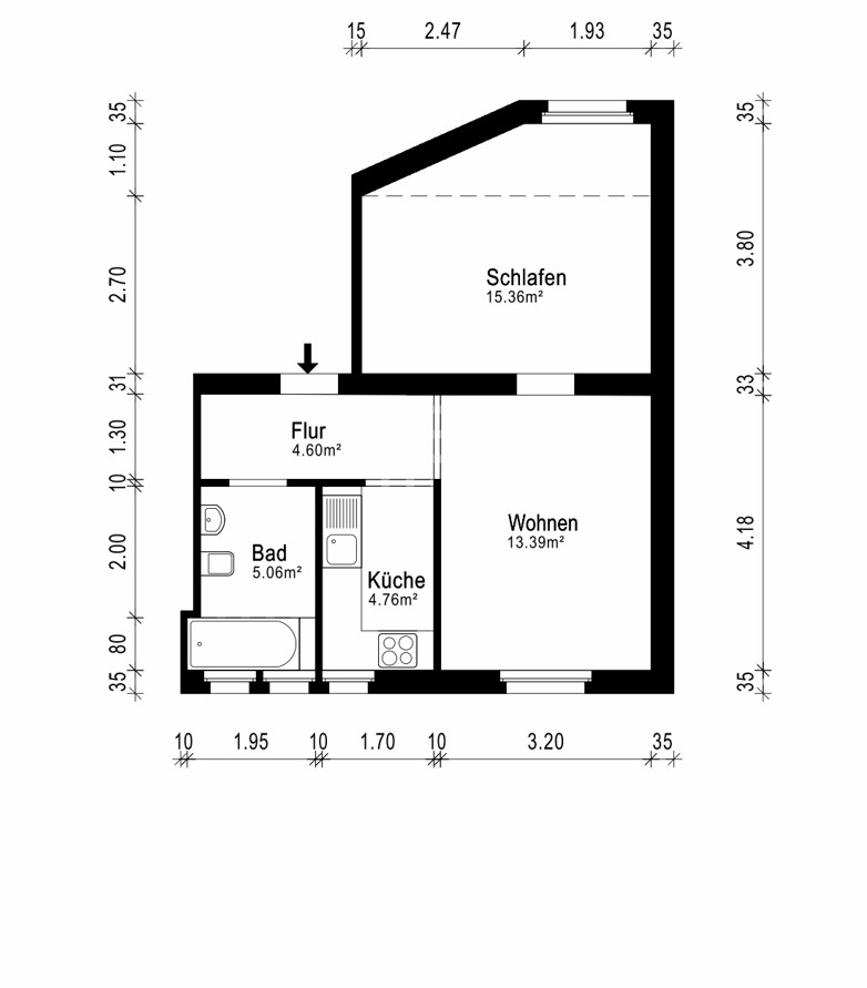
1. OG rechts (ca. 76 m², 3 Zimmer):
Großzügige Wohnung mit Balkon, lichtdurchfluteter Küche mit Erker, Tageslichtbad, praktischem Stauraum und stabilem Mietertrag (aktuell 595 € kalt). Sehr gute Vermietbarkeit und attraktives Mietsteigerungspotenzial. Ab Anfang 2026 leerstehend. Einzelpreis 179.000 €.
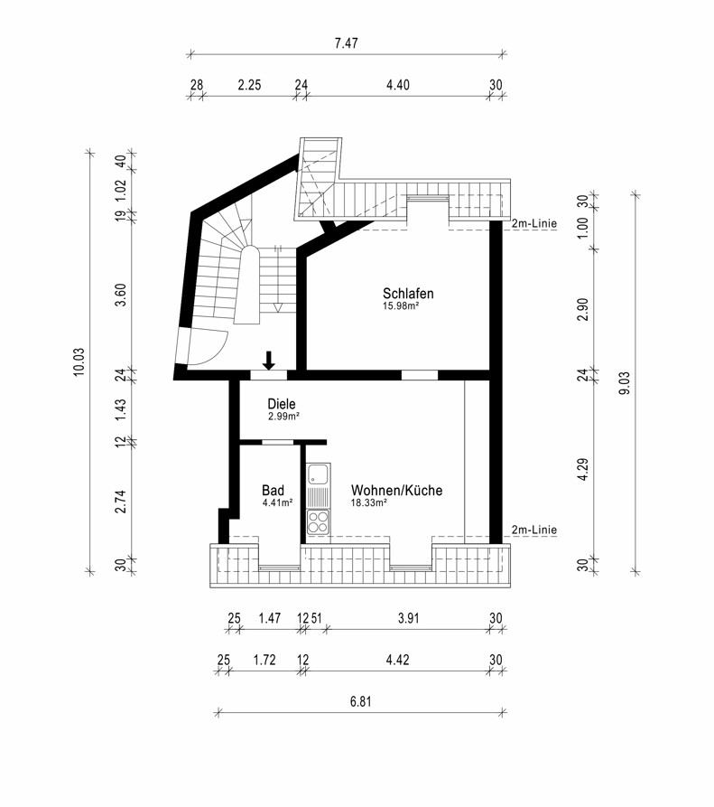
DG-Wohnung (ca. 40 m², 2 Zimmer):
Leerstehend und sofort verfügbar – ideal zur Neuvermietung oder Eigennutzung. Stilvolle Atmosphäre mit sichtbarem Gebälk, Einbauküche, Tageslichtbad, saniertem Gemeinschaftseigentum. Einzelpreis: 89.000 €
Wir gehen davon aus, dass eine Soll-Nettokaltmiete von ca. 18.000 € erzielt werden kann.
Sie können die Objekte auch einzeln erwerben. Die Preise dazu sehen Sie in der Übersicht oben im Text.
Highlights des Gesamtobjekts:
Selbstverwaltete Eigentümergemeinschaft mit engagierter Pflege des Gemeinschaftseigentums
Laufende Modernisierungen: Fassade (2023), Heizung (2024), Fenster und Bäder teils erneuert
Kein Sanierungsstau – weitere Maßnahmen (z. B. Treppenhausanstrich) sind bereits geplant
Öffentliche Stellplätze im direkten Umfeld
Ruhige Wohnlage mit gewachsener Mieterstruktur
Dieses Wohnungspaket bietet eine sofort nutzbare Kapitalanlage mit drei Einheiten in einem stabilen Umfeld, davon zwei mit laufenden Mieteinnahmen und eine bezugsfreie Wohnung zur sofortigen Vermietung oder Eigennutzung. Ideal für Investoren, die solide Substanz mit Potenzial suchen.
Für weitere Informationen oder einen Besichtigungstermin wenden Sie sich bitte an Frau Ellen Jaros.
Sonstiges
Der Kaufpreis für die Immobilie beträgt 320.000,00 € zuzüglich der vom Käufer zu zahlenden Provision in Höhe von 3,57 % inkl. gesetzl. Mehrwertsteuer.
Wir sind vom Eigentümer allein beauftragt, Verhandlungen mit Interessenten zu führen.
Der Makler-Vertrag mit uns kommt durch schriftliche Vereinbarung oder durch die Inanspruchnahme unserer Maklertätigkeit auf der Basis des Objekt-Exposés und seiner Bedingungen zustande. Die Käufercourtage ist bei notariellem Vertragsabschluss verdient und fällig. Grunderwerbsteuer, Notar- und Gerichtskosten trägt der Käufer. Sollte das von uns nachgewiesene Objekt bereits bekannt sein, teilen Sie uns dies bitte unverzüglich mit. Die Weitergabe dieses Exposés an Dritte ohne unsere Zustimmung löst gegebenenfalls Courtage- bzw. Schadensersatzansprüche aus.
Kleingedrucktes:
Alle Angaben basieren ausschließlich auf Informationen, die uns von unserem Auftraggeber übermittelt wurden. Wir übernehmen keine Gewähr für die Vollständigkeit, Richtigkeit und Aktualität dieser Angaben. Zwischenverkauf bleibt vorbehalten.
Lage
Die Eigentumswohnung befindet sich in Solingen-Mitte, nur wenige Schritte vom Herzen der Innenstadt entfernt. Die Lage verbindet urbanen Komfort mit hoher Lebensqualität – ideal für alle, die zentrale Erreichbarkeit, ein gepflegtes Wohnumfeld und kurze Wege zu schätzen wissen.
Das Wohnumfeld ist geprägt von einer angenehmen Mischung aus Wohn- und Geschäftshäusern, begrünten Innenhöfen und kurzen Wegen zu allen Dingen des täglichen Bedarfs. Die Fußgängerzone Solingen-Mitte mit zahlreichen Einkaufsmöglichkeiten, Cafés, Restaurants, Apotheken, Banken und Ärzten ist bequem zu Fuß erreichbar. Auch das Hofgarten-Center, der Theater- und Konzerthausbereich sowie verschiedene Wochenmärkte und Stadtfeste sorgen für ein lebendiges und zugleich gut organisiertes Stadtleben.
Trotz der zentralen Lage kommt auch die Natur nicht zu kurz: Der beliebte Botanische Garten Solingen, die Parkanlage Bärenloch, das Lochbachtal und der Kunstwanderweg entlang der Wupper bieten vielfältige Möglichkeiten für Erholung, Sport oder einfach entspannte Stunden im Grünen – und das in unmittelbarer Nähe zur Wohnung.
Die Verkehrsanbindung ist hervorragend: Die Bushaltestellen am Graf-Wilhelm-Platz und in der Innenstadt sind fußläufig in wenigen Minuten erreichbar und bieten direkte Verbindungen in alle Solinger Stadtteile sowie zu den Bahnhöfen in Solingen-Ohligs und Solingen-Mitte. Der Hauptbahnhof Solingen bietet zudem regelmäßige Regional- und S-Bahn-Verbindungen Richtung Köln, Düsseldorf und Wuppertal.
Auch mit dem Auto ist die Wohnung optimal angebunden: Die A46 (Haan-Ost) ist in etwa 15 Minuten, die A3 (Solingen/Ohligs) in rund 20 Minuten erreichbar. Damit sind die Städte Düsseldorf, Köln, Leverkusen, Langenfeld und Wuppertal in 20 bis 40 Minuten bequem zu erreichen – ideal für Berufspendler oder alle, die in der Region flexibel bleiben möchten.
42651 Solingen, Deutschland (auf Google Maps ansehen)





















