Referenzen.
Startseite > Verkauf > Referenzen
Über 7% Ist-Rendite. Mehrfamilienhaus mit Halle und Stellplätzen in Wald.
42719 Solingen, Mehrfamilienhaus zum Kauf
Referenz
Dieses Objekt wurde bereits erfolgreich vermittelt.
Objektdaten
-
Objekt IDMS2077
-
ObjekttypenMehrfamilienhaus, Renditeobjekt
-
Adresse42719 Solingen
-
Wohnfläche ca.364 m²
-
Grundstück ca.703 m²
-
Nutzfläche ca.490 m²
-
Vermietbare Fläche ca.364 m²
-
Zimmer12
-
Schlafzimmer0,0
-
Badezimmer0,0
-
HeizungsartZentralheizung
-
Wesentlicher EnergieträgerGas
-
Baujahr1895
-
Statusvermietet
-
Verfügbar absofort
Ausstattung / Merkmale
- ✓ Gewerblich nutzbar
- ✓ Teilunterkellert
Objektbeschreibung
Beschreibung
Das Mehrfamilienhaus mit kleiner Halle und Freifläche wurde ursprünglich um 1895 auf einem 703 m² großen Grundstück erbaut.
Die Immobilie verfügt über sechs Wohneinheiten mit einer Wohnfläche von insgesamt 364 m², eine Hallenfläche von 80 m² sowie fünf Stellplätze.
Das Haus ist voll unterkellert und verfügt über einen Gas-Anschluss.
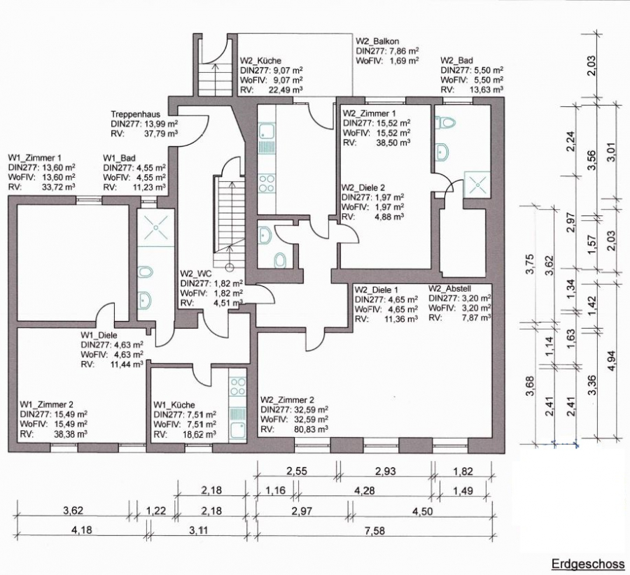
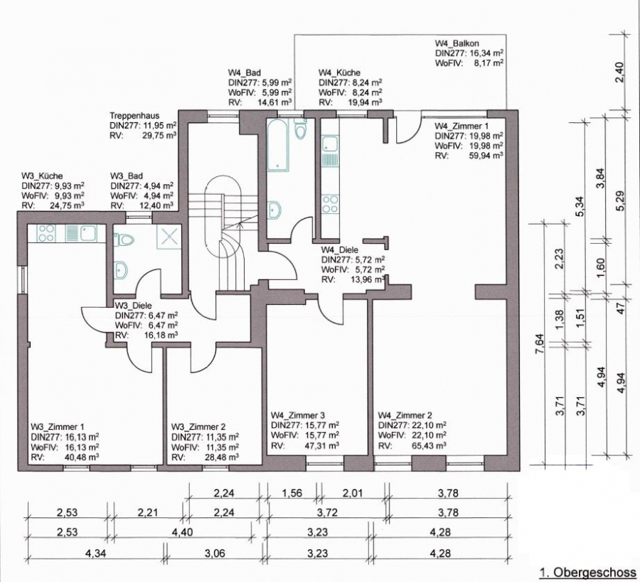
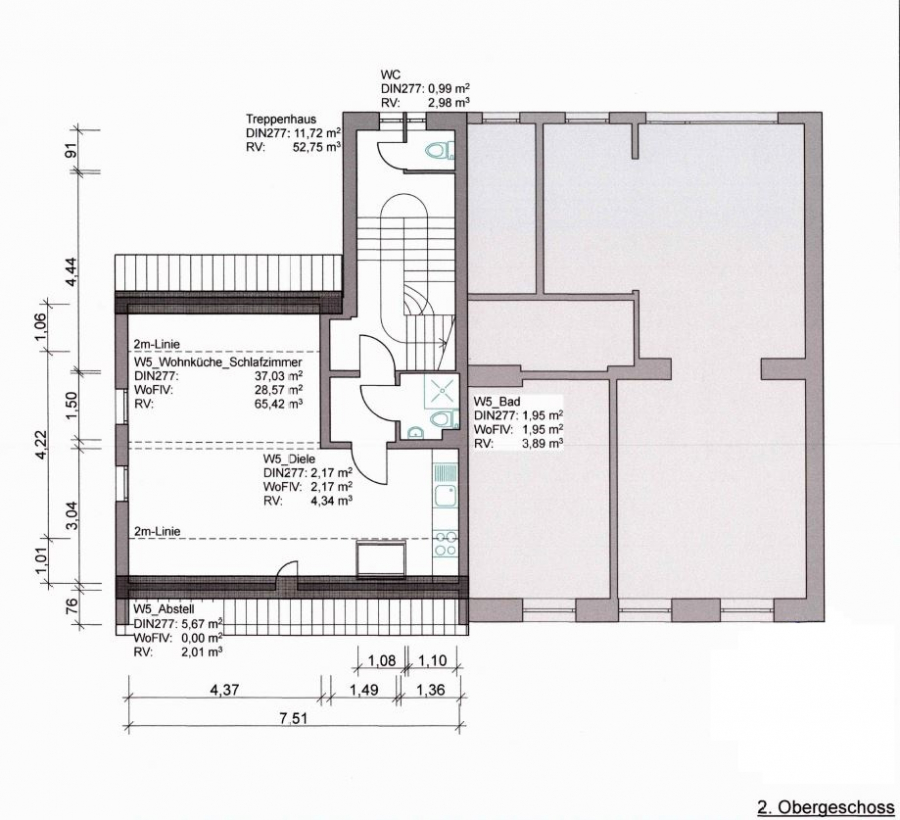
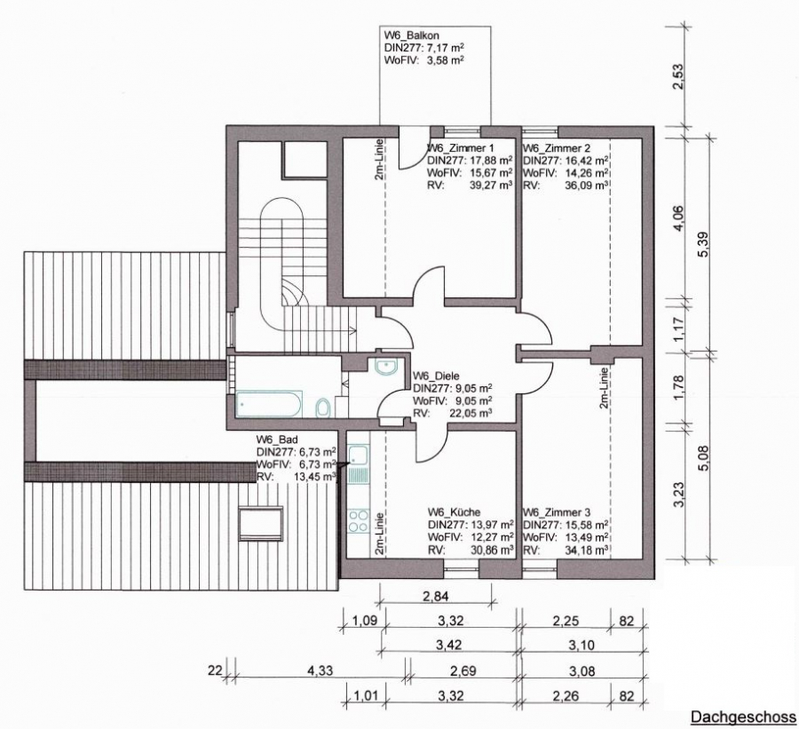
Drei Wohnungen verfügen über Wohnflächen zwischen 75 – 86 m² ; zwei weitere Wohnungen verfügen über jeweils 48 m² Wohnfläche, die sechste Wohnung ist ein Apartment mit insgesamt 35 m² Wohnfläche. Drei Wohnungen verfügen über einen Balkon oder eine Terrasse.
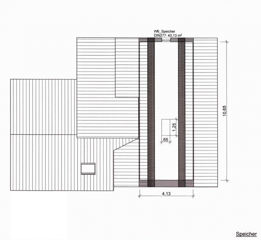
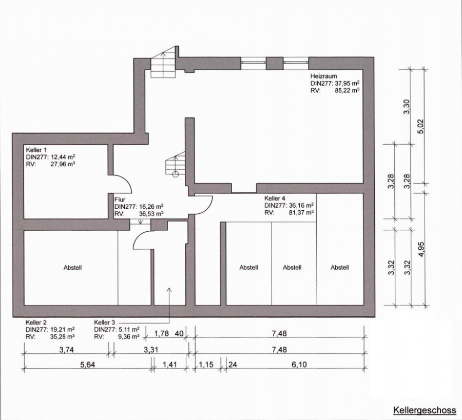
Die genaue Aufteilung entnehmen Sie bitte den beigefügten Grundriss-Skizzen
Fünf der Wohnungen wurden in den letzten Jahren modernisiert, drei Wohnungen haben ein neues Badezimmer erhalten, die anderen drei Bäder sind weiß gefliest. Somit erfüllt die Immobilie auch höhere Ansprüche von Mietern und möglichen Mietinteressenten.
Die 90 m² große Halle verfügt über eine Deckenhöhe zwischen 3,10 m – 3,60 m, mit Rolltoren von 3,20 m Höhe sowie einen kleinen Aufenthaltsraum und ein Badezimmer mit Dusche, welches weiß gefliest ist. Derzeit wird die Halle vornehmlich als Lagerfläche von einem kleinen Handwerkerteam genutzt.
Die Mieteinnahmen belaufen sich derzeit auf 46.740€ pro Jahr; eine Erhöhung der Miete ist aus unserer Sicht grundsätzlich realisierbar.
Hinweis:
Auf dem Grundstück dahinter, in zweiter Reihe befindet sich ein neu erbautes Einfamilienhaus, die Zuwegung erfolgt über den Parkplatz der angebotenen Immobilie und ist durch entsprechende Wegerechte abgesichert.
Für Kapitalanleger bietet diese Immobilie eine solide und renditestarke Investition mit langfristigem Wertsteigerungspotenzial, attraktiven Mieteinnahmen und – aufgrund der bereits durchgeführten Modernisierungen – wahrscheinlich langfristige Mietverhältnisse.
Lassen Sie sich von dieser attraktiven Immobilie im Rahmen einer persönlichen Besichtigung überzeugen. Hierfür steht Ihnen Herr Michael Sorgnit jederzeit gerne zur Verfügung.
Sonstiges
Der Kaufpreis für die Immobilie beträgt 645.000,00€ zuzüglich der vom Käufer zu zahlenden Provision in Höhe von 3,57 % inkl. gesetzl. Mehrwertsteuer. Wir sind vom Eigentümer allein beauftragt, Verhandlungen mit Interessenten zu führen.
Der Makler-Vertrag mit uns kommt durch schriftliche Vereinbarung oder durch die Inanspruchnahme unserer Maklertätigkeit auf der Basis des Objekt-Exposés und seiner Bedingungen zustande. Die Käufercourtage ist bei notariellem Vertragsabschluss verdient und fällig. Grunderwerbsteuer, Notar- und Gerichtskosten trägt der Käufer. Sollte das von uns nachgewiesene Objekt bereits bekannt sein, teilen Sie uns dies bitte unverzüglich mit. Die Weitergabe dieses Exposés an Dritte ohne unsere Zustimmung löst gegebenenfalls Courtage- bzw. Schadensersatzansprüche aus.
Kleingedrucktes:
Alle Angaben basieren ausschließlich auf Informationen, die uns von unserem Auftraggeber übermittelt wurden. Wir übernehmen keine Gewähr für die Vollständigkeit, Richtigkeit und Aktualität dieser Angaben. Zwischenverkauf bleibt vorbehalten.
Lage
Das Mehrfamilienhaus befindet sich in ruhiger, aber dennoch zentraler und beliebter Lage von Solingen-Wald. In der direkten Nachbarschaft sind ähnliche anmutende Mehrfamilienhäuser mit teilweise leicht gewerblicher Prägung.
Einrichtungen des täglichen Bedarfs sowie die Anbindung an den ÖPNV befinden sich in der Nähe und sind zum Teil fußläufig erreichbar.
Zur Autobahnauffahrt A46 sind es mit dem Auto nur etwa zehn Minuten. Ebenfalls erreichen Sie von hier nahezu jeden Stadtteil Solingens sowie die umliegenden Städte Haan und Hilden in nur wenigen Minuten mit dem PKW.
42719 Solingen (auf Google Maps ansehen)































