Aktuelle Immobilien.
Startseite > Kauf > Immobilienangebot
Viel Potenzial: Einfamilienhaus mit Sanierungsbedarf für kreative Eigennutzer
42327 Wuppertal, Zweifamilienhaus zum Kauf
Kontaktdaten
-
NameHerr Stefan Siepmann
-
FirmaKUBIKOM Immobilien GmbH
-
AnschriftKeldersstr. 6
42697 Solingen -
E-Mail
-
E-Mail
-
Telefon
-
Telefon
-
Mobil
Objektdaten
-
Objekt IDSTS2353
-
ObjekttypenHaus, Zweifamilienhaus
-
Adresse42327 Wuppertal
-
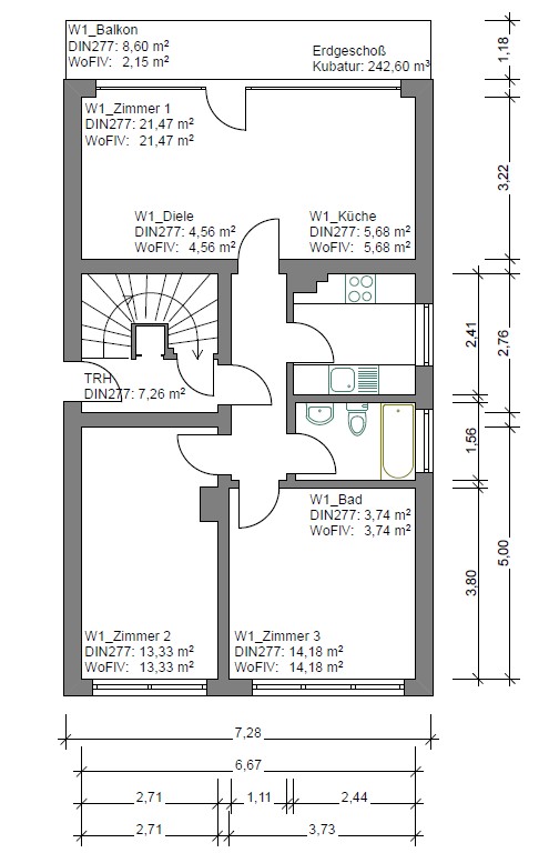
Wohnfläche ca.129,82 m²
-
Grundstück ca.317 m²
-
Nutzfläche ca.95,99 m²
-
Gesamtfläche ca.225,81 m²
-
Zimmer6
-
Schlafzimmer0,0
-
Badezimmer2
-
Balkone2
-
Wesentlicher EnergieträgerGas
-
Baujahr1966
-
Statusvermietet
-
Verfügbar abnach Vereinbarung
-
Garage:2 Stellplätze
-
Käuferprovision3,57% inkl. MwSt.
-
Kaufpreis345.000 EUR
Ausstattung / Merkmale
- ✓ Balkon
- ✓ Keller
Energieausweis
-
EnergieausweistypBedarfsausweis
-
Gültig bis01.07.2035
-
GebäudeartWohngebäude
-
Baujahr1966
-
PrimärenergieträgerGas
-
Endenergiebedarf221,80 kWh/(m²·a)
-
EnergieeffizienzklasseG
Objektbeschreibung
Beschreibung
Dieses klassische Einfamilienhaus aus dem Jahr 1966 bietet auf zwei Etagen, mit etwa 129 m² Wohnfläche und einem geräumigen Kellergeschoss eine solide Basis für visionäre Eigennutzer, die ein Zuhause nach ihren ganz eigenen Vorstellungen gestalten möchten. Mit einer Grundstücksgröße von 317 m², zwei Balkonen und gleich zwei Garagen eröffnet sich hier ein Haus mit vielen Möglichkeiten – aber auch mit klar erkennbarem Modernisierungsbedarf.
Ein Haus mit Geschichte – bereit für Neues
Das Gebäude wurde bislang als Zweifamilienhaus genutzt, was sich in der Raumstruktur widerspiegelt. Die beiden Wohnetagen verfügen jeweils über einen Balkon und sind über das zentrale Treppenhaus erreichbar – eine ideale Grundlage, um großzügiges Wohnen über zwei Ebenen zu realisieren oder Arbeiten und Wohnen elegant zu verbinden.
Aktuell ist die obere Etage bewohnt und vermietet (Jahresnettokaltmiete 4.920€), was für Eigennutzer einerseits eine Übergangszeit für die schrittweise Sanierung ermöglicht oder für Kapitalanleger eine sofortige Einnahmequelle darstellt.
Im Kellergeschoss stehen Ihnen klassische Nutzflächen wie Lagerräume, Hauswirtschaftsbereiche und eine kleine, vom Garten aus zugängliche Terrasse zur Verfügung. Dieser Außenbereich eignet sich für handwerkliche Tätigkeiten, das Trocknen der Wäsche oder als praktische Ergänzung zum Alltagsleben – mit Potenzial für clevere Gestaltungsideen.
Substanz mit Investitionsbedarf
Die Immobilie befindet sich in einem sanierungsbedürftigen Zustand und erfordert umfassende Modernisierungsmaßnahmen: Angefangen bei Elektrik bis hin zu Bädern und energetischen Aspekten muss hier zukunftsfähig investiert werden. Die vorhandene Gasheizung stammt aus dem Jahr 2009, entspricht jedoch nicht mehr den heutigen Effizienzanforderungen.
Das Grundstück liegt in Hanglage, der Garten ist aktuell nur eingeschränkt nutzbar. Auch dieser Bereich bietet Möglichkeiten für kreative Neugestaltung.
Dieses Einfamilienhaus richtet sich an Menschen mit Mut zur Veränderung und dem Wunsch, ein Objekt mit solider Grundsubstanz individuell zu modernisieren. Ob als neues Zuhause für Paare oder Familien oder als generationenübergreifende Wohnlösung – hier lässt sich mit handwerklichem Geschick und planerischem Weitblick ein echtes Wohnprojekt verwirklichen.
Für weitere Informationen oder die Vereinbarung eines Besichtigungstermins steht Ihnen Herr Stefan Siepmann gerne zur Verfügung.
Ausstattung
- Einfamilienhaus, Baujahr 1966
- Wohnfläche: 129,82 m²
- Grundstücksfläche: 317 m²
- Zwei Wohnetagen + geräumiges Kellergeschoss
- Bisherige Nutzung als Zweifamilienhaus
- Zwei Balkone (jeweils im EG und OG)
- Zwei Garagen
- Obergeschoss derzeit vermietet (Jahresnettokaltmiete 4.920€)
- Haus liegt nicht direkt an der Straße, sondern über einen Fußweg erreichbar
- Vom Keller aus zugängliche Terrasse (z. B. zum Wäschetrocknen oder für Heimwerkerarbeiten)
- Garten in Hanglage, aktuell nicht nutzbar als klassischer Garten
- Renovierungsbedürftig, hoher Modernisierungsbedarf (Elektrik, Bäder, Heizung etc.)
- Energetische Sanierung notwendig
- Gasheizung aus dem Jahr 2009
- Kellergeschoss mit Lagerräumen und Hauswirtschaftsbereichen
- Ideal für Paare, Familien oder generationenübergreifendes Wohnen
- Gestaltungsspielraum für Eigennutzer mit Ideen und handwerklichem Geschick
Sonstiges
Der Kaufpreis für die Immobilie beträgt 345.000,00€ zuzüglich der vom Käufer zu zahlenden Provision in Höhe von 3,57 % inkl. gesetzl. Mehrwertsteuer. Wir sind vom Eigentümer allein beauftragt, Verhandlungen mit Interessenten zu führen.
Der Makler-Vertrag mit uns kommt durch schriftliche Vereinbarung oder durch die Inanspruchnahme unserer Maklertätigkeit auf der Basis des Objekt-Exposés und seiner Bedingungen zustande. Die Käufercourtage ist bei notariellem Vertragsabschluss verdient und fällig. Grunderwerbsteuer, Notar- und Gerichtskosten trägt der Käufer. Sollte das von uns nachgewiesene Objekt bereits bekannt sein, teilen Sie uns dies bitte unverzüglich mit. Die Weitergabe dieses Exposés an Dritte ohne unsere Zustimmung löst gegebenenfalls Courtage- bzw. Schadensersatzansprüche aus.
Kleingedrucktes:
Alle Angaben basieren ausschließlich auf Informationen, die uns von unserem Auftraggeber übermittelt wurden. Wir übernehmen keine Gewähr für die Vollständigkeit, Richtigkeit und Aktualität dieser Angaben. Zwischenverkauf bleibt vorbehalten.
Lage
Das zum Verkauf stehende Einfamilienhaus befindet sich in einem ruhigen Wohngebiet im beliebten Stadtteil Wuppertal-Vohwinkel. Die Lage überzeugt durch eine harmonische Verbindung aus angenehmer Zurückgezogenheit und zentraler Erreichbarkeit – ideal für Familien, Paare oder ein Mehrgenerationenkonzept.
Das Wohnumfeld ist geprägt von gepflegten Ein- und Zweifamilienhäusern mit grünen Vorgärten, einer gewachsenen Nachbarschaft und einer spürbar hohen Wohnqualität. Trotz der ruhigen Lage sind alle wichtigen Einrichtungen des täglichen Bedarfs schnell erreichbar: Supermärkte, Bäckereien, Apotheken, Arztpraxen sowie Kindergärten und Schulen befinden sich in der direkten Umgebung oder sind bequem mit dem Fahrrad oder zu Fuß erreichbar.
Auch der öffentliche Personennahverkehr ist hervorragend ausgebaut. Buslinien sowie der nahegelegene Bahnhof Wuppertal-Vohwinkel bieten schnelle Verbindungen in die Wuppertaler Innenstadt sowie in die umliegenden Städte Düsseldorf, Solingen, Haan oder Mettmann. Berufspendler profitieren zusätzlich von der Nähe zur A46, die in etwa 5 bis 10 Minuten erreichbar ist und eine direkte Anbindung an das überregionale Verkehrsnetz bietet.
Für Naturfreunde bietet die Umgebung zahlreiche Möglichkeiten zur Erholung: Der nahegelegene Staatsforst Burgholz mit seinen ausgedehnten Wander- und Radwegen sowie das Landschaftsschutzgebiet Osterholz laden zu Spaziergängen, sportlichen Aktivitäten und entspannten Ausflügen ins Grüne ein. Auch der beliebte Kletterwald, der Zoo oder die Wuppertaler Schwebebahn sind in kurzer Zeit erreichbar und sorgen für abwechslungsreiche Freizeitgestaltung.
Diese Wohnlage in Vohwinkel vereint das Beste aus zwei Welten: eine ruhige, familienfreundliche Umgebung mit viel Grün – und gleichzeitig die Nähe zur städtischen Infrastruktur und optimalen Verkehrsanbindungen. Ein idealer Ort für alle, die entspannt wohnen und dennoch zentral leben möchten.
42327 Wuppertal, Deutschland (auf Google Maps ansehen)

















