Referenzen.
Startseite > Verkauf > Referenzen
Provisionsfrei! Château Venauen modernes Wohnen im Denkmal.
51503 Rösrath, Reihenendhaus zum Kauf
Referenz, verkauft
Dieses Objekt wurde bereits erfolgreich vermittelt.
Objektdaten
-
Objekt ID1725
-
ObjekttypenHaus, Reihenendhaus
-
Adresse51503 Rösrath
-
Etagen im Haus3
-
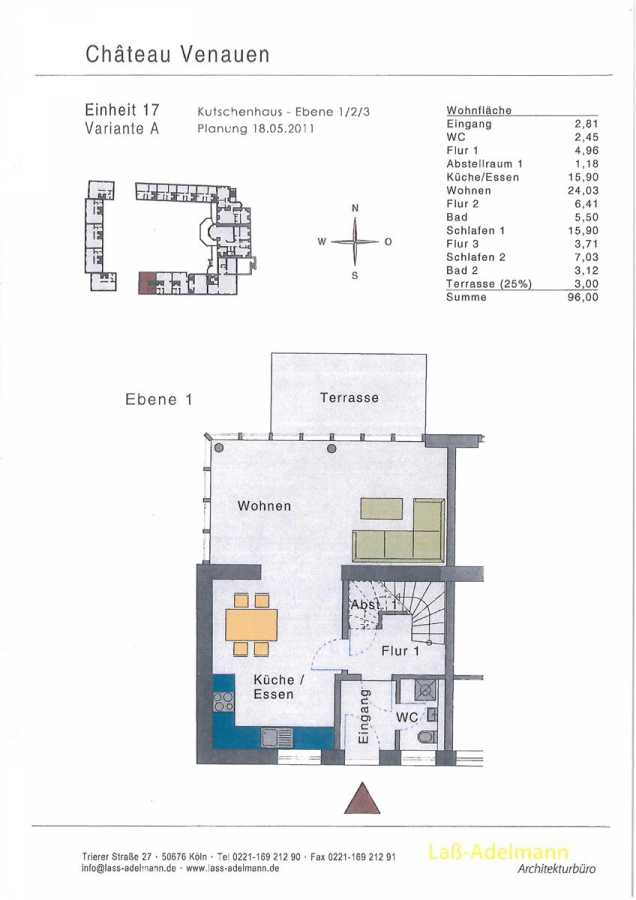
Wohnfläche ca.96 m²
-
Grundstück ca.100 m²
-
Zimmer3
-
Schlafzimmer2
-
Badezimmer2
-
Separate WC1
-
Terrassen1
-
HeizungsartZentralheizung
-
Wesentlicher EnergieträgerGas
-
Baujahr2012
-
Zustandgepflegt
-
Statusvermietet
-
Verfügbar abnach Vereinbarung
-
Stellplatz:7.000 EUR (Anzahl: 1)
-
Garage:22.000 EUR (Anzahl: 1)
Ausstattung / Merkmale
- ✓ Denkmalgeschützt
- ✓ denkmalschutz
- ✓ Kabel-/Sat-TV
- ✓ Kein Keller
- ✓ Separates WC
- ✓ Terrasse
Objektbeschreibung
Beschreibung
Château Venauen zusammen mit Schloss Eulenbroich 1672 gegründet, das ehemalige Kloster nebst Klostermühle und die Pfarrkirche St. Nikolaus von Tolentino bilden ein bedeutendes historisches Ensemble in zentraler Lage, im kulturellen Mittelpunkt von Rösrath. Nach bewegter Geschichte, zuletzt als Internat und Gymnasium der belgischen Streitkräfte – in dieser Zeit auch mehrfach vom belgischen Königshaus besucht- stand Château Venauen von 2006 bis 2011 leer und diente dabei als imposante Kulisse für mehrere "Tatorte" und Spielfilme, um seither als kernsaniertes Denkmal mit modernen, hochwertigen Wohnungen in historischer Hülle aufzuerstehen.
Daraus wird hier angeboten: Eine Maisonettewohnung mit eigenem Eingang, wie ein Reihenhaus, im Kutschenhaus mit Terrasse/Garten, ca.96 m² Wohnfläche, Keller im Haupthaus und große Einzelgarage mit elektrischem Sektionaltor auf dem Garagenhof, sowie ein sep. oberirdischer PKW-Stellplatz.
Die Aufteilung: EG = Eingang mit Flur, Abstellraum und Treppe, WC mit Fenster und Waschmaschinen-/Trocknerstellplatz, Wohn-/Essraum mit offener Küche und Terrasse/Garten. OG = Schlafraum, großes Wannenbad mit Fenster, Flur mit Treppe. Die Fenster im OG haben Schlagläden. DG = Schlaf-/Arbeitsraum, Duschbad mit Fenster, Flur mit Treppe.
Ausstattung
Eine Maisonettewohnung im Stil eines Reihenendhauses im Kutschenhaus mit Terrasse/Garten, ca. 96 m² Wohnfläche, Keller im Hauptschloss, große Einzelgarage mit elektrischem Sektionaltor, ein oberirdischer PKW-Stellplatz.
- EG = Eingang mit Flur, Abstellraum und Treppe, WC mit Fenster und Waschmaschinen-/Trocknerstellplatz, Wohn-/Essraum mit offener Küche, und Terrasse/Garten. Die Geschosshöhe beträgt im EG ca. 3 Meter.
- OG = Schlafraum, großes Wannenbad mit Fenster, Flur mit Treppe. Die Fenster im OG haben Schlagläden.
- DG = Schlaf-/Arbeitsraum, Duschbad mit Fenster, Flur mit Treppe.
- Fußböden aus Industrieparkett in Eiche (Fußbodenheizung),
- Putzanstrich an den Wänden,
- Holzfenster und Türen mit Edelstahlhandgriffen,
- hochwertige Keramik (Keramag) und Armaturen (Hansgrohe) für Bäder und WC, hochwertige Fliesen im Nassbereich und eingelassene Spiegel über den Waschbecken, sowie Down Lights in den Bädern.
- In allen Räumen gibt es ausreichend Schalter, Steckdosen und Kommunikationsanschlüsse.
Sonstiges
Kaufpreis Wohnung: .... 455.000,00 €
Kaufpreis Freiplatz: ........... 7.000,00 €
Kaufpreis Garage: .......... 22.000,00 €
Kaufpreis gesamt: ........ 484.000,00 €
Die Wohnung ist vermietet. Zur Zeit beträgt die Nettomiete für Wohnung, Garage und Stellplatz 1.156,- € pro Monat. Eine Mieterhöhung ist im Rahmen der gesetzlichen Bestimmungen möglich.
Film- und Fotoaufnahmen innerhalb der Immobilie sind nur mit Genehmigung des Eigentümers oder Maklers gestattet. Bitte sprechen Sie uns bei der Besichtigung an.
Lage
Rösrath, am grünen Rand des Speckgürtels von Köln, zwischen Hauptstraße und den grünen Auen der Sülz mit dem Landschaftspark Venauen. Wenige Minuten fußläufig entfernt befinden sich ein modernes Einkaufszentrum, der renovierte Bahnhof und das Ortszentrum mit vielfältigem Einzelhandel, Ärzten, Apotheken, Schulen, Kindergärten, Restaurants bis hin zur Spitzengastronomie (französisches Restaurant "Klostermühle", Ableger vom "Le Moissonnier" in Köln), etc.
"Darf´s etwas mehr sein?" - Dann erreichen Sie Köln auch schnell zum Shoppen über die A 3 / A4, bzw. mit dem ÖPNV (die reine Fahrzeit Bahnhof Rösrath/Hbf. Köln beträgt nur 20 Minuten).
51503 Rösrath, Deutschland (auf Google Maps ansehen)























