Aktuelle Immobilien.

Startseite > Kauf > Immobilienangebot

Split-Level-Reihenendhaus mit Garten, Studio und Entwicklungspotenzial

40595 Düsseldorf, Reihenendhaus zum Kauf

Kontaktdaten

Michael Sorgnit, KUBIKOM Immobilien GmbH

Objektdaten

  • Objekt ID
    MS2417
  • Objekttypen
    Haus, Reihenendhaus
  • Adresse
    40595 Düsseldorf
  • Wohnfläche ca.
    147,13 m²
  • Grund­stück ca.
    160 m²
  • Zimmer
    5
  • Schlafzimmer
    3
  • Badezimmer
    1
  • Separate WC
    1
  • Balkone
    1
  • Terrassen
    1
  • Wesentlicher Energieträger
    Gas
  • Baujahr
    1982
  • Verfügbar ab
    nach Vereinbarung
  • Stellplatz:
    2 Stellplätze
  • Käufer­provision
    3,57% inkl. MwSt.
  • Kaufpreis
    595.000 EUR

Ausstattung / Merkmale

  • ✓ Balkon
  • ✓ Keller
  • ✓ Separates WC
  • ✓ Stellplatz
  • ✓ Terrasse

Energieausweis

  • Energieausweistyp
    Verbrauchs­ausweis
  • Gültig bis
    12.02.2036
  • Gebäudeart
    Wohngebäude
  • Baujahr
    1982
  • Primärenergieträger
    Erdgas schwer
  • Endenergie­verbrauch
    109,80 kWh/(m²·a)
  • Energie­effizienz­klasse
    D
0 25 50 75 100 125 150 175 200 225 250+ H G F E D C B A A+ H G F E D C B A A+ Endenergieverbrauch 109,80 kWh/(m²·a)

Objekt­beschreibung

Beschreibung

Dieses großzügig konzipierte Reihenendhaus aus dem Jahr 1982 überzeugt durch seine architektonisch interessante Split-Level-Bauweise und ein vielseitiges Raumangebot mit Entwicklungspotenzial. Auf einer Wohnfläche von ca. 147 m² entsteht ein Wohnumfeld, das durch seine offene Struktur, die versetzten Ebenen und die gute Belichtung ein angenehmes und lebendiges Wohngefühl vermittelt.

Die Aufteilung des Hauses folgt einem klar strukturierten, zugleich spannenden Konzept über mehrere Ebenen. Im Erdgeschoss bildet der Wohnbereich mit direktem Zugang zur Terrasse das Herzstück des Hauses. Angrenzend befinden sich der Ess- und Küchenbereich, die gemeinsam einen funktionalen Mittelpunkt für das tägliche Leben schaffen. Ergänzt wird diese Ebene durch eine Diele sowie ein separates Gäste-WC.

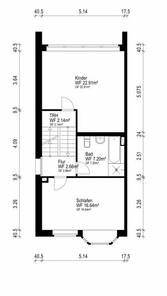
Im Obergeschoss befinden sich die klassischen Rückzugsräume: ein großzügiges Schlafzimmer, ein weiteres großes Zimmer – ideal als Kinderzimmer – sowie das Badezimmer mit Badewanne und Dusche. Das Bad entspricht jedoch nicht mehr dem heutigen Zeitgeschmack und ist entsprechend modernisierungsbedürftig.

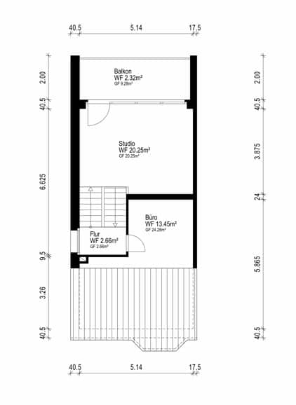
Das Dachgeschoss bietet mit einem offenen Studio und zusätzlichem Raum, der sich beispielsweise als Büro nutzen lässt, eine besonders interessante Erweiterung der Wohnfläche. Die erhöhte Deckenhöhe im Studio sorgt für ein angenehmes Raumgefühl und verleiht dieser Ebene eine besondere Qualität. Ein kleiner Balkon ergänzt diesen Bereich sinnvoll.

Die Split-Level-Bauweise sorgt insgesamt für eine klare, zugleich aber fließende Gliederung der Wohnbereiche. Unterschiedliche Ebenen schaffen eine natürliche Trennung von Wohnen, Schlafen und Arbeiten, ohne die Offenheit des Hauses zu verlieren.

Die Außenbereiche bieten eine angenehme Ergänzung zum Innenraum. Terrasse und Balkon schaffen zusätzliche Aufenthaltsmöglichkeiten im Freien. Der Garten ist eher kompakt gehalten, bietet jedoch ausreichend Raum für Erholung im kleinen Rahmen oder eine pflegeleichte Gestaltung. Der direkte Zugang vom Keller in den Garten erweist sich dabei als praktisches Detail im Alltag.

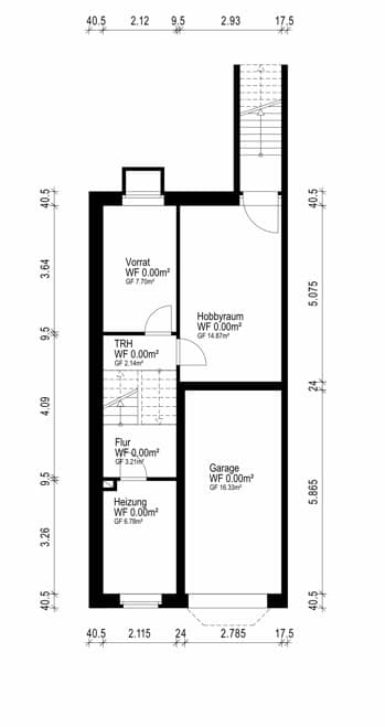
Das Kellergeschoss ist funktional gestaltet und umfasst neben klassischen Abstell- und Vorratsräumen auch einen Hobbyraum, den Heizungsraum sowie einen direkten Zugang zum Garten.

Beheizt wird die Immobilie über eine Gas-Zentralheizung aus dem Jahr 2001. Eine Garage sowie ein davorliegender Stellplatz sorgen für komfortable Parkmöglichkeiten direkt am Haus.

Insgesamt präsentiert sich dieses Reihenendhaus in einem soliden Zustand mit spürbarem Entwicklungspotenzial. Es richtet sich an Käufer, die eine besondere Raumstruktur zu schätzen wissen und die Möglichkeit nutzen möchten, die Immobilie nach eigenen Vorstellungen weiterzuentwickeln.

Lassen Sie sich von dieser attraktiven Immobilie im Rahmen einer persönlichen Besichtigung überzeugen. Hierfür steht Ihnen Herr Michael Sorgnit jederzeit gerne zur Verfügung.

Ausstattung

  • Reihenendhaus in Split-Level-Bauweise
  • Baujahr 1982
  • Wohnfläche ca. 147 m²
  • Vielseitige, versetzte Ebenen mit offenem Raumkonzept
  • Erdgeschoss mit Wohnbereich und Zugang zur Terrasse
  • Separater Ess- und Küchenbereich
  • Gäste-WC im Erdgeschoss
  • Obergeschoss mit Schlafzimmer und großem Kinderzimmer
  • Badezimmer mit Dusche und Badewanne (modernisierungsbedürftig)
  • Dachgeschoss mit Studio (hohe Decken) und zusätzlichem Raum (z. B. Büro)
  • Balkon im Dachgeschoss
  • Kompakter Garten mit Terrasse
  • Balkon als zusätzliche Außenfläche
  • Direkter Zugang vom Keller in den Garten
  • Voll unterkellert
  • Hobbyraum, Vorratsräume und Heizungsraum vorhanden
  • Direkter Zugang aus dem Keller in den Garten
  • Gas-Zentralheizung (Baujahr 2001)
  • Garage sowie Stellplatz vor dem Haus
  • Solider Zustand mit Modernisierungsbedarf
  • Gute Grundlage für individuelle Gestaltungsmöglichkeiten

Sonstiges

Der Kaufpreis für die Immobilie beträgt 595.000,00 € zuzüglich der vom Käufer zu zahlenden Provision in Höhe von 3,57 % inkl. gesetzl. Mehrwertsteuer. Wir sind vom Eigentümer allein beauftragt, Verhandlungen mit Interessenten zu führen.
Der Makler-Vertrag mit uns kommt durch schriftliche Vereinbarung oder durch die Inanspruchnahme unserer Maklertätigkeit auf der Basis des Objekt-Exposés und seiner Bedingungen zustande. Die Käufercourtage ist bei notariellem Vertragsabschluss verdient und fällig. Grunderwerbsteuer, Notar- und Gerichtskosten trägt der Käufer. Sollte das von uns nachgewiesene Objekt bereits bekannt sein, teilen Sie uns dies bitte unverzüglich mit. Die Weitergabe dieses Exposés an Dritte ohne unsere Zustimmung löst gegebenenfalls Courtage- bzw. Schadensersatzansprüche aus.
Kleingedrucktes:
Alle Angaben basieren ausschließlich auf Informationen, die uns von unserem Auftraggeber übermittelt wurden. Wir übernehmen keine Gewähr für die Vollständigkeit, Richtigkeit und Aktualität dieser Angaben. Zwischenverkauf bleibt vorbehalten.

Lage

Die Immobilie liegt in einem gewachsenen, angenehm ruhigen Wohnumfeld im Düsseldorfer Süden (Hellerhof) – ideal für alle, die entspannt wohnen und im Alltag dennoch kurze Wege schätzen. Hier treffen eine familienfreundliche Nachbarschaft, viel Grün und eine sehr gute Infrastruktur aufeinander.

Nahversorgung – alles schnell erledigt
Für den täglichen Bedarf ist bestens gesorgt: Supermärkte und weitere Einkaufsmöglichkeiten befinden sich in direkter Nähe. Ob der schnelle Einkauf zwischendurch oder der Wocheneinkauf – vieles lässt sich bequem zu Fuß erledigen. Auch Services wie Paket- und Postannahme sind im Umfeld vorhanden.

Freizeit, Sport und Erholung
Wer gern draußen ist, profitiert von nahegelegenen Grünflächen und Parks – perfekt für Spaziergänge, Joggingrunden oder eine kleine Auszeit nach Feierabend. Sportangebote sind ebenfalls gut erreichbar, sodass sich Bewegung unkompliziert in den Alltag integrieren lässt.

Gesundheit und Versorgung
Auch medizinisch ist die Lage komfortabel: Arztpraxen befinden sich in der Umgebung, und ein Krankenhaus ist in kurzer Distanz erreichbar – ein Pluspunkt für ein rundum sicheres Wohngefühl.

Top angebunden – mit Bahn, Bus und Auto
Die Anbindung an den öffentlichen Nahverkehr ist hervorragend: Eine S-Bahn-Station sowie mehrere Bushaltestellen liegen nur wenige Gehminuten entfernt und bringen Sie schnell in die Düsseldorfer Innenstadt oder in Richtung Köln.

Auch Autofahrer profitieren von der guten Erreichbarkeit der Autobahnanschlüsse. Damit sind sowohl das Stadtzentrum als auch die umliegenden Regionen bequem erreichbar.

Insgesamt bietet diese Lage eine gelungene Kombination aus ruhigem Wohnen, guter Erreichbarkeit und einer Infrastruktur, die den Alltag angenehm leicht macht.

Sie sehen gerade einen Platzhalterinhalt von Google Maps. Um auf den eigentlichen Inhalt zuzugreifen, klicken Sie auf die Schaltfläche unten. Bitte beachten Sie, dass dabei Daten an Drittanbieter weitergegeben werden.

Mehr Informationen

Direktanfrage

* Pflichtangaben
 SSL-verschlüsselt
Immobiliendaten-Import und Darstellung für WordPress: WP-ImmoMakler