Referenzen.
Startseite > Verkauf > Referenzen
Remscheid. Zentrale Lage. Renditestarke Kapitalanlage.
42853 Remscheid, Mehrfamilienhaus zum Kauf
Referenz
Dieses Objekt wurde bereits erfolgreich vermittelt.
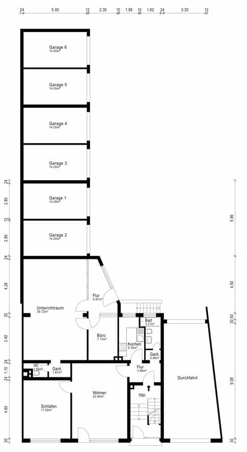
Objektdaten
-
Objekt IDSTS 1406
-
ObjekttypenHaus, Mehrfamilienhaus
-
Adresse42853 Remscheid
-
Wohnfläche ca.297 m²
-
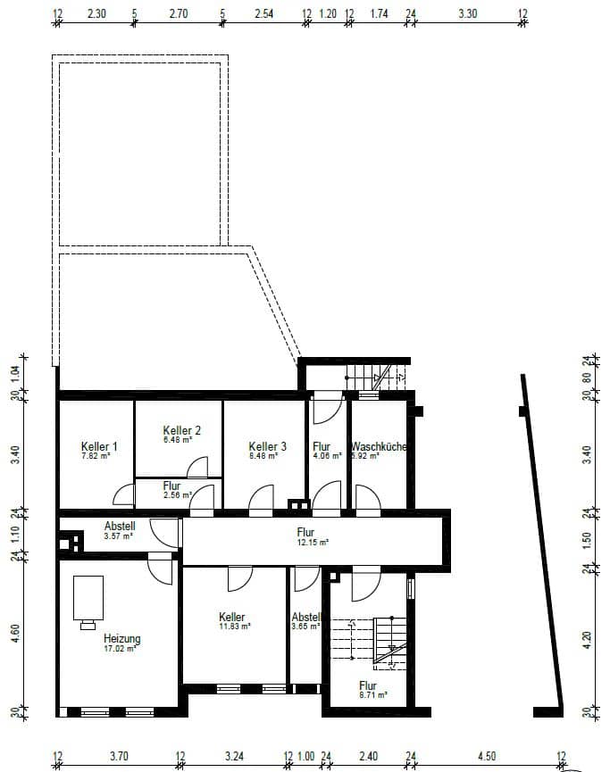
Grundstück ca.503 m²
-
Vermietbare Fläche ca.297 m²
-
Zimmer13
-
Schlafzimmer0,0
-
Badezimmer0,0
-
Wohneinheiten5
-
Balkone4
-
Terrassen1
-
Baujahr1959
-
Statusvermietet
-
Verfügbar absofort
-
Garage:6 Stellplätze
Ausstattung / Merkmale
- ✓ Balkon
- ✓ Gewerblich nutzbar
- ✓ Keller
- ✓ Terrasse
Objektbeschreibung
Beschreibung
Dieses attraktive Mehrfamilien- und Geschäftshaus wurde etwa im Jahr 1959 auf einem 503 m² großen Grundstück erbaut und verfügt über eine Gesamtmietfläche von rund 297 m², die sich auf drei Vollgeschosse nebst Dachgeschoss verteilt. Die über Jahre hinweg meist vollvermietete Anlageimmobilie ist unterkellert und besteht aus fünf Wohn- und einer Gewerbeeinheit mit lebensnahen Grundrissen und solider Mieterstruktur. Die Zwei- und Vier-Zimmerwohnungen verfügen über Wohnflächen von ca. 58 m² bis ca. 86 m²; das Ladenlokal über eine Nutzfläche von ca. 85 m². Das 1. Obergeschoss rechts ist derzeit leer stehend, bereits entkernt und muss vor der Neuvermietung renoviert werden. Die Bäder sind überwiegend gepflegt und großteils in moderner Anmutung. Die Gewerbeeinheit, die zuletzt als Fahrschule betrieben wurde, ist derzeit ebenfalls nicht vermietet. Hier ist eine Umnutzung in eine Wohnung denkbar.
Im Keller befinden sich die Hausanschlüsse, die Waschküche sowie die Mieterkeller. Die Beheizung der Mieteinheiten erfolgt zentral mittels einer Ölheizung aus dem Jahr 1986; die Warmwasseraufbereitung über Durchlauferhitzer. Die gesamte Jahresnettokaltmiete beträgt 15.927,96€. 2015 wurde der Eingangsbereich und die Fenster im Treppenhaus erneuert. Nach Umsetzung einiger Investitionen sind aus unserer Sicht die Ist-Mieten leicht steigerungsfähig. Die genauen Mieteinnahmen entnehmen Sie bitte der detaillierten Aufstellung, die Sie auf Anfrage erhalten.
Lassen Sie sich von dieser attraktiven Anlageimmobilie im Rahmen einer persönlichen Besichtigung überzeugen. Bitte richten Sie hierzu ihre Anfrage – im Anschluss an eine erste erfolgte Außenbesichtigung – mit separater E-Mail an Herrn Stefan Siepmann.
Sonstiges
Der Kaufpreis für die Immobilie beträgt 350.000,00€ zuzüglich der vom Käufer zu zahlenden Provision in Höhe von 3,57 % inkl. gesetzl. Mehrwertsteuer. Wir sind vom Eigentümer allein beauftragt, Verhandlungen mit Interessenten zu führen.
Der Makler-Vertrag mit uns kommt durch schriftliche Vereinbarung oder durch die Inanspruchnahme unserer Maklertätigkeit auf der Basis des Objekt-Exposés und seiner Bedingungen zustande. Die Käufercourtage ist bei notariellem Vertragsabschluss verdient und fällig. Grunderwerbsteuer, Notar- und Gerichtskosten trägt der Käufer. Sollte das von uns nachgewiesene Objekt bereits bekannt sein, teilen Sie uns dies bitte unverzüglich mit. Die Weitergabe dieses Exposés an Dritte ohne unsere Zustimmung löst gegebenenfalls Courtage- bzw. Schadensersatzansprüche aus.
Kleingedrucktes:
Alle Angaben basieren ausschließlich auf Informationen, die uns von unserem Auftraggeber übermittelt wurden. Wir übernehmen keine Gewähr für die Vollständigkeit, Richtigkeit und Aktualität dieser Angaben. Zwischenverkauf bleibt vorbehalten.
Lage
Das zu erwerbende Mehrfamilienhaus befindet sich unterhalb eines Wohngebietes mit überwiegender Mehrfamilienhausbebauung in Remscheid-Mitte in unmittelbarer Nähe der B229 und des Autobahnanschlusses „Remscheid" an der A1.
Ein Anschluss an den öffentlichen Personennahverkehr ist ebenfalls gegeben; der Bahnhof “Remscheid” liegt nur wenige Minuten entfernt und bietet Verbindungsmöglichkeiten bis nach Solingen und Wuppertal. Wuppertal ist somit in etwa 25 Minuten und Düsseldorf in etwa 45 Minuten zu erreichen.
In unmittelbarer Nähe befinden sich verschiedene Supermärkte wie Edeka, Rewe und Lidl, die eine umfassende Versorgung mit Lebensmitteln und Haushaltswaren bieten. Darüber hinaus gibt es zahlreiche kleine Geschäfte und Fachhändler mit einem vielfältigen Angebot. Das Allee-Center Remscheid, ein großes Einkaufszentrum, ist nur wenige Minuten entfernt. Hier finden sich zahlreiche Modegeschäfte, Elektronikhändler, Buchläden und weitere Einzelhändler.
Der Stadtpark Remscheid bietet eine große Grünfläche zur Erholung und Freizeitgestaltung. Hier gibt es Räume, Spielplätze und Bereiche zum Entspannen. Weitere größere Parks und Grünflächen sind ebenfalls in der Nähe. In der Umgebung befinden sich verschiedene Sporteinrichtungen, darunter Fitnessstudios, Sporthallen und Freizeitanlagen. Der Remscheider Turnverein bietet zahlreiche Sportkurse und Aktivitäten.
Die dargestellte Position der Immobilie ist nur eine ungefähre Angabe.


































