Referenzen.
Startseite > Verkauf > Referenzen
Unterburg. Perfektes Zuhause auf ca. 124m². Neue Heizungs- und Photovoltaik-Anlage.
42659 Solingen, Einfamilienhaus zum Kauf
Referenz
Dieses Objekt wurde bereits erfolgreich vermittelt.
Objektdaten
-
Objekt IDSTS 2210
-
ObjekttypenEinfamilienhaus, Haus
-
Adresse42659 Solingen
-
Wohnfläche ca.124,88 m²
-
Grundstück ca.424 m²
-
Zimmer5
-
Schlafzimmer3
-
Badezimmer2
-
Separate WC2
-
Wohneinheiten1
-
Balkone1
-
Terrassen1
-
Wesentliche EnergieträgerGas, Solar
-
Baujahr1978
-
Verfügbar absofort
-
Stellplatz:3 Stellplätze
Ausstattung / Merkmale
- ✓ Balkon
- ✓ Keller
- ✓ Separates WC
- ✓ Stellplatz
- ✓ Terrasse
- ✓ Wintergarten
Objektbeschreibung
Beschreibung
Dieses äußerst gepflegte Reihenmittelhaus wurde im Jahr 1969 auf einem ca. 424 m² großen Grundstück erbaut und bietet mit drei Etagen und großzügigen ca. 124 m² Wohnfläche, die sich auf fünf gut dimensionierte Zimmer verteilt, sämtliche Freiheiten, die eine junge Familie sucht. Ein besonderes Highlight: Die neue Heizungsanlage mit optionaler Wärmepumpen-Anbindung und einer Photovoltaikanlage (Baujahr 2025) zur Eigenstromnutzung macht dieses Haus auch energetisch fit für die Zukunft.
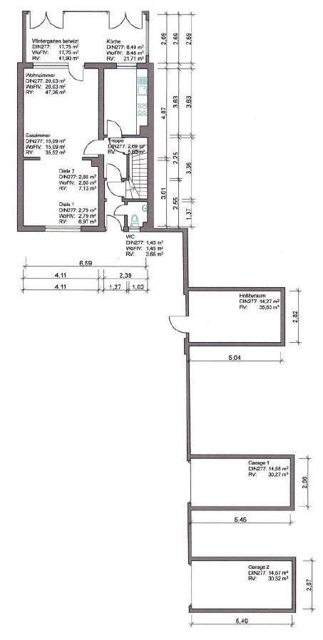
Über den durch ein solides Vordach geschützten Eingang betreten Sie die freundliche und tagesbelichtete Diele. Hier befindet sich auch gleich das nützliche Gäste-WC. Das Erdgeschoss verfügt auf ca. 68 m² über ein geräumiges Wohn-/Esszimmer mit Zugang zum Wintergarten und zur Terrasse sowie über eine gemütliche Küche mit Einbauküche. Der pflegeleichte Garten bietet trotz der geringen Größe verschiedene Verweilzonen.
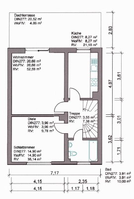
Im Obergeschoss verteilen sich ca. 56 m² Wohnfläche auf zwei helle Zimmer, eine weitere Küche ( der Zimmer), eine wohnliche Diele sowie ein Badezimmer mit Badewanne. Der einladende Studiobereich im Dachgeschoss des Hauses bietet auf ca. 53 m² zwei weitere wohnlich ausgebaute Räume, zusätzliche Nutzungs- und Rückzugsmöglichkeiten bei angenehmer Belichtung. Ein weiteres WC befindet sich hier. Diese Flächen sind in der Wohnfläche nicht enthalten.
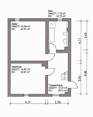
Im Kellergeschoss des Hauses erwartet Sie neben den üblichen Hausanschluss- und Nutzräumen auch ein weiterer Raum für die Lagerung sämtlicher temporär genutzten Gegenstände, sowie ein Badezimmer mit Badewanne und Dusche.
Das Warmwasser der Immobilie wird ebenfalls die neu verbaute Heizung generiert. Ein Energieausweis wird zurzeit noch neue erstellt und liegt bei Besichtigung vor. Bitte sprechen Sie uns hier gerne an. Die Immobilie verfügt über doppelt verglaste Kunststofffenster. Die Böden sind mit Fliesen und Laminat versehen. Alle Räume befinden sich in einem gepflegten, aber in die Jahre gekommenen Zustand.
Die beiden zum Haus gehörenden Garagen befinden sich unmittelbar vor der Immobilie.
Diese Immobilie ist Bestandteil einer Wohnungseigentümergemeinschaft (im Aufteilungsplan mit der Nr. 1 bezeichnet) mit der Hausnummer 62a. Hier besteht grundsätzlich die Option, die benachbarte Immobilie ggf. mit zu erwerben. Sprechen Sie uns hierzu gerne vor Ort an.
Lassen Sie sich vom Charme und den Möglichkeiten dieser attraktiven Immobilie ebenfalls im Rahmen einer persönlichen Besichtigung überzeugen. Hierfür steht Ihnen Herr Stefan Siepmann jederzeit gerne zur Verfügung.
Sonstiges
Der Kaufpreis für die Immobilie beträgt 349.000,00€ zuzüglich der vom Käufer zu zahlenden Provision in Höhe von 3,57 % inkl. gesetzl. Mehrwertsteuer. Wir sind vom Eigentümer allein beauftragt, Verhandlungen mit Interessenten zu führen.
Der Makler-Vertrag mit uns kommt durch schriftliche Vereinbarung oder durch die Inanspruchnahme unserer Maklertätigkeit auf der Basis des Objekt-Exposés und seiner Bedingungen zustande. Die Käufercourtage ist bei notariellem Vertragsabschluss verdient und fällig. Grunderwerbsteuer, Notar- und Gerichtskosten trägt der Käufer. Sollte das von uns nachgewiesene Objekt bereits bekannt sein, teilen Sie uns dies bitte unverzüglich mit. Die Weitergabe dieses Exposés an Dritte ohne unsere Zustimmung löst gegebenenfalls Courtage- bzw. Schadensersatzansprüche aus.
Kleingedrucktes:
Alle Angaben basieren ausschließlich auf Informationen, die uns von unserem Auftraggeber übermittelt wurden. Wir übernehmen keine Gewähr für die Vollständigkeit, Richtigkeit und Aktualität dieser Angaben. Zwischenverkauf bleibt vorbehalten.
Lage
Zu Solingen gehörend, stellt der Stadtteil Burg aufgrund seiner exponierten Lage und des weithin bekannten Schlosses ein Kleinod im Bergischen Land dar.
Die Lage zwischen den Städten Solingen und Remscheid erlaubte es insbesondere dem Ortsteil Unterburg, seinen eigenständigen und beschaulichen Charakter zu erhalten.
Die Anbindung an die beiden Städte Solingen und Remscheid ist auch mit dem ÖPNV gut gewährleistet.
Nur wenige Schritte entfernt sind Sie in dem beliebten Naturschutzgebiet um die Wupperberge - hier können Sie die Natur in vollen Zügen genießen und joggen, spazieren gehen, wandern oder radfahren. Über einen Wanderweg erreichen Sie zudem den Müngstener Brückenpark, welcher zu verschiedenen Freizeitaktivitäten einlädt.
Die Autobahn A1 ist in einigen Fahrminuten zügig zu erreichen.
42659 Solingen, Deutschland (auf Google Maps ansehen)































