Aktuelle Immobilien.
Startseite > Kauf > Immobilienangebot
Aufderhöhe: Vielseitiges Immobilienensemble mit Potenzial.
42699 Solingen, Einfamilienhaus zum Kauf
Kontaktdaten
-
NameHerr Michael Sorgnit
-
FirmaKUBIKOM Immobilien GmbH
-
AnschriftHeiligenstr. 6
40721 Hilden -
E-Mail
-
E-Mail
-
Telefon
-
Telefon
Objektdaten
-
Objekt IDMS 2521
-
ObjekttypenEinfamilienhaus, Haus
-
Adresse42699 Solingen
-
Wohnfläche ca.246,63 m²
-
Grundstück ca.1.869 m²
-
Nutzfläche ca.119,07 m²
-
Gesamtfläche ca.365,70 m²
-
Vermietbare Fläche ca.365,70 m²
-
Zimmer10
-
Schlafzimmer0,0
-
Badezimmer4
-
Separate WC2
-
Wohneinheiten3
-
Balkone2
-
Terrassen1
-
Baujahr1900
-
Statusvermietet
-
Verfügbar abnach Vereinbarung
-
Stellplatz:4 Stellplätze
-
Garage:3 Stellplätze
-
Käuferprovision3,57& inkl. MwSt.
-
Kaufpreis745.000 EUR
Ausstattung / Merkmale
- ✓ Balkon
- ✓ Kein Keller
- ✓ Separates WC
- ✓ Terrasse
Energieausweis
-
EnergieausweistypBedarfsausweis
-
Gültig bis15.12.2035
-
GebäudeartWohngebäude
-
Baujahr1900
-
PrimärenergieträgerGas
-
Endenergiebedarf249,70 kWh/(m²·a)
-
EnergieeffizienzklasseG
Objektbeschreibung
Beschreibung
Dieses einzigartige Häuserensemble im begehrten Stadtteil Ohligs-Aufderhöhe vereint erstklassige Lage, flexible Nutzungsmöglichkeiten und langfristige Wertbeständigkeit. Die Immobilie eignet sich sowohl als Kapitalanlage für Investoren als auch für Eigennutzer und ist ideal für Mehrgenerationenwohnen.
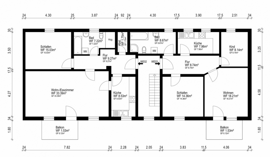
Das Ensemble besteht aus zwei Wohnhauskomplexen mit insgesamt drei Wohnungen. Die Wohnbereiche wurden kontinuierlich zwischen 2005 und 2025 modernisiert und instandgesetzt, sodass ein gepflegter und zeitgemäßer Zustand gewährleistet ist. Ergänzt werden die Wohnflächen durch rund 120 m² Gewerbeflächen, die sich für ein Büro, eine Werkstatt oder Lagerzwecke eignen. Eine großzügige Einfahrt ermöglicht komfortable Anlieferungen und einen reibungslosen Zugang zu den Betriebsbereichen.
Zusätzlich befindet sich ein weiteres Gebäude auf dem Grundstück, das derzeit als Lager und Garage genutzt wird. Dieses bietet Potenzial, zusätzlichen Wohnraum zu schaffen oder alternativ ein attraktives Atelier, einen Hobbyraum oder eine Werkstatt einzurichten – eine flexible Ergänzung zum bestehenden Ensemble.
Die Wohnungen selbst überzeugen durch flexible Gestaltungsmöglichkeiten. Sie sind gleichermaßen attraktiv für Eigennutzer, die Wohnkomfort und zentrale Lage schätzen, sowie für Investoren, die stabile Mieteinnahmen und nachhaltige Wertentwicklung anstreben.
Dieses Häuserensemble bietet somit eine seltene Gelegenheit: gepflegte Wohnflächen, modernisierte Bestände und nutzbare Gewerbe- sowie Nebengebäude eröffnen vielseitige Möglichkeiten. Die Immobilie kombiniert nachhaltige Wertstabilität, attraktives Renditepotenzial und individuellen Gestaltungsspielraum – eine langfristig sichere Kapitalanlage für Investoren und Eigennutzer gleichermaßen.
Ausstattung
Zwei Gebäudekomplexe mit jeweils drei Wohnungen (insgesamt 3 Wohneinheiten)
Zusätzlich zwei separate Gewerbeeinheiten (insgesamt ca. 120 m²)
Wohnfläche gesamt: ca. 246,63 m²
Zimmeranzahl gesamt: 10
Außenbereiche: 2 Balkone, 1 Terrasse
Bauzustand: fortlaufend modernisiert zwischen 2005 und 2025
Nutzungsvielfalt: ideal für Kapitalanleger, Eigennutzer oder Mehrgenerationenwohnen
Gewerbefläche vielseitig nutzbar (z. B. Büro, Werkstatt, Lager)
Großzügige Zufahrt für Anlieferung und Zugang zur Gewerbefläche
Weiteres Nebengebäude (aktuell als Lager/Garage genutzt) mit Potenzial für:
Wohnraumschaffung, Atelier, Werkstatt oder Hobbyfläche
4 Stellplätze im Freien
3 Garagen
Scheune als weiteres Nebengebäude mit Nutzungspotenzial
Gepflegter und zeitgemäßer Zustand
Attraktive Lage im Stadtteil Solingen-Ohligs-Aufderhöhe
Flexible Grundrisse mit Gestaltungsspielraum
Langfristig stabile Mieterträge möglich
Besonders geeignet für Investoren mit Entwicklungsideen oder Familien mit Platzbedarf
Sonstiges
Der Kaufpreis für die Immobilie beträgt 745.000,00€ zuzüglich der vom Käufer zu zahlenden Provision in Höhe von 3,57 % inkl. gesetzl. Mehrwertsteuer. Wir sind vom Eigentümer allein beauftragt, Verhandlungen mit Interessenten zu führen.
Der Makler-Vertrag mit uns kommt durch schriftliche Vereinbarung oder durch die Inanspruchnahme unserer Maklertätigkeit auf der Basis des Objekt-Exposés und seiner Bedingungen zustande. Die Käufercourtage ist bei notariellem Vertragsabschluss verdient und fällig. Grunderwerbsteuer, Notar- und Gerichtskosten trägt der Käufer. Sollte das von uns nachgewiesene Objekt bereits bekannt sein, teilen Sie uns dies bitte unverzüglich mit. Die Weitergabe dieses Exposés an Dritte ohne unsere Zustimmung löst gegebenenfalls Courtage- bzw. Schadensersatzansprüche aus.
Kleingedrucktes:
Alle Angaben basieren ausschließlich auf Informationen, die uns von unserem Auftraggeber übermittelt wurden. Wir übernehmen keine Gewähr für die Vollständigkeit, Richtigkeit und Aktualität dieser Angaben. Zwischenverkauf bleibt vorbehalten.
Lage
Die Immobilie liegt im Solinger Stadtteil Ohligs-Aufderhöhe, einer der gefragtesten Wohnlagen der Stadt. Die Umgebung verbindet eine ruhige, gewachsene Wohnstruktur mit der Nähe zu urbanen Angeboten und bietet damit ideale Voraussetzungen für eine nachhaltige und langfristig attraktive Kapitalanlage.
Die Ohligser Innenstadt ist in etwa 10 Minuten mit dem Auto erreichbar und stellt mit ihrem vielfältigen Angebot an Einzelhandel, Gastronomie, Ärzten und Dienstleistungen das wirtschaftliche Zentrum des Stadtteils dar. Einkaufsmöglichkeiten für den täglichen Bedarf befinden sich teilweise nur 5 Minuten mit dem Auto entfernt, was die Lage insbesondere für Mieter attraktiv macht. Schulen, Kindergärten und medizinische Versorgungseinrichtungen sind ebenfalls in wenigen Minuten zu Fuß oder mit dem Fahrrad erreichbar.
Für Pendler und Berufstätige bietet die Lage eine hervorragende Verkehrsanbindung. Der Bahnhof Solingen-Ohligs mit regionalen und überregionalen Zugverbindungen ist in rund 20 Minuten mit dem Fahrrad oder etwa 10 Minuten mit dem Auto erreichbar. Die Autobahnauffahrten zur A3 und A46 sind nur 6 Minuten entfernt und gewährleisten eine komfortable Anbindung an die umliegenden Städte Düsseldorf, Köln, Wuppertal und Leverkusen, die jeweils in etwa 25 bis 35 Minuten Fahrtzeit liegen.
Trotz der zentralen Lage bietet das Umfeld einen hohen Erholungs- und Freizeitwert. Grünflächen, Spazierwege und kleinere Waldgebiete befinden sich in einem Umkreis von etwa 10 bis 15 zu Fuß und sorgen für eine ausgewogene Balance zwischen Stadtleben und Natur. Diese Kombination steigert nachhaltig die Wohnqualität und unterstützt eine stabile Nachfrage auf dem Mietmarkt.
Ohligs-Aufderhöhe überzeugt insbesondere durch seine sehr gute Vermietbarkeit, eine breit gefächerte Mieterstruktur sowie eine konstant hohe Nachfrage. Die Mischung aus Nähe zur Innenstadt, ausgezeichneter Verkehrsanbindung, naturnahen Erholungsmöglichkeiten und einer etablierten Infrastruktur macht diesen Standort zu einer wertbeständigen und zukunftssicheren Investitionslage.
42699 Solingen, Deutschland (auf Google Maps ansehen)


















