Aktuelle Immobilien.
Startseite > Kauf > Immobilienangebot
Nachhaltig. Zeitlos. Komfortabel – Ihr neues Zuhause im modernen Reihenhausensemble.
42657 Solingen, Einfamilienhaus zum Kauf
Kontaktdaten
-
NameHerr Florian Rossa
-
FirmaKUBIKOM Immobilien GmbH
-
AnschriftKeldersstr. 6
42697 Solingen -
E-Mail
-
E-Mail
-
Telefon
-
Telefon
-
Mobil
Objektdaten
-
Objekt IDFR2363
-
ObjekttypenEinfamilienhaus, Haus
-
Adresse42657 Solingen
-
Wohnfläche ca.115,15 m²
-
Grundstück ca.231 m²
-
Nutzfläche ca.23,13 m²
-
Gesamtfläche ca.138,28 m²
-
Zimmer4
-
Schlafzimmer3
-
Badezimmer1
-
Separate WC1
-
Terrassen1
-
Baujahr2026
-
Verfügbar abnach Vereinbarung
-
Stellplatz:1 Stellplatz
-
Garage:1 Stellplatz
-
Kaufpreis529.500 EUR
Ausstattung / Merkmale
- ✓ Kein Keller
- ✓ Separates WC
- ✓ Terrasse
Objektbeschreibung
Beschreibung
In attraktiver Wohnlage entsteht ein hochwertiges Neubauensemble mit acht Reihenhäusern, das modernes Wohnen mit energieeffizienter Technik und zeitgemäßer Ausstattung vereint. Der Baubeginn der ersten vier Einheiten ist für das Frühjahr 2026 vorgesehen, die Fertigstellung erfolgt in 2026.
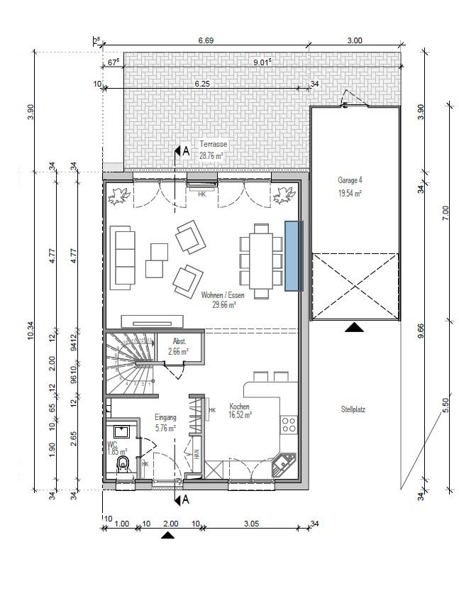
Haus 4 – Reihenendhaus in Süd-westlicher Ausrichtung, Beispiel für zeitgemäße Wohnqualität
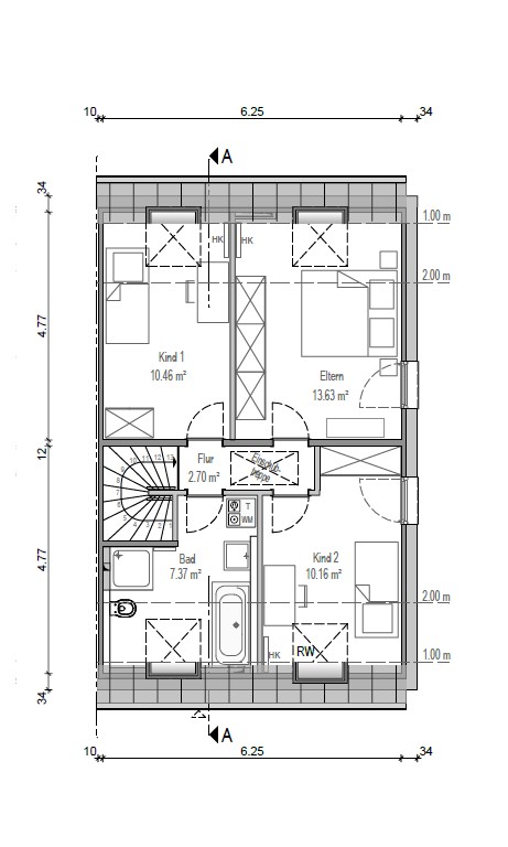
Das Haus bietet auf einem ca. 231 m² großen Grundstück eine Wohnfläche von etwa 115 m², verteilt auf zwei Etagen mit durchdachtem Grundriss und gehobener Ausstattung. Der Eingangsbereich führt in einen großzügigen Wohn-/Essbereich mit offener Küche (ca. 29 m²), ergänzt durch ein Gäste-WC, Abstellraum und Zugang zur Terrasse mit Sichtschutz. Im Dachgeschoss befinden sich drei gut geschnittene Zimmer sowie ein komfortables Tageslichtbad mit Dusche, Badewanne, WC und Waschtisch.
Moderne Bauweise & hochwertige Ausstattung
Die Häuser werden in massiver Stahlbetonfertigteil-Bauweise errichtet und erhalten ein Satteldach mit Betondachsteinen sowie eine wärmegedämmte Fassade. Kunststofffenster mit 3-fach-Verglasung (außen anthrazit, innen weiß) und elektrisch betriebene Rollläden im Erdgeschoss sorgen für optimale Isolierung und Bedienkomfort. Außenliegende Rollos an den Dachfenstern sind ebenfalls Teil der Ausstattung. Die Haustür mit Glasfüllung und Edelstahlgriffen rundet den modernen Auftritt ab.
Die Heiztechnik überzeugt mit einer Vaillant Luft-Wasser-Wärmepumpe. Eine Fußbodenheizung im Erdgeschoss sowie klassische Heizkörper und ein Handtuchheizkörper im Bad im Dachgeschoss gewährleisten ein angenehmes Raumklima.
Komfort trifft Funktionalität
Im Badezimmer und im Gäste-WC werden Boden- und Wandfliesen inklusive Abdichtungsarbeiten ausgeführt. Die Innentreppe besteht aus einer Stahlharfenkonstruktion mit Buchestufen. Decken und Wände werden tapezierfähig übergeben. Ein umfangreiches Elektroinstallationspaket mit Netzwerkdosen, Außenbeleuchtung, Klingel, Rollladensteuerung und vorbereiteter Garagenzuleitung ist enthalten. Die Rauchwarnmelder werden gemäß Landesbauordnung montiert.
Außenanlagen & Garagenlösung
Die gepflasterte Terrasse, Hauszuwegung und Stellflächen mit sickerfähigem Pflaster, Kiesrandstreifen sowie Heckenpflanzungen (auflagenbedingt) bieten ein gepflegtes Erscheinungsbild. Die separate Stahlbeton-Fertiggarage präsentiert sich mit einem eleganten, anthrazitfarbenen Sektionaltor und einem naturnahen Gründach; ein davor angeordneter Stellplatz gehört ebenfalls dazu. Bitte beachten Sie, dass Garage und Stellplatz nicht im Kaufpreis enthalten sind und mit zusätzlichen 35.000 € berechnet werden. Hausanschlüsse für Wasser, Strom, Telekommunikation sowie Regen- und Schmutzwasser sind Bestandteil der Ausführung. Die Übergabe erfolgt besenrein inklusive Fensterreinigung.
Leistungen durch den Erwerber (nicht im Kaufpreis enthalten):
Tapezier- und Malerarbeiten im Innenbereich (inkl. Silikon-/Acrylfugen), Bodenbeläge in den Wohnräumen (ausgenommen Fliesenbereiche), der Anstrich der Treppenkonstruktion sowie die Montage von Duschabtrennungen sind nicht im Kaufpreis enthalten. Sonderwünsche können – je nach Baufortschritt – individuell realisiert werden. So hat jeder Erwerber die Möglichkeit, sein neues Zuhause ganz nach seinem eigenen Stil und Geschmack zu gestalten.
Dieses Neubauprojekt vereint moderne Bauqualität, nachhaltige Technik und hochwertige Ausstattung in familienfreundlicher Umgebung. Haus 1 steht exemplarisch für ein zukunftsfähiges Wohnkonzept mit klaren Linien und durchdachter Funktionalität. Eine Gelegenheit, sich frühzeitig ein neues Zuhause in einem wertbeständigen Umfeld zu sichern.
Ausstattung
Grundstücksgröße: ca. 231 m²
Wohnfläche: ca. 115 m²
Zimmeranzahl: 4 Zimmer
Etagen: Erdgeschoss + Dachgeschoss
Separates Gäste-WC
Terrasse mit Sichtschutz
Grundriss Haus 4
EG: Diele, Gäste-WC, Küche, Wohn-/Essbereich (ca. 29 m²), Abstellraum, Terrasse
DG: 3 Schlafzimmer, Tageslichtbad mit Dusche, Badewanne und WC
Bauweise & Konstruktion
Massivbauweise mit Stahlbetonfertigteilen
Satteldach mit Betondachsteinen
Fassade mit Wärmedämmverbundsystem
Fenster & Türen
Kunststofffenster mit 3-fach-Verglasung
(außen anthrazit, innen weiß)
Haustür mit Glasfüllung und Edelstahlgriffen
Elektrische Rollläden im EG
Außenliegende Rollos bei Dachfenstern
Heizung & Energie
Vaillant Luft-Wasser-Wärmepumpe
Fußbodenheizung im Erdgeschoss
Heizkörper im Obergeschoss
Handtuchheizkörper im Bad
Sanitär & Innenausstattung
Tageslichtbad mit Dusche, Wanne, WC, Waschtisch
Anschlüsse in Küche und Garten vorhanden
Innentreppe: Stahlharfenkonstruktion mit Buchestufen
Decken & Wände tapezierfähig
Fliesen in Bad & Gäste-WC inkl. Abdichtungsarbeiten
Elektroinstallation
Umfangreiche Installation inkl. Netzwerkdosen
Außenbeleuchtung, Klingel, Rollladensteuerung
Zuleitung für Garage vorbereitet
Rauchmelder gemäß Landesbauordnung
Außenanlagen & Garage
Gepflasterte Terrasse
Sickerfähige Pflasterung (Stellplatz & Zuwegung)
Kiesrandstreifen & Heckenpflanzung
Zusätzliche Kosten:
Garage: Stahlbetonfertiggarage mit Sektionaltor (anthrazit) & Gründach (22.500€)
Stellplatz vor der Garage (12.500€)
Im Kaufpreis enthalten
Alle oben genannten Bauleistungen durch den Bauträger
Besenreine Übergabe inkl. Fensterreinigung
Arbeiten Erwerberseits
Tapezier- & Malerarbeiten (inkl. Fugen)
Bodenbeläge in Wohnräumen (außer Fliesenbereiche)
Anstrich der Treppenkonstruktion
Duschabtrennungen/-vorhänge
Sonderwünsche laut Liste (bis Rohbaufertigstellung möglich)
Sonstiges
Der Kaufpreis für die Immobilie inkl. Garage und Stellplatz beträgt 564.500,00 €, provisionsfrei für den Käufer. Wir sind vom Bauträger allein beauftragt, Verhandlungen mit Interessenten zu führen. Bei Interesse senden wir Ihnen gerne weitere Unterlagen zu, wenn Sie uns Ihre postalische Adresse mitteilen.
Kleingedrucktes:
Alle Angaben basieren ausschließlich auf Informationen, die uns von unserem Auftraggeber übermittelt wurden. Wir übernehmen keine Gewähr für die Vollständigkeit, Richtigkeit und Aktualität dieser Angaben. Zwischenverkauf bleibt vorbehalten.
Lage
In einer der gefragtesten Wohnlagen im Südosten Solingens entsteht dieses hochwertige Neubauprojekt – ideal für Familien und anspruchsvolle Paare, die stilvolles Wohnen in ruhiger Umgebung mit urbaner Nähe und naturnaher Lebensqualität verbinden möchten.
Die Umgebung zeichnet sich durch ein gewachsenes, gepflegtes Wohnviertel mit Einfamilien- und kleineren Mehrfamilienhäusern aus. Ruhig gelegen und dennoch hervorragend angebunden, bietet der Standort eine attraktive Mischung aus Privatsphäre, Nachbarschaftsqualität und Alltagstauglichkeit.
In direkter Umgebung eröffnen sich zahlreiche Freizeit- und Naherholungsmöglichkeiten. Die grünen Täler von Weinsberger Bach und Pilghauser Bach sowie die weitläufigen Wupperberge im Süden der Stadt laden zu Spaziergängen, Joggingrunden oder Fahrradtouren ein. Naturfreunde finden hier Tag für Tag eine kleine Auszeit – ganz ohne weite Wege.
Alle wichtigen Einrichtungen des täglichen Bedarfs – darunter Einkaufsmöglichkeiten, Ärzte, Apotheken, Kindergärten und Schulen – befinden sich im nahen Umfeld und sind schnell erreichbar. Die Solinger Innenstadt mit ihren vielfältigen Geschäften, Cafés und kulturellen Angeboten liegt nur wenige Autominuten entfernt.
Auch Pendler profitieren von der hervorragenden Anbindung: Die Autobahnen A3, A46 und A1 sind in rund 10–15 Minuten zu erreichen und ermöglichen eine schnelle Verbindung in die umliegenden Metropolen Düsseldorf, Köln, Wuppertal, Leverkusen und Langenfeld. Der Bahnhof Solingen-Ohligs bietet zudem eine komfortable Anbindung an den Regional- und Fernverkehr – inklusive ICE-Halt.
Dieses Neubauprojekt vereint somit moderne Architektur, ruhiges Wohnen und eine strategisch durchdachte Lage – perfekt für Menschen, die keine Kompromisse eingehen wollen. Ob als stilvolles Zuhause für die Familie oder als wertbeständige Investition in die eigene Zukunft: Hier entsteht Lebensqualität auf höchstem Niveau.
42657 Solingen, Deutschland (auf Google Maps ansehen)





