Aktuelle Immobilien.

Startseite > Kauf > Immobilienangebot

Großzügiges, außergewöhnliches Einfamilienhaus mit 6 Zimmern, Garten und Potenzial in ruhiger Lage.

42651 Solingen, Einfamilienhaus zum Kauf

Kontaktdaten

Ellen Jaros, KUBIKOM Immobilien GmbH

Objektdaten

  • Objekt ID
    EJ1971
  • Objekttypen
    Einfamilienhaus, Haus
  • Adresse
    42651 Solingen
  • Wohnfläche ca.
    159,99 m²
  • Grund­stück ca.
    560 m²
  • Nutzfläche ca.
    69,69 m²
  • Gesamtfläche ca.
    229,68 m²
  • Zimmer
    6
  • Schlafzimmer
    0,0
  • Badezimmer
    1
  • Separate WC
    2
  • Terrassen
    1
  • Heizungsart
    Zentralheizung
  • Wesentlicher Energieträger
    Gas
  • Baujahr
    1954
  • Verfügbar ab
    sofort
  • Stellplatz:
    3 Stellplätze
  • Garage:
    2 Stellplätze
  • Käufer­provision
    3,57% inkl. Mwst
  • Kaufpreis
    499.000 EUR

Ausstattung / Merkmale

  • ✓ Keller
  • ✓ Separates WC
  • ✓ Terrasse

Energieausweis

  • Energieausweistyp
    Bedarfs­ausweis
  • Gültig bis
    25.02.2036
  • Gebäudeart
    Wohngebäude
  • Baujahr lt. Energieausweis
    1954
  • Primärenergieträger
    Erdgas schwer
  • Endenergie­bedarf
    331,40 kWh/(m²·a)
  • Energie­effizienz­klasse
    H
0 25 50 75 100 125 150 175 200 225 250+ H G F E D C B A A+ H G F E D C B A A+ Endenergiebedarf 331,40 kWh/(m²·a)

Objekt­beschreibung

Beschreibung

Dieses freistehende Einfamilienhaus aus dem Baujahr 1954 bietet auf ca. 159 m² Wohnfläche, verteilt auf sechs Zimmer, sowie einem 560 m² großen Grundstück ein großzügiges Raumangebot mit vielseitigen Nutzungsmöglichkeiten.
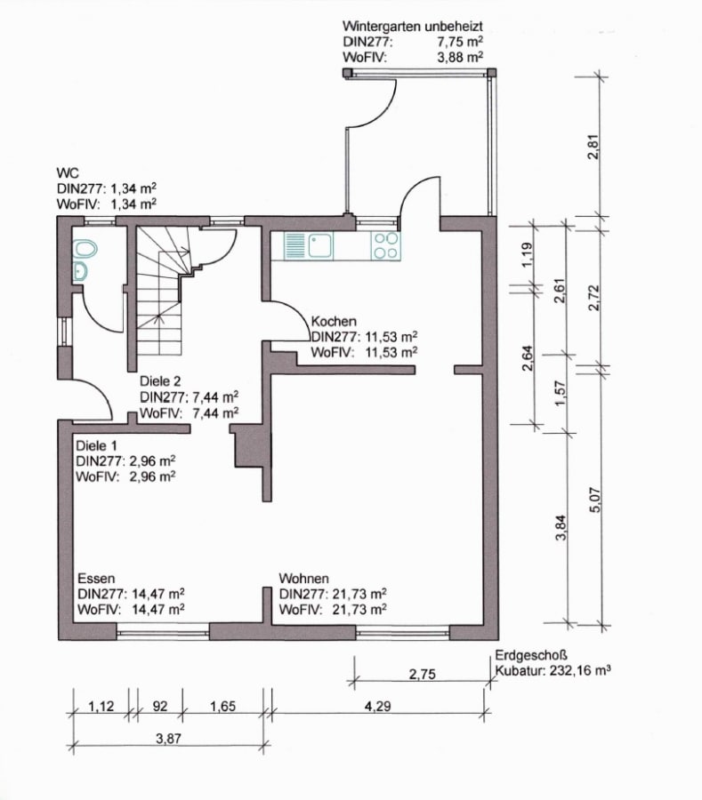
Die vorhandenen Grundrisse verdeutlichen eine klassische, zugleich sehr gut nutzbare Aufteilung über mehrere Ebenen. Im Erdgeschoss bildet der großzügige Wohn- und Essbereich das Zentrum des Hauses und überzeugt durch seine angenehme Offenheit sowie die direkte Anbindung an die Küche und den angrenzenden Sommergarten. Die Fenster von diesem besonderem Raum lassen sich großzügig öffnen und sind ein idealer Ort für Frühstück in der Sonne oder gemütlichen Stunden – besonders an bereits kälteren Tagen. Ergänzt wird diese Ebene durch eine Diele sowie ein Gäste-WC.
Das Obergeschoss bietet mehrere gut geschnittene Schlafzimmer sowie ein Badezimmer mit Badewanne und hochwertigen Dornbracht-Armaturen. Die klare Raumstruktur schafft ideale Voraussetzungen für eine familiengerechte Nutzung mit ausreichend Rückzugsbereichen.
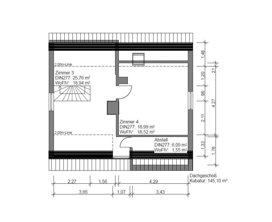
Im Dachgeschoss eröffnet sich zusätzlicher Wohnraum mit zwei weiteren Zimmern sowie Abstellflächen und einem Wasseranschluss als Potential für ein weiteres Badezimmer. Voraussetzung für die vollständige Anrechnung der Wohnfläche ist die Vergrößerung eines Dachflächenfensters auf ein lichtes Maß von 90 x 120 cm zur Sicherstellung des zweiten Rettungsweges.
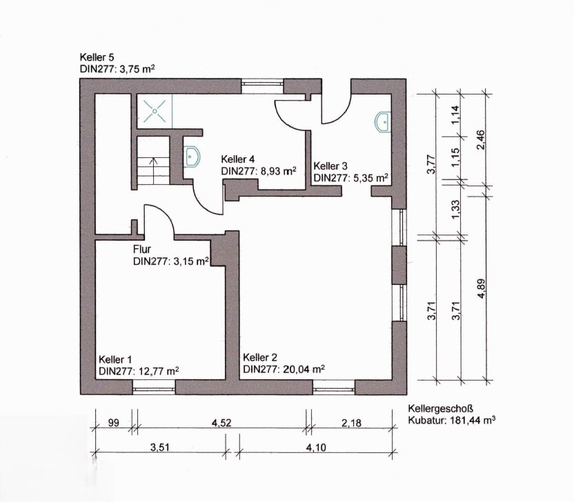
Das Kellergeschoss ergänzt das Raumangebot sinnvoll und bietet neben klassischen Nutzflächen auch ein Büro, eine Waschküche mit Dusche sowie einen direkten Zugang zum Garten.
Die Immobilie präsentiert sich in einem gepflegten Zustand mit solider Substanz. Die Gas-Zentralheizung stammt aus den späten 1990er Jahren und wird regelmäßig gewartet (gültig bis 2029). Das Dach wurde ebenfalls Ende der 1990er Jahre erneuert, jedoch nicht gedämmt.
Die Fenster wurden im Laufe der Jahre teilweise erneuert und weisen unterschiedliche Ausstattungsstände auf. Details dazu finden sie in der Ausstattung.
Die Bodenbeläge reichen von Eichenparkett im Erdgeschoss über Stäbchenparkett im Obergeschoss bis hin zu Holzdielen im Dachgeschoss, während die Küche und der Eingangsbereich mit Granit ausgestattet ist.
Ein weiteres Highlight ist der funktionstüchtige und regelmäßig gewartete Kamin, der eine zusätzliche Wohnqualität schafft und durch einen aktuellen Feuerstättenbescheid bestätigt ist. Die ca. acht Jahre alte Bulthaup-Küche mit Quooker-Kochwasserhahn unterstreicht den Anspruch an Qualität im Wohnbereich.
Das Grundstück bietet neben einem Garten mit angenehmer Größe auch eine Doppelgarage, ein Carport vor dem Haupteingang sowie zusätzliche Stellplätze für drei bis fünf Fahrzeuge – ein im Alltag besonders wertvoller Komfort. Eine Alarmanlage für Wohnhaus und Garage sorgt zudem für ein erhöhtes Sicherheitsgefühl.

Dieses Einfamilienhaus vereint großzügiges Wohnen, eine solide bauliche Grundlage und vielfältige Entwicklungsmöglichkeiten. Es richtet sich an Käufer, die ein Haus mit Charakter und Substanz suchen und bereit sind, durch gezielte Maßnahmen energetische und gestalterische Anpassungen vorzunehmen.

Lassen Sie sich von dieser attraktiven Immobilie im Rahmen einer persönlichen Besichtigung überzeugen. Hierfür steht Ihnen Frau Ellen Jaros jederzeit gerne zur Verfügung.

Ausstattung

  • Freistehendes Einfamilienhaus
  • Baujahr 1954
  • Wohnfläche 159,99 m²
  • Grundstück 560 m²
  • 6 Zimmer + Sommergarten
  • Gas-Zentralheizung
  • Dach aus Ende der 1990er Jahre, nicht gedämmt
  • Fenster unterschiedlich modernisiert:

Wohn- und Essbereich: Holzfenster, doppelt verglast (2017)
Küche: Holzfenster, doppelt verglast (ca. 1998)
Flur, Treppenhaus, Bad OG: Kunststofffenster, doppelt verglast (2011)
Büro: Kunststofffenster, doppelt verglast (2012)
Dachgeschoss: teilweise Kunststofffenster, doppelt verglast (2014) + ältere Bestandsfenster
Schlafzimmer & Kinderzimmer: Holzfenster, einfach verglast

  • Böden: Eichenparkett, Stäbchenparkett, Holzdielen, Granitboden
  • Funktionstüchtiger Kamin mit aktuellem Feuerstättenbescheid
  • Bulthaup-Küche (ca. 8 Jahre alt) mit Quooker-Kochwasserhahn
  • Alarmanlage für Wohnhaus und Garage
  • Garten mit 2 Gartenhäusern und Terrasse
  • Doppelgarage und Carport
  • 3–5 zusätzliche Stellplätze

Sonstiges

Der Kaufpreis für die Immobilie beträgt 499.000 € zuzüglich der vom Käufer zu zahlenden Provision in Höhe von 3,57 % inkl. gesetzl. Mehrwertsteuer. Wir sind vom Eigentümer allein beauftragt, Verhandlungen mit Interessenten zu führen.
Der Makler-Vertrag mit uns kommt durch schriftliche Vereinbarung oder durch die Inanspruchnahme unserer Maklertätigkeit auf der Basis des Objekt-Exposés und seiner Bedingungen zustande. Die Käufercourtage ist bei notariellem Vertragsabschluss verdient und fällig. Grunderwerbsteuer, Notar- und Gerichtskosten trägt der Käufer. Sollte das von uns nachgewiesene Objekt bereits bekannt sein, teilen Sie uns dies bitte unverzüglich mit. Die Weitergabe dieses Exposés an Dritte ohne unsere Zustimmung löst gegebenenfalls Courtage- bzw. Schadensersatzansprüche aus.
Kleingedrucktes:
Alle Angaben basieren ausschließlich auf Informationen, die uns von unserem Auftraggeber übermittelt wurden. Wir übernehmen keine Gewähr für die Vollständigkeit, Richtigkeit und Aktualität dieser Angaben. Zwischenverkauf bleibt vorbehalten.

Lage

Das angebotene Einfamilienhaus befindet sich in zentraler Lage von Solingen-Mitte, eingebettet in ein gewachsenes Wohnumfeld, das sich durch eine sehr gute Infrastruktur, kurze Wege und eine familienfreundliche Atmosphäre auszeichnet. Die Kombination aus urbaner Nähe und angenehmer Wohnruhe macht diesen Standort besonders attraktiv für Familien.

Ein besonderer Pluspunkt ist die Lage in einer Sackgasse, die für deutlich reduzierten Verkehr, ein hohes Maß an Sicherheit und eine angenehme Wohnqualität sorgt. Gerade für Familien mit Kindern bietet dies ein geschütztes Umfeld zum Spielen und Aufwachsen.

Die Nachbarschaft ist geprägt von einer harmonischen Mischung aus Ein- und Mehrfamilienhäusern sowie einer funktionierenden, gewachsenen Struktur. Trotz der zentralen Lage überzeugt die unmittelbare Umgebung durch ein ruhiges und wohnliches Ambiente mit hohem Alltagskomfort.

Die Nahversorgung ist hervorragend: Supermärkte, Bäckereien, Apotheken, Ärzte und weitere Einrichtungen des täglichen Bedarfs sind fußläufig oder in wenigen Minuten erreichbar. Die Solinger Innenstadt mit dem Einkaufszentrum Hofgarten liegt ebenfalls nur wenige Gehminuten entfernt und bietet ein vielseitiges Angebot an Einzelhandel, Gastronomie, Kultur und Freizeitmöglichkeiten.

Für Familien besonders attraktiv ist das umfassende Bildungsangebot: Kindergärten, Grundschulen sowie Realschulen, Gesamtschulen und Gymnasien sind bequem zu Fuß oder mit dem Fahrrad erreichbar. Ergänzt wird dies durch zahlreiche Spielplätze, Sportvereine und Freizeiteinrichtungen im näheren Umfeld.

Ein echtes Highlight dieser Lage ist die Nähe zur Korkenziehertrasse, einem der beliebtesten Rad- und Freizeitwege der Region. Zwei Zugänge sind in wenigen Minuten erreichbar und bieten direkten Anschluss an die hervorragend ausgebaute Trasse. In Richtung Solingen-Gräfrath führt sie über Waldgebiete bis in den historischen Ortskern mit seiner beliebten Gastronomie. In der Gegenrichtung gelangen Sie zum Südpark mit vielfältigen Freizeit- und Kulturangeboten sowie zum Bahnhof Solingen-Mitte, der eine hervorragende Anbindung an den regionalen Bahnverkehr bietet.

Auch die Verkehrsanbindung ist überzeugend: Die Autobahnen A3 und A46 sind in etwa 10–15 Minuten erreichbar und ermöglichen eine schnelle Verbindung nach Düsseldorf (ca. 25–30 Minuten), Köln (ca. 30–35 Minuten), Wuppertal und Leverkusen. Bushaltestellen befinden sich in ca. 3–5 Gehminuten Entfernung und sorgen für eine zuverlässige Anbindung an die Solinger Zentren sowie die Bahnhöfe Solingen-Mitte und Solingen-Ohligs.

Diese Lage in Solingen-Mitte vereint ruhiges Wohnen in einer Sackgassenendlage mit den Vorteilen einer zentralen Infrastruktur. Die unmittelbare Nähe zur Korkenziehertrasse, die kurzen Wege im Alltag und die sehr gute Anbindung machen diesen Standort zu einem idealen Zuhause für Familien, die Wert auf Lebensqualität, Flexibilität und ein lebendiges Umfeld legen.

Sie sehen gerade einen Platzhalterinhalt von Google Maps. Um auf den eigentlichen Inhalt zuzugreifen, klicken Sie auf die Schaltfläche unten. Bitte beachten Sie, dass dabei Daten an Drittanbieter weitergegeben werden.

Mehr Informationen

Direktanfrage

* Pflichtangaben
 SSL-verschlüsselt
Immobiliendaten-Import und Darstellung für WordPress: WP-ImmoMakler