Referenzen.
Startseite > Verkauf > Referenzen
Modernes Einfamilienhaus mit Garten, PV-Anlage und Klimakomfort – sofort bezugsfrei.
42699 Solingen, Doppelhaushälfte zum Kauf
Referenz
Dieses Objekt wurde bereits erfolgreich vermittelt.
Objektdaten
-
Objekt IDFR2040
-
ObjekttypenDoppelhaushälfte, Haus
-
Adresse42699 Solingen
-
Wohnfläche ca.87,12 m²
-
Grundstück ca.206 m²
-
Nutzfläche ca.112,11 m²
-
Gesamtfläche ca.199,23 m²
-
Zimmer3
-
Schlafzimmer0,0
-
Badezimmer0,0
-
Terrassen1
-
Baujahr2007
-
Verfügbar absofort
-
Carport:1 Stellplatz
Ausstattung / Merkmale
- ✓ Keller
- ✓ Terrasse
Objektbeschreibung
Beschreibung
Dieses gepflegte Einfamilienhaus in Massivbauweise wurde im Jahr 2007 errichtet und befindet sich in ruhiger, familienfreundlicher Lage im beliebten Solinger Stadtteil Aufderhöhe. Auf einem ca. 206 m² großen Grundstück erstreckt sich eine Wohnfläche von rund 87 m², verteilt auf drei Zimmer, ergänzt durch eine durchdachte Raumaufteilung und moderne Ausstattung.
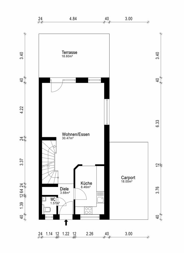
Das Erdgeschoss empfängt Sie mit einer hellen Diele, einem Gäste-WC sowie einer geräumigen Einbauküche mit direktem Übergang in den offenen Wohn- und Essbereich. Der großzügige, lichtdurchflutete Raum eröffnet den Zugang zur überdachten Terrasse und zum liebevoll angelegten Garten, der durch seine Ausrichtung viele Sonnenstunden garantiert. Ein Carport mit direktem Gartenzugang komplettiert den Außenbereich auf funktionale Weise.
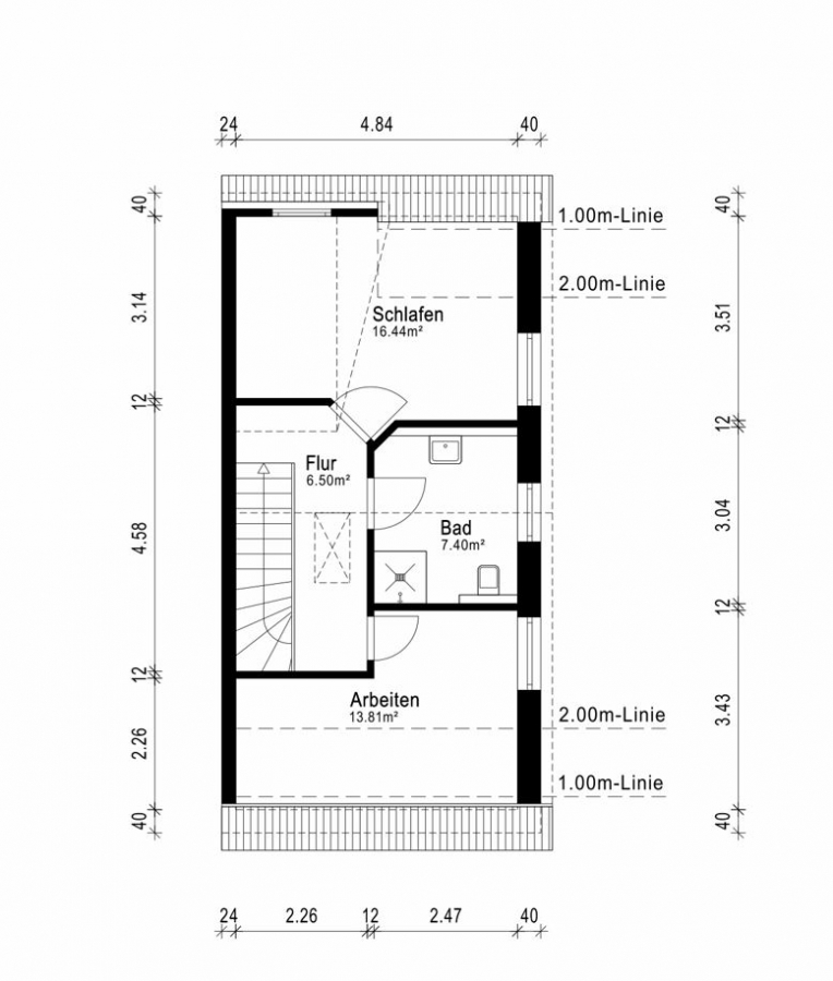
Im Obergeschoss erwarten Sie zwei gut geschnittene Schlafzimmer, eines davon mit einer Klimaanlage, die an heißen Tagen für angenehme Temperaturen sorgt. Das stilvoll gestaltete Tageslichtbad ist mit einer ebenerdigen Walk-In-Dusche ausgestattet und überzeugt durch ein modernes, komfortables Ambiente.
Das Haus ist voll unterkellert und stellt hier neben einem Hauswirtschaftsbereich und dem Technikraum auch einen großzügigen, wohnlich ausgebauten Hobbyraum zur Verfügung – ideal nutzbar als Homeoffice, Fitnessraum oder kreativer Rückzugsort.
Der Spitzboden bietet wertvollen Stauraum und eröffnet weiteren wohnlich ausgebauten Raum für die Nutzung als Studio oder Arbeitszimmer.
Die technische Ausstattung unterstreicht den zukunftsorientierten Wohnkomfort: Eine Gas-Brennwertheizung in Kombination mit Solarthermie (zwei Kollektoren) sorgt für energieeffiziente Warmwasserbereitung. Darüber hinaus ist das Gebäude mit Photovoltaikmodulen (ohne Speicher) versehen, wodurch sich die laufenden Stromkosten spürbar senken lassen.
Diese Immobilie verbindet moderne Haustechnik, eine gut durchdachte Architektur und ein hohes Maß an Wohnqualität – ideal für Paare, kleine Familien oder anspruchsvolle Einzelpersonen. Das Haus ist sofort bezugsfrei und kann ohne zusätzlichen Sanierungsaufwand übernommen werden.
Herr Florian Rossa steht Ihnen für nähere Informationen oder zur Vereinbarung eines persönlichen Besichtigungstermins gerne zur Verfügung. Wir freuen uns auf Ihre Anfrage!
Ausstattung
- Baujahr 2007 (Massivhaus)
- ca. 87 m² Wohnfläche auf ca. 206 m² Grundstück
- drei Zimmer + Gäste-WC
- Einbauküche und offener Wohn-/Essbereich
- modernes Tageslichtbad mit bodengleicher Dusche
- Klimaanlage im Schlafzimmer
- Gas-Brennwertheizung + Solarthermie
- PV-Anlage
- voll unterkellert mit großem Hobbyraum
- überdachte Terrasse & gepflegter Garten
- Carport mit direktem Gartenzugang
- ruhige Wohnlage in verkehrsberuhigter Straße
Sonstiges
Der Kaufpreis für die Immobilie beträgt 349.000,00 € zuzüglich der vom Käufer zu zahlenden Provision in Höhe von 3,57 % inkl. gesetzl. Mehrwertsteuer. Wir sind vom Eigentümer allein beauftragt, Verhandlungen mit Interessenten zu führen.
Der Makler-Vertrag mit uns kommt durch schriftliche Vereinbarung oder durch die Inanspruchnahme unserer Maklertätigkeit auf der Basis des Objekt-Exposés und seiner Bedingungen zustande. Die Käufercourtage ist bei notariellem Vertragsabschluss verdient und fällig. Grunderwerbsteuer, Notar- und Gerichtskosten trägt der Käufer. Sollte das von uns nachgewiesene Objekt bereits bekannt sein, teilen Sie uns dies bitte unverzüglich mit. Die Weitergabe dieses Exposés an Dritte ohne unsere Zustimmung löst gegebenenfalls Courtage- bzw. Schadensersatzansprüche aus.
Kleingedrucktes:
Alle Angaben basieren ausschließlich auf Informationen, die uns von unserem Auftraggeber übermittelt wurden. Wir übernehmen keine Gewähr für die Vollständigkeit, Richtigkeit und Aktualität dieser Angaben. Zwischenverkauf bleibt vorbehalten.
Lage
Das Einfamilienhaus befindet sich in einer äußerst begehrten Wohngegend Solingens, im Stadtteil Aufderhöhe, eingebettet in ein gewachsenes, gepflegtes Umfeld mit überwiegend ein- bis zweigeschossiger, ansprechender Bebauung. Die ruhige und gleichzeitig gut angebundene Adresse überzeugt durch ihre erhöhte Position mit teils herrlichem Blick ins Grüne sowie durch eine familienfreundliche Nachbarschaft.
Die Straße liegt in einer verkehrsberuhigten Zone, die sowohl Entspannung als auch Sicherheit gewährleistet – ideal für Familien mit Kindern oder Menschen, die naturnahe Erholung mit städtischer Infrastruktur kombinieren möchten. Die fußläufige Nähe zu Feldern und kleinen Waldflächen eröffnet vielfältige Möglichkeiten zur Freizeitgestaltung und Erholung direkt vor der Tür.
Trotz der abgeschirmten Wohnlage ist die verkehrstechnische Anbindung ausgezeichnet: Über die nur wenige Minuten entfernte Bundesstraße B229 gelangen Sie zügig zur Autobahn A3, die Solingen optimal mit den Großräumen Köln und Düsseldorf verknüpft. Die Fahrzeit zu den Flughäfen Düsseldorf und Köln/Bonn beträgt je nach Verkehrslage lediglich 20 bis 30 Minuten. Auch andere Stadtteile Solingens sind über die nahegelegene Stadtautobahn bequem erreichbar.
Für den täglichen Bedarf ist umfassend vorgesorgt: Einkaufsmöglichkeiten, Supermärkte, Apotheken, medizinische Einrichtungen sowie Kindertagesstätten und sämtliche Schulformen finden sich entweder im Stadtteil Aufderhöhe selbst oder im benachbarten Ohligs. Dort befindet sich zudem der Solinger Hauptbahnhof mit direkter Anbindung an das Fernverkehrsnetz der Deutschen Bahn (inkl. ICE-Halt) – ein wesentlicher Standortvorteil insbesondere für Berufspendler.
42699 Solingen, Deutschland (auf Google Maps ansehen)




















