Aktuelle Immobilien.
Startseite > Kauf > Immobilienangebot
Geräumige Doppelhaushälfte mit Wintergarten in Ruhiglage in Richrath.
40764 Langenfeld / Richrath, Doppelhaushälfte zum Kauf
Kontaktdaten
-
NameFrau Angelika Sänger
-
FirmaKUBIKOM Immobilien GmbH
-
AnschriftZum Stadion 73
40764 Langenfeld -
E-Mail
-
E-Mail
-
Telefon
-
Telefon
-
Mobil
-
Fax004921731650532
Objektdaten
-
Objekt IDAS 2323
-
ObjekttypenDoppelhaushälfte, Haus
-
Adresse40764 Langenfeld / Richrath
-
Wohnfläche ca.156,20 m²
-
Grundstück ca.352 m²
-
Zimmer6
-
Schlafzimmer0,0
-
Badezimmer2
-
Separate WC1
-
Terrassen1
-
Baujahr1975
-
Ausstattunggehoben
-
Verfügbar abnach Vereinbarung
-
Stellplatz:1 Stellplatz
-
Garage:1 Stellplatz
-
Käuferprovision3,57% inkl. MwSt.
-
Kaufpreis470.000 EUR
Ausstattung / Merkmale
- ✓ Einbauküche
- ✓ Keller
- ✓ Sauna
- ✓ Separates WC
- ✓ Terrasse
- ✓ Wintergarten
Energieausweis
-
EnergieausweistypBedarfsausweis
-
Gültig bis06.03.2034
-
GebäudeartWohngebäude
-
Baujahr lt. Energieausweis2014
-
PrimärenergieträgerGas
-
Endenergiebedarf217,30 kWh/(m²·a)
-
EnergieeffizienzklasseG
Objektbeschreibung
Beschreibung
Dieses gepflegte Einfamilienhaus aus dem Jahr 1975 befindet sich auf einem ruhig gelegenen Grundstück von 352 m² in einer Sackgassenlage und verfügt über eine Garage direkt am Haus.
Zuletzt wurde das Haus als Zweifamilien- Wohnhaus genutzt. Das vom Eigentümer selbst bewohnte Erdgeschoss steht aktuell leer.
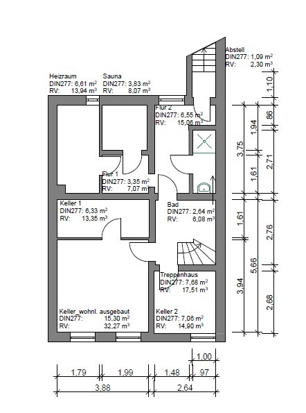
Diese Einheit besteht aus Flur, Gäste-WC, Schlafzimmer, Küche und Wohnzimmer. Hier schließt sich der Wintergarten (aus 1995) an, eine Terrasse mit Pergola als natürlichem Sonnenschutz und der Garten. Das wohnlich ausgebaute Souterrain mit Sauna und einem für Gäste nutzbaren Raum sowie einem Duschbad runden das Raumangebot ab.
Im Erdgeschoss wurden im Laufe der Zeit hinter der Garage Flächen von etwa 24 m² wohnlich ausgebaut, ohne dass hierfür eine baurechtliche Genehmigung vorliegt. Diese Fläche ist der hier genannten Wohnfläche ebenso wenig enthalten wie die Flächen im Souterrain.
Die Wohnung selbst ist lichtdurchflutet und bietet einen wunderschönen, idyllischen Rückzugsort mit ungestörtem Blick in den liebevoll angelegten Garten. Der großzügige und beheizbare Wintergarten (aus hochwertigem Aluminium) öffnet sich harmonisch zum Außenbereich und erweitert den Wohnraum auf ganz natürliche Weise – hier genießen Sie das ganze Jahr über einen außergewöhnlich schönen Platz – ob bei Sonnenschein oder Regen. Der Ausblick geht hier ins Grüne, da es keine angrenzende Bebauung gibt.
Der obere Teil des Hauses ist derzeit noch vermietet und erwirtschaftet eine Jahresnettokaltmiete von 10.680€. Der Mietvertrag hat noch eine Festlaufzeit bis Mai 2026, was einem Erwerber bis dahin eine zusätzliche Einnahmequelle sichert (im Anschluss der Festlaufzeit im Rahmen der gesetzlichen Regelung ordentlich kündbar).
Das Obergeschoss bietet sodann 3 Wohn-/Schlafräume und ein Badezimmer. Eins dieser Zimmer wird in der vermieteten Einheit z.Zt. als Küche genutzt. Das Dachgeschoss ist wohnlich ausgebaut, wird momentan als Schlafbereich genutzt und durch ein separates Duschbad komplettiert.
Die Mieter nutzen eine vor dem Haus geschaffene Terrassenfläche nebst kleinem Gartenhaus zum Abstellen von Gegenständen.
Die Zusammenlegung der heute zwei Einheiten ist ohne großen Aufwand möglich, da der ursprüngliche Durchgang problemlos reaktiviert werden kann.
Die Immobilie befindet sich in einem gepflegten Zustand, Modernisierungen und individuelle Anpassungen bieten jedoch Raum zur Wertsteigerung – sowohl optisch als auch funktional.
Lernen Sie diese besondere Immobilie bei einer persönlichen Besichtigung kennen – Frau Angelika Sänger steht Ihnen jederzeit hierfür oder für ein Beratungsgespräch zur Verfügung. Wir freuen uns auf Ihre Kontaktaufnahme!
Ausstattung
- Es handelt sich hier um ein Erbbaurechtsgrundstück mit einem Erbbau-Zins von 550,16€ pro Jahr.
- Zum Objekt gehört eine Garage mit davorliegendem Freiplatz
- Erdgeschoss mit zentraler Heizung und Warmwasserversorgung
- Warmwasser im OG und DG dezentral über Durchlauferhitzer.
- Zuverlässige Gas-Zentralheizung (2014)
- Teilweise Fußbodenheizung vorhanden
- Fenster: je nach Bereich aus dem Baujahr 1975, 1987 oder 2001
- Ausbau des Dachgeschosses im Jahr 1987
- Wintergarten (1995) – beheizt und aus hochwertigem Aluminium
- Teilung des Einfamilienhauses in zwei Wohneinheiten 2010/2011
- 2019/2020 Verlegung eines neuen Laminatbodens in der z.Zt. vermieteten Fläche im Obergeschoss
- Solider Allgemeinzustand mit Potenzial zur Individualisierung
Hinweis:
Im Dachgeschoss ist die Fläche im Bereich der Gauben nicht in der Wohnfläche enthalten, da hierfür keine Genehmigung vorliegt.
Sonstiges
Der Kaufpreis für die Immobilie beträgt 470.000,00 € zuzüglich der vom Käufer zu zahlenden Provision in Höhe von 3,57 % inkl. gesetzl. Mehrwertsteuer. Wir sind vom Eigentümer allein beauftragt, Verhandlungen mit Interessenten zu führen.
Der Makler-Vertrag mit uns kommt durch schriftliche Vereinbarung oder durch die Inanspruchnahme unserer Maklertätigkeit auf der Basis des Objekt-Exposés und seiner Bedingungen zustande. Die Käufercourtage ist bei notariellem Vertragsabschluss verdient und fällig. Grunderwerbsteuer, Notar- und Gerichtskosten trägt der Käufer. Sollte das von uns nachgewiesene Objekt bereits bekannt sein, teilen Sie uns dies bitte unverzüglich mit. Die Weitergabe dieses Exposés an Dritte ohne unsere Zustimmung löst gegebenenfalls Courtage- bzw. Schadensersatzansprüche aus.
Kleingedrucktes:
Alle Angaben basieren ausschließlich auf Informationen, die uns von unserem Auftraggeber übermittelt wurden. Weitere Unterlagen, wie die Grundrisse und Wohnflächenberechnung wurden von externen Dienstleistern erstellt und von uns ins Exposé übernommen. Wir übernehmen keine Gewähr für die Vollständigkeit, Richtigkeit und Aktualität dieser Angaben. Zwischenverkauf bleibt vorbehalten.
Lage
Im beliebten Stadtteil Langenfeld-Richrath bietet diese Immobilie ein ideales Wohnumfeld für große und kleine Familien – oder solche, die es werden möchten. Die verkehrsberuhigte Sackgassenendlage sorgt für Ruhe, Sicherheit und eine angenehme Nachbarschaftsatmosphäre. Kinder können hier ungestört spielen, während Eltern das naturnahe und zugleich stadtnahe Umfeld genießen.
Das gewachsene Wohngebiet zeichnet sich durch gepflegte Einfamilienhäuser, großzügige Grundstücke und ein freundliches Miteinander aus. Die Umgebung ist grün und bietet dennoch kurze Wege zu allen Dingen des täglichen Bedarfs. Supermärkte, Bäcker, Apotheken, Ärzte sowie Kitas und Schulen sind bequem erreichbar und machen den Alltag unkompliziert.
Auch die Freizeitgestaltung kommt nicht zu kurz: Ob Spaziergänge durch die nahegelegenen Felder, Fahrradtouren ins Umland, ein Besuch im Stadtpark, am Langforter See oder sportliche Aktivitäten in lokalen Vereinen – die Umgebung bietet zahlreiche Möglichkeiten für Groß und Klein. Naherholungsgebiete laden zu entspannten Nachmittagen im Grünen ein.
Unweit befindet sich auch die deutschlandweit bekannte Wasserskianlage nebst Freibadbereich und Gastronomie.
Die Innenstadt von Langenfeld mit attraktiven Einkaufsmöglichkeiten, Wochenmärkten, Restaurants und Cafés ist nur wenige Minuten entfernt und bequem mit dem Fahrrad oder Auto erreichbar. Hier verbinden sich städtisches Leben und ländliche Gelassenheit auf angenehme Weise.
Pendler profitieren von der hervorragenden Anbindung an das überregionale Verkehrsnetz: Die Autobahnen A3 und A59 sind in rund 10 Minuten erreichbar und erschließen das Rheinland mit schnellen Wegen nach Düsseldorf, Köln, Leverkusen, Monheim oder Solingen. Auch der Bahnhof Langenfeld ist gut erreichbar und bietet regelmäßige S-Bahn-Verbindungen Richtung Köln und Düsseldorf.
Die Lage in Langenfeld-Richrath steht damit für eine besonders ausgewogene Lebensqualität – perfekt für Familien, die Wert auf ein ruhiges, sicheres und gleichzeitig gut angebundenes Zuhause legen. Ein Ort, der Raum zum Ankommen, Wachsen und Wohlfühlen bietet.
40764 Langenfeld / Richrath, Deutschland (auf Google Maps ansehen)

















