Aktuelle Immobilien.

Startseite > Kauf > Immobilienangebot

Attraktive, lichtdurchflutete Gewerbehalle mit ca. 660m² Fläche

42659 Solingen, Lager zur Miete

Kontaktdaten

Henrik Rahlmeyer,

Objektdaten

  • Objekt ID
    HR2640
  • Objekttypen
    Halle/Lager/Produktion, Lager
  • Adresse
    42659 Solingen
  • Gesamtfläche ca.
    700 m²
  • Lagerfläche ca.
    660 m²
  • Zimmer
    0,0
  • Schlafzimmer
    0,0
  • Badezimmer
    0,0
  • Baujahr
    1964
  • Verfügbar ab
    sofort
  • Kaltmiete
    2.800,00 EUR
  • Betriebskosten brutto
    410,00 EUR
  • Gesamtbelastung brutto
    3.210,00 EUR

Objekt­beschreibung

Beschreibung

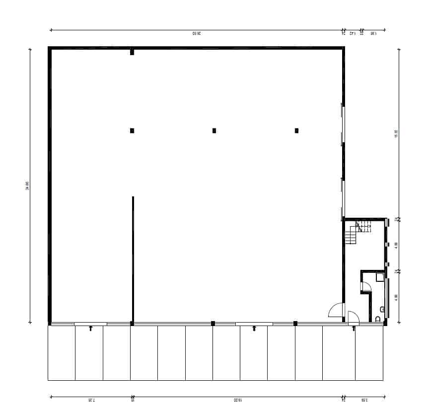
Bei diesem Objekt handelt es sich um eine helle und funktional geschnittene Lagerhalle mit ca. 660 m² unbeheizter Lagerfläche sowie ergänzenden Nebenräumen. Die Halle verfügt über eine großzügige, offene Fläche mit einer Breite von ca. 26,60 m und einer Hallentiefe von ca. 24,80 m und eignet sich ideal für Lager, Logistik oder leichte Produktion. Die Deckenhöhe liegt zwischen ca. 3,70 m und 4,00 m unterhalb der Träger und bietet damit ausreichend Raum für gängige Lagerkonzepte.

Der Zugang zur Halle erfolgt über zwei unterschiedlich große Rolltore. Eines der Tore ist bodengleich ausgeführt und verfügt über eine Höhe von ca. 2,50 m sowie eine Breite von ca. 3,00 m. Das andere Tor weist eine Höhe von ca. 4,60 m und eine Breite von ca. 3,40 m auf. In diesem Bereich besteht die Möglichkeit einer optionalen, nachträglichen Bodenangleichung.

Eine Anlieferung mit Fahrzeugen der 40-Tonnen-Klasse direkt an eine Rampe ist nicht möglich. Die Be- und Entladung kann jedoch alternativ, beispielsweise mittels Gabelstapler, erfolgen.

Zusätzlich steht ein separater Eingangsbereich mit Zugangstür zur Verfügung, wodurch eine klare Trennung von Personal- und Warenzugang möglich ist.

Die Halle ist mit LED-Beleuchtung ausgestattet und erhält aktuell einen neuen, belastbaren Hallenboden. Die auf den Bildern teilweise noch sichtbaren Bodenflächen entsprechen noch nicht dem finalen Ausstattungszustand. Der neue Boden wird eine durchgängige, für Lager- und Logistikzwecke geeignete Oberfläche bieten. Neben der Lagerfläche stehen ca. 40 m² Nebenflächen mit Flur, WC, Dusche und Waschmaschinenanschluss zur Verfügung. Ein separates Büro mit ca. 30 m² bietet zusätzliche Nutzungsmöglichkeiten für Verwaltung oder Disposition.

Die Fläche ist optional teilbar (siehe Grundriss) und kann somit flexibel an unterschiedliche Anforderungen angepasst werden. Die Halle ist derzeit unbeheizt; nach Absprache können sich ggf. Möglichkeiten für eine nachträgliche Beheizung ergeben.

Lassen Sie sich von dieser attraktiven Immobilie im Rahmen einer persönlichen Besichtigung überzeugen. Hierfür steht Ihnen Herr Henrik Rahlmeyer jederzeit gerne zur Verfügung.

Ausstattung

  • Helle, offene Lagerhalle
  • Nebenräume (inkl. Flur, kleines Büro, WC, -Dusche, Waschmaschinenanschluss)
  • 2 Rolltore für den Warenverkehr (davon 1 bodengleich, optional Bodenangleichung möglich)
  • Separater Haupteingang mit Zugangstür
  • LED-Beleuchtung
  • Neuer, belastbarer Hallenboden
  • Fläche optional teilbar
  • Stellplätze optional verfügbar

Sonstiges

Die Nettokaltmiete beträgt 2.800,00 EUR zzgl. 410,00 EUR Nebenkostenvorauszahlung zzgl. der gesetzlichen MwSt. Optional besteht die Möglichkeit bis zu drei Stellplätze für jeweils 25,00 EUR anzumieten.

Die Kaution beläuft sich auf 8.400,00 EUR (dies entspricht drei Nettokaltmieten).

Der schnellste Weg zu uns ist nur einen Klick entfernt. Nutzen Sie bitte die Schaltfläche „Nachricht“ und schreiben Sie uns darüber eine E-Mail.
Da dies ein weitgehend automatisierter Prozess ist, erhalten Sie so kurzfristig die Adresse der Immobilie und können diese anschließend diskret von außen besichtigen.

Lage

Das Objekt liegt in Solingen Burg/Höhscheid, in der Nähe der Krahenhöhe, in einem gewerblich geprägten Umfeld mit guter infrastruktureller Anbindung. Die Lage an der Burger Landstraße ermöglicht eine direkte Erschließung für Lieferverkehr, Kunden und Mitarbeiter und bindet das Grundstück funktional in das bestehende Gewerbegebiet ein.

Die Verkehrsanbindung ist regional gut: Über die B229 / B224 bestehen direkte Verbindungen zu den umliegenden Wirtschaftsräumen wie Düsseldorf, Wuppertal und Remscheid, wodurch sowohl regionale als auch überregionale Ziele schnell erreichbar sind. Die nächstgelegenen Autobahnauffahrten zur A1 und A46 liegen in angemessener Fahrzeit.

Es wird darauf hingewiesen, dass die Anbindung an die A1 für Fahrzeuge der 40-Tonnen-Klasse aufgrund einer Engstelle im Bereich Unterburg nur eingeschränkt geeignet ist. Die Zufahrt mit kleineren Fahrzeugen, wie beispielsweise Transportern oder Sprintern, ist hingegen problemlos möglich.

Direkt vor der Einfahrt befindet sich eine Bushaltestelle, wodurch die Halle für Mitarbeitende optimal erreichbar ist.

Sie sehen gerade einen Platzhalterinhalt von Google Maps. Um auf den eigentlichen Inhalt zuzugreifen, klicken Sie auf die Schaltfläche unten. Bitte beachten Sie, dass dabei Daten an Drittanbieter weitergegeben werden.

Mehr Informationen

Direktanfrage

* Pflichtangaben
 SSL-verschlüsselt
Immobiliendaten-Import und Darstellung für WordPress: WP-ImmoMakler