Aktuelle Immobilien.
Startseite > Kauf > Immobilienangebot
Vielseitige Produktions- und Gewerbeimmobilie mit Kranbahnen, Wartungsgrube und Bürotrakt.
42655 Solingen, Industriehalle zum Kauf
Kontaktdaten
-
NameHerr Michael Sorgnit
-
FirmaKUBIKOM Immobilien GmbH
-
AnschriftKeldersstr. 6
42697 Solingen -
E-Mail
-
E-Mail
-
Telefon
-
Telefon
Objektdaten
-
Objekt IDMS2005
-
ObjekttypenHalle/Lager/Produktion, Industriehalle
-
Adresse42655 Solingen
-
Grundstück ca.3.485 m²
-
Gesamtfläche ca.1.600,48 m²
-
Lagerfläche ca.1.600,48 m²
-
Zimmer0,0
-
Schlafzimmer0,0
-
Badezimmer0,0
-
Baujahr1966
-
Verfügbar abnach Vereinbarung
-
Stellplatz:20 Stellplätze
-
Käuferprovision3,57 % inkl. Mwst.
-
Kaufpreis798.000 EUR
Ausstattung / Merkmale
- ✓ Gewerblich nutzbar
- ✓ Teilunterkellert
Energieausweis
-
EnergieausweistypVerbrauchsausweis
-
Gültig bis28.04.2035
-
GebäudeartNichtwohngebäude
-
Baujahr1966
-
PrimärenergieträgerÖl
-
Endenergieverbrauch135,60 kWh/(m²·a)
-
EnergieeffizienzklasseH
Objektbeschreibung
Beschreibung
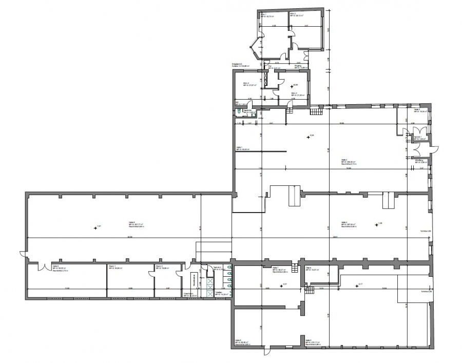
Die angebotene Gewerbeimmobilie ist eine funktional konzipierte und vielseitig nutzbare Produktions- und Gewerbeeinheit, die sich ideal für produzierende Betriebe, Handwerksunternehmen oder lager- und logistiknahe Nutzungen eignet. Sie besteht aus drei Hallenbereichen, die ca. 350 m² (Bereich 1), ca. 750 m² (Bereich 2) und ca. 340 m² (Bereich 3) groß sind und teilweise Nebenflächen beinhalten. Sie vereint Produktions-, Lager-, Sozial- und Büroflächen auf einem übersichtlich strukturierten Grundstück und bietet eine praxisgerechte Ausstattung mit effizienten innerbetrieblichen Abläufen.
Wesentliche Ausstattungsmerkmale sind die in der Produktionshalle installierten Kranbahnen mit einer Tragfähigkeit von bis zu 16 Tonnen, sowie eine Wartungsgrube. Die Hallenhöhe beträgt bis Unterkante der Träger ca. 3,56 m, die maximale Gesamthöhe ca. 8,94 m. Die Andienung erfolgt über zwei Rolltore, davon eines zur Produktionshalle mit einer Höhe von ca. 4,50 m sowie ein weiteres zum Lagerbereich mit ca. 3,56 m Höhe. Damit ist auch die Anlieferung größerer Maschinen und Fahrzeuge problemlos möglich.
Ergänzend stehen funktional angeordnete Sozialräume mit Sanitäranlagen, Umkleiden und Aufenthaltsraum zur Verfügung. Direkt an die Halle angeschlossen befindet sich ein Bürogebäude mit direktem Zugang zur Produktionsfläche. Die Büroeinheit umfasst ca. 111 m² und ist in vier Büroräume, eine Teeküche sowie ein WC gegliedert.
Das Grundstück hat eine Größe von 3.485 m², die Gesamtnutzfläche beträgt ca. 1.600 m² inklusive Büroflächen. Auf dem Gelände stehen ausreichend Pkw-Stellplätze vor und neben der Halle zur Verfügung.
Zu erwähnen ist der historisch gewachsene Charakter des Standorts. Erste vorliegende Bauzeichnungen datieren bereits aus dem Jahr 1898, was auf eine lange industrielle Nutzungsgeschichte hinweist. Teile der Halle könnten dabei auf älteren, ursprünglichen Fundamenten errichtet worden sein.
Die Immobilie wurde 1966 erweitert und wird über eine Ölheizung aus dem Jahr 2006 beheizt. Die Warmwasseraufbereitung erfolgt elektrisch. Der Gesamtzustand ist solide und funktional und bietet eine gute Grundlage für eine langfristige Nutzung sowie individuelle betriebliche Anpassungen.
Insgesamt handelt es sich um eine gut ausgestattete Gewerbeimmobilie mit ausgewogener Flächenverteilung, die durch ihre technische Ausstattung, die vorhandene Wartungsgrube, die Kranbahnen sowie den geschichtsträchtigen Standort überzeugt.
Lassen Sie sich von dieser attraktiven Immobilie im Rahmen einer persönlichen Besichtigung überzeugen. Hierfür steht Ihnen Herr Michael Sorgnit jederzeit gerne zur Verfügung.
Ausstattung
- Gesamtnutzfläche ca. 1.600 m² inklusive Büroflächen
- Grundstücksgröße ca. 3.485 m²
- Geeignet für produzierende Betriebe, Handwerk, Maschinenbau, Instandhaltung sowie lager- und logistiknahe Nutzungen
- Kombination aus Produktionshalle, Lagerflächen, Sozialräumen und angrenzendem Bürogebäude
- Fünf Kranbahnen in der Produktionshalle mit einer Tragfähigkeit von bis zu 16 Tonnen
- Wartungsgrube in der Produktionshalle, zuletzt genutzt zum Absenken großer Maschinen für Wartungs- und Reparaturarbeiten
- Hallenhöhe bis Unterkante Träger ca. 3,56 m
- Maximale Gesamthöhe ca. 8,94 m
- Zwei Rolltore zur Andienung der Hallen- und Lagerflächen
- Rolltor Produktionshalle: Höhe ca. 4,50 m
- Rolltor Lagerbereich: Höhe ca. 3,56 m
- Vollwertige Sozialräume innerhalb des Hallenbereichs (Sanitär, Umkleide, Aufenthalt)
- Angrenzendes Bürogebäude (ca. 111 m²) mit direktem Zugang zur Halle
- Ausreichend Pkw-Stellplätze auf dem Gelände vor und neben der Halle
- Erweiterungsbaujahr der Immobilie 1966
- Ölheizung aus dem Baujahr 2006
- Warmwasseraufbereitung über Strom
- Solider, funktionaler Gesamtzustand
Sonstiges
Der Kaufpreis für die Gewerbeimmobilie beträgt 798.000,00€ zuzüglich der vom Käufer zu zahlenden Provision in Höhe von 3,57 % inkl. gesetzl. Mehrwertsteuer. Wir sind vom Eigentümer allein beauftragt, Verhandlungen mit Interessenten zu führen.
Der Makler-Vertrag mit uns kommt durch schriftliche Vereinbarung oder durch die Inanspruchnahme unserer Maklertätigkeit auf der Basis des Objekt-Exposés und seiner Bedingungen zustande. Die Käufercourtage ist bei notariellem Vertragsabschluss verdient und fällig. Grunderwerbsteuer, Notar- und Gerichtskosten trägt der Käufer. Sollte das von uns nachgewiesene Objekt bereits bekannt sein, teilen Sie uns dies bitte unverzüglich mit. Die Weitergabe dieses Exposés an Dritte ohne unsere Zustimmung löst gegebenenfalls Courtage- bzw. Schadensersatzansprüche aus.
Kleingedrucktes:
Alle Angaben basieren ausschließlich auf Informationen, die uns von unserem Auftraggeber übermittelt wurden. Wir übernehmen keine Gewähr für die Vollständigkeit, Richtigkeit und Aktualität dieser Angaben. Zwischenverkauf bleibt vorbehalten.
Lage
Die angebotene Gewerbeimmobilie mit Büroflächen befindet sich an einem etablierten Standort im Solinger Stadtteil Solingen-Mitte, im Bereich zwischen Löhdorf und Mangenberg. Die Anliegerstraße liegt in einem gewachsenen Gewerbegebiet mit gemischter Struktur aus mittelständischen Betrieben, Dienstleistungsunternehmen und Handwerksbetrieben – eine Umgebung, die sich durch funktionale Infrastruktur, gute Erreichbarkeit und ein solides gewerbliches Umfeld auszeichnet.
Zentrale Lage mit hervorragender Anbindung
Die Lage bietet optimale Voraussetzungen für Unternehmen, die auf gute Erreichbarkeit und kurze Wege angewiesen sind – sowohl für Kunden und Geschäftspartner als auch für Mitarbeitende. Die Autobahnanbindungen A3 (Auffahrt Langenfeld) sowie A46 (Haan-Ost) sind in rund 12–15 Minuten mit dem PKW erreichbar. Diese ermöglichen schnelle Verbindungen in Richtung Düsseldorf, Köln, Leverkusen und Wuppertal.
Auch der Hauptbahnhof Solingen-Ohligs – mit ICE-, Regional- und S-Bahn-Anbindung – ist in ca. zehn Minuten mit dem Auto zu erreichen. Von dort bestehen regelmäßige und direkte Verbindungen nach Köln, Düsseldorf, Essen und Dortmund. Öffentliche Busverbindungen bestehen ebenfalls in fußläufiger Entfernung zur Immobilie und erleichtern den Mitarbeitenden den täglichen Weg zur Arbeit.
Attraktiv für Mitarbeitende
Für die Mitarbeitenden bietet die Lage eine gute Versorgungslage: In gut erreichbarer Nähe befinden sich Supermärkte, Bäckereien, Imbisse und Restaurants, sodass in der Mittagspause oder vor/nach der Arbeit alle wichtigen Besorgungen bequem erledigt werden können. Auch Parkmöglichkeiten stehen in der Umgebung und auf dem Grundstück zur Verfügung – ein Pluspunkt für Mitarbeiter mit eigenem PKW.
Zudem ist die Innenstadt von Solingen-Mitte nur wenige Fahrminuten entfernt. Dort finden sich zahlreiche Einzelhandelsgeschäfte, Banken, Apotheken, medizinische Einrichtungen sowie weitere Dienstleister.
Diese Gewerbeimmobilie ideale Basis für produktives Arbeiten, Logistik oder Dienstleistungsunternehmen mit Anspruch an eine funktionale und gut erreichbare Adresse im Herzen von Solingen.
42655 Solingen, Deutschland (auf Google Maps ansehen)








































