Aktuelle Immobilien.
Startseite > Kauf > Immobilienangebot
Attraktive Gewerbeeinheit mit großzügiger Lagerfläche, Hochregallager und integrierten Büroflächen.
42655 Solingen, Halle zum Kauf
Kontaktdaten
-
NameHerr Stefan Siepmann
-
FirmaKUBIKOM Immobilien GmbH
-
AnschriftKeldersstr. 6
42697 Solingen -
E-Mail
-
E-Mail
-
Telefon
-
Fax+49 212 65 00 10 95
Objektdaten
-
Objekt IDSTS 2051
-
ObjekttypenHalle, Halle/Lager/Produktion
-
Adresse42655 Solingen
-
Gesamtfläche ca.4.131,63 m²
-
Lagerfläche ca.3.070,25 m²
-
Vermietbare Fläche ca.4.131,63 m²
-
Zimmer0,0
-
Schlafzimmer0,0
-
Badezimmer0,0
-
Baujahr1956
-
Verfügbar abnach Vereinbarung
-
Stellplatz:30 Stellplätze
-
Käuferprovision3,57 % inkl. MwSt.
-
Kaufpreis2.300.000 EUR
Ausstattung / Merkmale
- ✓ Gewerblich nutzbar
- ✓ Teilunterkellert
Energieausweis
-
EnergieausweistypBedarfsausweis
-
Gültig bis01.05.2035
-
GebäudeartNichtwohngebäude
-
Baujahr lt. Energieausweis1991
-
PrimärenergieträgerÖl
-
Endenergiebedarf192,20 kWh/(m²·a)
Objektbeschreibung
Beschreibung
Diese funktionale Gewerbeeinheit vereint großzügige Lagerkapazitäten mit repräsentativen Büroräumen unter einem Dach. Ideal für Unternehmen im Bereich Versandhandel, Logistik oder technische Dienstleistungen, bietet die Immobilie eine optimale Infrastruktur für effiziente Warenwirtschaft und administrative Abläufe.
Die ursprünglich im Jahr 1956 errichtete Immobilie wurde in den Jahren 1978, 1990 und 2001 speziell für betriebliche Anforderungen mit hohem Lager- und Versandaufkommen konzipiert und erweitert. Sie befindet sich in gepflegtem Zustand und wurde in den letzten Jahren umfassend modernisiert, insbesondere im Bereich der technischen Ausstattung und Innenraumgestaltung.
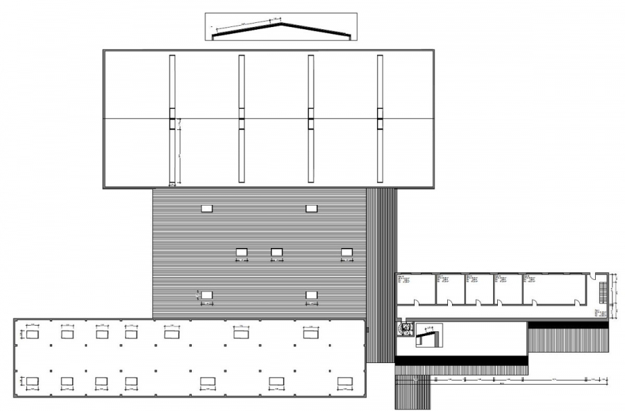
Der Gebäudekomplex umfasst eine beheizbare Lagerhalle mit ebenerdiger Andienung, großzügiger Hallenhöhe und direktem Zugang zu den angrenzenden Verwaltungsbereichen. Die angeschlossenen Büroeinheiten bieten eine hochwertige, moderne Arbeitsumgebung für Verwaltungs-, Buchhaltungs- oder Vertriebsabteilungen. Dank flexibler Raumstruktur sind sowohl offene Arbeitsbereiche als auch separate Büros realisierbar. Die Aufteilung ist zweckmäßig gestaltet (siehe beigefügten Grundriss), mit überwiegend pflegeleichten Kunststoffböden und einem barrierefreien Zugang im Erdgeschoss.
Ein Glasfaseranschluss sowie eine CAT-7-Verkabelung sichern eine zukunftsfähige digitale Infrastruktur. Die integrierte Alarmanlage ist auf ein Wachunternehmen sowie die Feuerwehr aufgeschaltet und sorgt zusammen mit weiteren Sicherheitseinrichtungen für einen hohen Schutzstandard.
Die Kombination aus effizient nutzbarer Lagerfläche und funktional ausgestatteten Bürobereichen macht die Immobilie besonders attraktiv für wachstumsorientierte Unternehmen im E-Commerce, Großhandel oder der Fulfillment-Branche sowie Produktion. Auf dem Grundstück stehen ca. 30 Außenstellplätze für Mitarbeiter und Kunden zur Verfügung.
Ausstattung
- Fläche gesamt: 4.131,63 m²
- Büroflächen über 2 Ebenen (EG + OG) : 799,01 m²
- Hallenhöhen: 10,40 m, 3,78 m und 7,10 m
- Boden: Industrieestrich, befahrbar mit – Gabelstapler, Traglast 2,5 t/m²
- Andienung: Sektionaltore ebenerdig (3,58 m Breite x 3,77 m Höhe + 2,50 m Breite x 4,60 m Höhe)
- Beheizbar über Dunkelstrahler, Teilbereiche mit Fußbodenheizung
- LED-Hallenbeleuchtung
- Rauchmeldeanlage vorhanden
- CAT-7-Verkabelung, Glasfaseranschluss vorhanden
- Helle, zweckmäßige Aufteilung (siehe Grundriss)
- Überwiegend Kunststoffböden, in Einzelbüros teils hochwertiger Teppich
- teilweise klimatisierte Besprechungsräume
- Einbauküche und Sozialräume vorhanden
- Barrierefreier Zugang zum Erdgeschoss
- Alarmanlage (aufgeschaltet bei Wachunternehmen und Feuerwehr)
- Regalanlagen können auf Wunsch übernommen werden
Technik & Sicherheit:
- Brandmeldeanlage
Alarmanlage mit Bewegungsmeldern
- teilweise elektrische Außenjalousien
- Serverraum mit separater Kühlung
- Automatische Be- und Entlüftung der Sanitäranlagen
Diese gepflegte und funktional durchdachte Gewerbeimmobilie bietet ideale Voraussetzungen für Unternehmen mit logistischem Schwerpunkt oder Versandhandelsaktivität sowie Produktion. Die gelungene Verbindung aus großzügiger Lagerfläche und modernen Büroeinheiten schafft effiziente Arbeitsabläufe und kurze Kommunikationswege. Eine Investition in diese Immobilie bedeutet eine zukunftssichere Standortentscheidung – durchdacht, praxisnah und sofort nutzbar.
Lassen Sie sich von den vielseitigen Nutzungsmöglichkeiten überzeugen – wir freuen uns auf Ihre Anfrage. Herr Stefan Siepmann steht Ihnen hierfür jederzeit gerne zur Verfügung
Ausstattung
- Baujahr Verschiedene (Ursprung 1956, Erweiterungen, 1978,1990 und 2001)
- Hochregallager für ca. 2.000 Europaletten und Anlieferungsoptionen
- Grundstücksfläche 10.108 m²
- Gesamtnutzfläche 4.131,63 m²
- Büro-/Verwaltungsfläche799,01 m²
- Neben-/Lagerflächen ca. 3.238 m²
- Stellplätze 30 Außenstellplätze direkt am Objekt
- Modernisierung(Technik & Innenausbau)
- Verfügbarkeit nach Vereinbarung
- Endenergieverbrauch kWh/(m²·a)
- Energieeffizienzklasse
- Energieträger
- Nutzungsart: Büro, Lager, Logistik
- zwei Zufahrten zur Gewerbeliegenschaft
- zwei Sektionaltore (Breite: 3,58 Meter, Höhe: 3,77 Meter + Breite 2,50 Meter, Höhe 4,60 Meter) Für Anlieferung + Abholung
- zwei separate Zugänge zu den Büros (über zwei Etagen angesiedelt)
- Expansionsfläche steht auf dem Gelände zur Verfügung
- IT-Anschlüsse: CAT 5
- Starkstromanschluss
- Alarmanlage
- Brandmeldeanlage
- Hallen (Teilbereiche mit Fußbodenheizung)
- Traglast Hallenböden 2,5 Tonnen
Sonstiges
Der Kaufpreis für die Immobilie beträgt 2.300.000,00 € zuzüglich der vom Käufer zu zahlenden Provision in Höhe von 3,57 % inkl. gesetzl. Mehrwertsteuer. Wir sind vom Eigentümer allein beauftragt, Verhandlungen mit Interessenten zu führen.
Der Makler-Vertrag mit uns kommt durch schriftliche Vereinbarung oder durch die Inanspruchnahme unserer Maklertätigkeit auf der Basis des Objekt-Exposés und seiner Bedingungen zustande. Die Käufercourtage ist bei notariellem Vertragsabschluss verdient und fällig. Grunderwerbsteuer, Notar- und Gerichtskosten trägt der Käufer. Sollte das von uns nachgewiesene Objekt bereits bekannt sein, teilen Sie uns dies bitte unverzüglich mit. Die Weitergabe dieses Exposés an Dritte ohne unsere Zustimmung löst gegebenenfalls Courtage- bzw. Schadensersatzansprüche aus.
Kleingedrucktes:
Alle Angaben basieren ausschließlich auf Informationen, die uns von unserem Auftraggeber übermittelt wurden. Wir übernehmen keine Gewähr für die Vollständigkeit, Richtigkeit und Aktualität dieser Angaben. Zwischenverkauf bleibt vorbehalten.
Lage
Die Gewerbeimmobilie befindet sich am Rande von Aufderhöhe, einen verkehrsgünstig gelegenen Stadtteil Solingens in Richtung der Stadtmitte. Die Lage zeichnet sich durch eine gut ausgebaute Infrastruktur und schnelle Erreichbarkeit sowohl innerstädtisch als auch überregional aus – ein klarer Standortvorteil für Unternehmen mit logistischem Fokus oder Kundenverkehr.
In direkter Umgebung dominieren kleinere Gewerbebetriebe, Handwerksunternehmen sowie vereinzelt zweigeschossige Wohn- und Mischnutzung. Die Anbindung an die Autobahn A3 (Anschlussstelle Solingen) erfolgt über die B229 und ist in rund 10 Fahrminuten realisierbar – ideal für den schnellen Zugang zu den wirtschaftsstarken Regionen Düsseldorf, Köln und dem Bergischen Land.
Einkaufsmöglichkeiten, Gastronomie sowie Dienstleister des täglichen Bedarfs befinden sich in fußläufiger Nähe. Die Solinger Innenstadt mit einem breiten Angebot an Einzelhandel, Behörden und Versorgungsstrukturen ist in wenigen Minuten erreichbar.
Für Mitarbeiterinnen und Mitarbeiter bietet die naturnahe Umgebung rund um das beliebte Heidberg-Tal eine attraktive Möglichkeit zur Erholung in Pausen oder nach Feierabend. Auch Haltestellen des ÖPNV befinden sich in komfortabler Reichweite und sorgen für eine gute Erreichbarkeit auch ohne Individualverkehr.
Diese Lage vereint wirtschaftliche Effizienz mit funktionaler Infrastruktur – ein durchdachter Standort für moderne Gewerbenutzung.
42655 Solingen, Deutschland (auf Google Maps ansehen)

































