Aktuelle Immobilien.
Startseite > Kauf > Immobilienangebot
Charme und moderner Komfort. Saniertes Fachwerk-Denkmal.
42657 Solingen, Etagenwohnung zum Kauf
Kontaktdaten
-
NameHerr Stefan Siepmann
-
FirmaKUBIKOM Immobilien GmbH
-
AnschriftKeldersstr. 6
42697 Solingen -
E-Mail
-
E-Mail
-
Telefon
-
Telefon
-
Mobil
Objektdaten
-
Objekt IDSTS 2272
-
ObjekttypenEtagenwohnung, Wohnung
-
Adresse42657 Solingen
-
Wohnfläche ca.195,02 m²
-
Grundstück ca.585 m²
-
Zimmer5
-
Schlafzimmer0,0
-
Badezimmer2
-
Separate WC1
-
Wohneinheiten1
-
Terrassen1
-
Baujahr1800
-
Verfügbar abnach Vereinbarung
-
Stellplatz:2 Stellplätze
-
Käuferprovision3,57% inkl. MwSt.
-
Kaufpreis498.000 EUR
Ausstattung / Merkmale
- ✓ Kamin
- ✓ Separates WC
- ✓ Stellplatz
- ✓ Teilunterkellert
- ✓ Terrasse
Energieausweis
-
Energieausweisnicht erforderlich
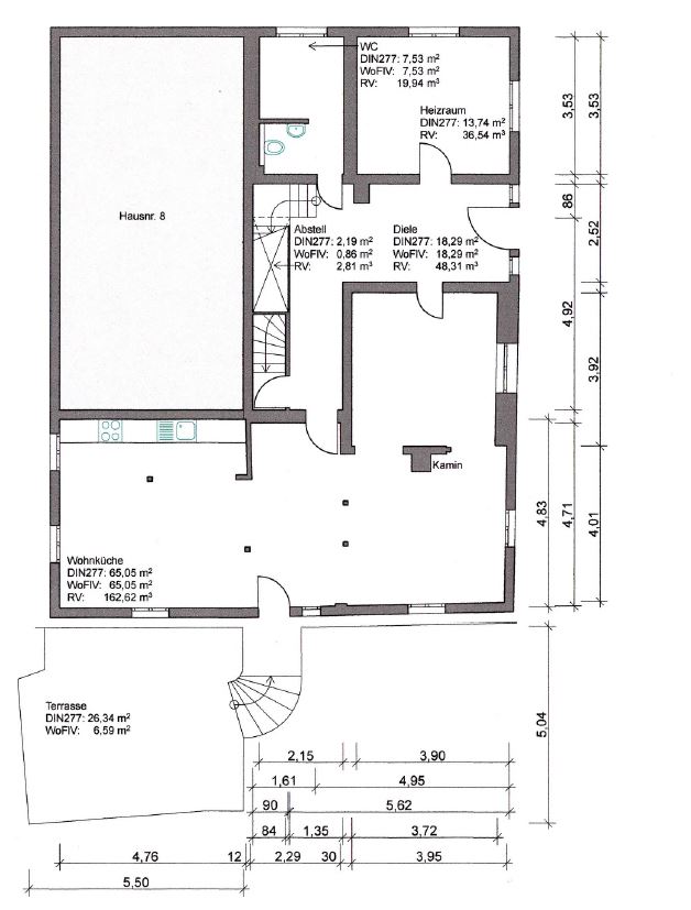
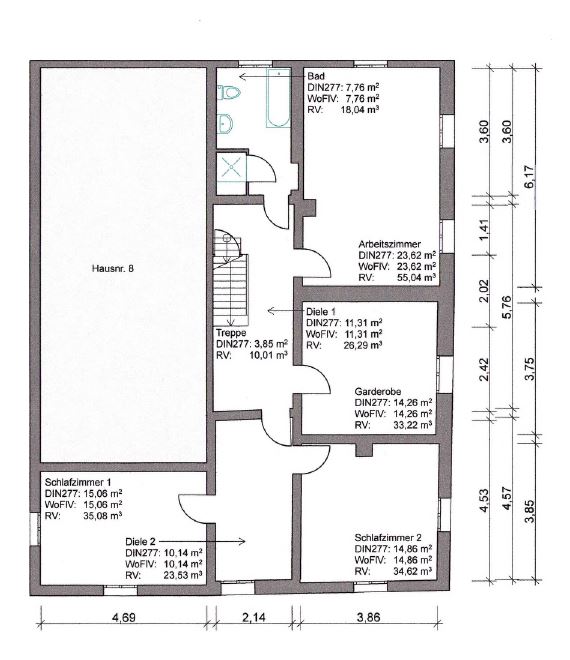
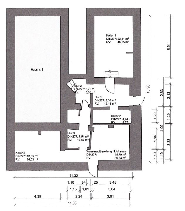
Objektbeschreibung
Beschreibung
Tauchen Sie ein in die Geschichte und das besondere Ambiente dieser denkmalgeschützten Fachwerkimmobilie ca. aus dem Jahr 1800. Die in diesem charmanten Zweifamilienhaus angebotene Wohneinheit ist nach WEG unterteilt und vereint historische Details mit modernen Annehmlichkeiten. Aufwendig und mit großem Augenmerk auf den Erhalt der Substanz saniert, präsentiert sich dieses Haus als exklusive Wohnlösung für Liebhaber, die zugleich den Komfort zeitgemäßer Standards schätzen.
Das Fachwerkhaus unterliegt dem Denkmalschutz im Außen- und Innenbereich und zeugt von der meisterhaften Handwerkskunst vergangener Zeiten. Bereits 1972 wurde das Dach erneuert, während die umfangreiche Sanierung im Jahr 2006 den Wohnkomfort auf ein neues Niveau hob. Dabei wurden zahlreiche Elemente modernisiert, um die historische Substanz mit modernen Standards zu verbinden.
Im Erdgeschoss erwartet Sie ein Wohnbereich, der durch die verlegte Eichendiele und den Kamin eine besonders warme und authentische Ausstrahlung erhält. Der großzügige Wohnbereich bietet direkten Zugang zur sonnigen, nach Südwesten ausgerichteten Terrasse, die zu entspannten Stunden im Freien einlädt und den perfekten Rückzugsort im Grünen bietet. Das Obergeschoss besticht durch Lerchendielen, die den historischen Charme unterstreichen, während einige Bereiche für zusätzliche Flexibilität mit hochwertigem Laminat ausgestattet wurden. Die harmonische Gestaltung zieht sich durch alle Räume und schafft ein stilvolles Gesamtbild.
Das Haus bietet zwei direkt vor der Haustür gelegene Stellplätze, die bequem und praktisch angeordnet sind. Zudem existiert im Dachgeschoss eine Ausbaureserve, die Potenzial für weiteren Wohnraum oder ein individuelles Atelier eröffnet – ideal für zukünftige Entwicklungen und persönliche Wohnideen.
Erleben Sie die perfekte Mischung aus Geschichte und Modernität in einer unvergleichlichen Lage – vereinbaren Sie noch heute einen Besichtigungstermin und lassen Sie sich von diesem außergewöhnlichen Anwesen inspirieren! Hierfür steht Ihnen Herr Stefan Siepmann jederzeit gerne zur Verfügung.
Ausstattung
Sanierung 2006–2008
- Ringbalken an Einfahrtseite erneuert und Wand neu aufgemauert
- Beide Kamine durch Fachunternehmen mit Edelstahlrohren saniert
- Gas- und Wasseranschlüsse erneuert
- 16 neue Holz-Sprossen Fenster
- Terassentür neu mit Oberlicht
- Sämtliche Böden/ Wände und Decken neu (Fußbodenverlegplatte/ Gipskarton)
- Türen und Türrahmen erneuert – Holz (Außer Schlafzimmer)
- Außenwände mit Holzwoll-Platten gedämmt
- Elektroleitungen komplett erneuert (bis auf den Spitzboden und Keller)
- Sämtliche Räume mit Sat-Empfang
- Alle wasserführenden Leitungen erneuert
- Komplette Heizungs-Anlage und Rohre erneuert
- Hark Kaminofen (unbefristet) mit Wärmetauscher und 500 Liter Pufferspeicher zur Einspeisung in die Heizungsanlage
- Paterre – Eichendielen 23 cm
- Flur – Zementfliesen von VIA
- Oben – Lärchenholzdielen und Laminat
- Alle Räume mit Altbaufußleisten Holz
- Badezimmer und Toiletten Neu DURAVIT und Geberit
- Kellerwände neu aufgemauert und Decken in Teilbereichen gedämmt
2010
- Fachwerk neu gestrichen
- Terrasse mit Naturstein gepflastert
- Treppe restauriert
- Stromkabel für Terrasse und Garten verlegt
2012
- Haustür erneuert
2019
- Kanalanschluss
2020
- Schlagläden auf Süd- und Westseite erneuert
2023
- Dachfenster erneuert
- Fensterbrett mit Metall verkleidet
Sonstiges
Der Kaufpreis für die Immobilie beträgt 498.000,00€ zuzüglich der vom Käufer zu zahlenden Provision in Höhe von 3,57 % inkl. gesetzl. Mehrwertsteuer. Wir sind vom Eigentümer allein beauftragt, Verhandlungen mit Interessenten zu führen.
Der Makler-Vertrag mit uns kommt durch schriftliche Vereinbarung oder durch die Inanspruchnahme unserer Maklertätigkeit auf der Basis des Objekt-Exposés und seiner Bedingungen zustande. Die Käufercourtage ist bei notariellem Vertragsabschluss verdient und fällig. Grunderwerbsteuer, Notar- und Gerichtskosten trägt der Käufer. Sollte das von uns nachgewiesene Objekt bereits bekannt sein, teilen Sie uns dies bitte unverzüglich mit. Die Weitergabe dieses Exposés an Dritte ohne unsere Zustimmung löst gegebenenfalls Courtage- bzw. Schadensersatzansprüche aus.
Kleingedrucktes:
Alle Angaben basieren ausschließlich auf Informationen, die uns von unserem Auftraggeber übermittelt wurden. Wir übernehmen keine Gewähr für die Vollständigkeit, Richtigkeit und Aktualität dieser Angaben. Zwischenverkauf bleibt vorbehalten.
Lage
Willkommen im beliebten Solinger Stadtteil Höhscheid, wo sich dieses einladende Einfamilienhaus in einer ruhigen und verkehrsberuhigten Anliegerstraße befindet.
In idyllischer Hofschaftslage bietet das Anwesen ein unvergleichliches Wohngefühl und ist ein wahres Schmuckstück.
Von Ihrem neuen Zuhause erreichen Sie das Stadtzentrum von Solingen in nur wenigen Minuten. Die Innenstadt bietet eine Vielzahl an Einkaufsmöglichkeiten, von charmanten kleinen Boutiquen bis hin zu größeren Geschäften, sodass Sie alles Notwendige für den Alltag schnell und bequem erledigen können. Das gastronomische Angebot umfasst zahlreiche Restaurants und Cafés, die zum Genießen und Verweilen einladen, während eine Apotheke sowie diverse medizinische Einrichtungen ebenfalls fußläufig erreichbar sind.
Die hervorragende Anbindung an den öffentlichen Nahverkehr ermöglicht es Ihnen, ohne Auto mobil zu bleiben und problemlos die umliegenden Stadtteile sowie die Nachbarstädte Leichlingen, Witzhelden und Langenfeld zu erreichen. Diese Städte sind zudem in kurzer Zeit mit dem Auto zugänglich und eröffnen weitere Möglichkeiten für Einkäufe, Freizeitaktivitäten und berufliche Wege.
Die Lage im grünen Herzen von Höhscheid bietet eine besonders hohe Lebensqualität und schafft eine perfekte Balance zwischen Stadtleben und Natur. In direkter Umgebung befinden sich zahlreiche Spazierwege und Joggingstrecken, die durch die malerische Landschaft und die umliegenden Grünflächen führen. Ob für sportliche Aktivitäten, entspannte Spaziergänge oder ausgedehnte Wanderungen – das naturnahe Umfeld bietet Raum für Erholung und Freizeit.
Entdecken Sie ein Zuhause, das mit einer ausgezeichneten Lage, einem hohen Freizeitwert und der Nähe zur Natur begeistert. Dieses Ein- bis Zweifamilienhaus verbindet den Komfort des urbanen Lebens mit der Ruhe und Gelassenheit einer grünen Umgebung – eine seltene Kombination, die Ihr neues Zuhause zu einem besonderen Ort macht.
42657 Solingen, Deutschland (auf Google Maps ansehen)




























