Referenzen.
Startseite > Verkauf > Referenzen
Handwerker aufgepasst! Viel Potenzial + Optionen. Charmantes Einfamilienhaus mit großem Grundstück.
42119 Wuppertal, Einfamilienhaus zum Kauf
Referenz
Dieses Objekt wurde bereits erfolgreich vermittelt.
Objektdaten
-
Objekt IDEJ1910
-
ObjekttypenEinfamilienhaus, Haus
-
Adresse42119 Wuppertal
-
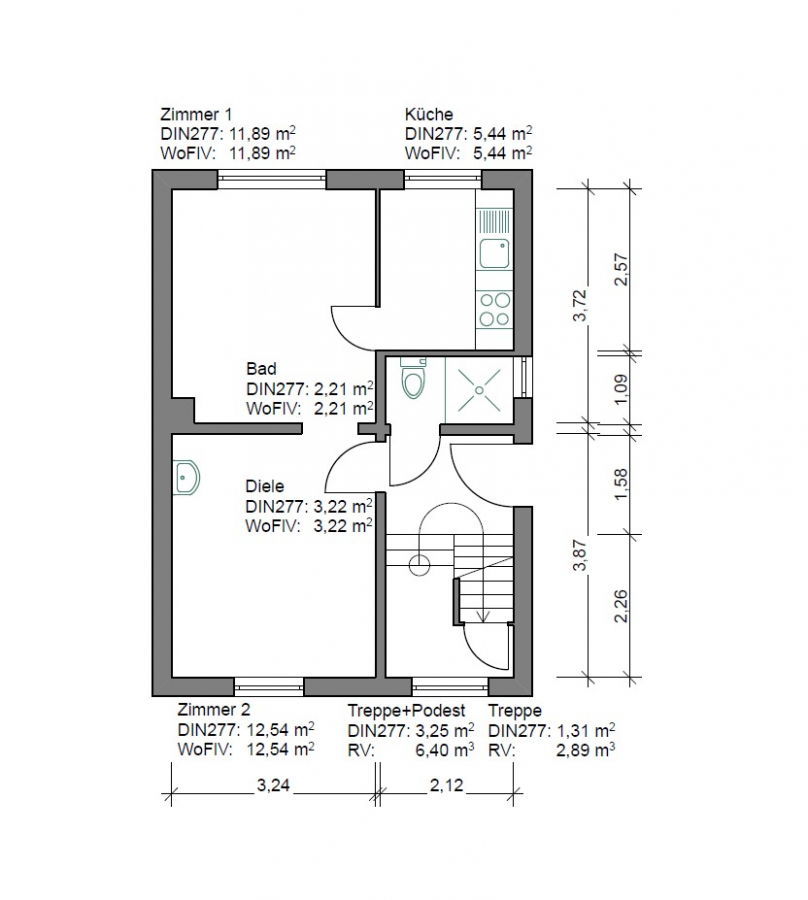
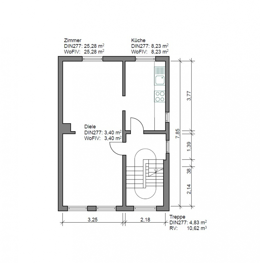
Wohnfläche ca.72,21 m²
-
Grundstück ca.499 m²
-
Zimmer5
-
Schlafzimmer0,0
-
Badezimmer1
-
Terrassen1
-
HeizungsartEtagenheizung
-
Wesentlicher EnergieträgerStrom
-
Baujahr1958
-
Verfügbar absofort
-
Stellplatz:2 Stellplätze
Ausstattung / Merkmale
- ✓ Keller
- ✓ Stellplatz
- ✓ Terrasse
Objektbeschreibung
Beschreibung
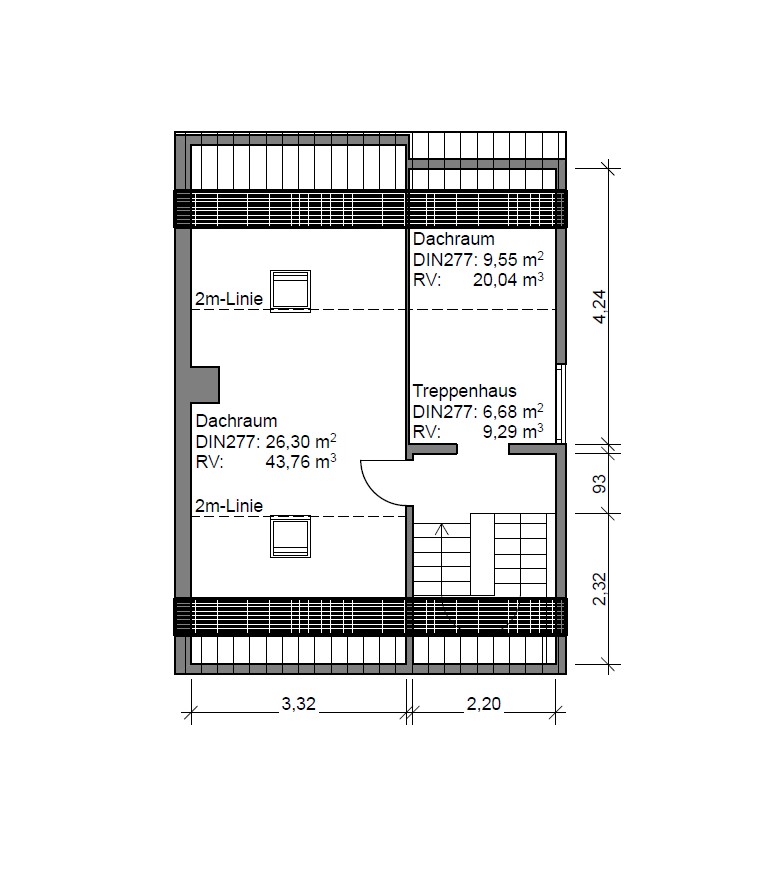
Diese Immobilie aus dem Jahr 1950–1965 (geschätzt – es liegen keine Unterlagen im Bauamt vor) befindet sich auf einem großzügigen, 499 m² großen Grundstück in ruhiger Wohnlage von Wuppertal-Elberfeld. Das einseitig angebaute Einfamilienhaus erstreckt sich über zwei Vollgeschosse zuzüglich Dachgeschoss und eines vollunterkellerten Untergeschosses mit Gartenzugang und bietet eine Gesamtwohnfläche von ca. 72 m² mit Aubaupotential im Dachgeschoss.
Das Haus verfügt über zwei separate Eingänge, was flexible Nutzungsmöglichkeiten eröffnet. Die klare Struktur und das Volumen der Immobilie ermöglichen kreative Raumkonzepte und individuelle Wohnlösungen.
Derzeit präsentiert sich das Gebäude in einem stark sanierungsbedürftigen Zustand und bietet somit die ideale Grundlage für eine umfassende Ideen für modernen Wohnstandard.
Das Untergeschoss bietet nicht nur klassische Nutzflächen wie Hausanschlüsse und Lagerräume, sondern auch einen direkten Zugang zum Garten, was die Nutzbarkeit dieser Ebene nochmals aufwertet – beispielsweise als Hobbyraum oder Werkstatt.
Das Grundstück selbst bietet vielfältige Gestaltungsoptionen: Der Gartenbereich hinter und neben dem Haus ist großflächig, von altem Strauchbestand durchzogen und in seiner Substanz ansprechend, jedoch ebenfalls stark überholungsbedürftig. Mit etwas Liebe und Planung lässt sich hier eine grüne Oase schaffen.
Ein besonderes Plus ist die Zufahrt über die Rückseite des Grundstücks, die eine direkte Erschließung bis ans Haus ermöglicht. Eine nützliche Garage befindet sich ebenfalls im Untergeschoss des Hauses. Ergänzt wird die Erschließung durch einen seitlichen Aufgang zum Haupteingang des Hauses.
Die Beheizung des Hauses erfolgte bisher über Nachtstromgeräte, die Warmwasseraufbereitung erfolgte über Durchlauferhitzer.
Insgesamt bietet dieses Anwesen ein enormes Potenzial für Bauherren mit Ideenreichtum und Liebe zum Detail. Ob stilvoll modernisiert oder klassisch renoviert – hier können Sie Ihre Wohnträume nach individuellen Vorstellungen verwirklichen.
Gerne präsentieren wir Ihnen dieses besondere Objekt bei einer persönlichen Besichtigung. Für eine Terminvereinbarung steht Ihnen Frau Ellen Jaros jederzeit zur Verfügung.
Sonstiges
Der Kaufpreis für die Immobilie beträgt 239.000,00 € zuzüglich der vom Käufer zu zahlenden Provision in Höhe von 3,57 % inkl. gesetzl. Mehrwertsteuer. Wir sind vom Eigentümer allein beauftragt, Verhandlungen mit Interessenten zu führen.
Der Makler-Vertrag mit uns kommt durch schriftliche Vereinbarung oder durch die Inanspruchnahme unserer Maklertätigkeit auf der Basis des Objekt-Exposés und seiner Bedingungen zustande. Die Käufercourtage ist bei notariellem Vertragsabschluss verdient und fällig. Grunderwerbsteuer, Notar- und Gerichtskosten trägt der Käufer. Sollte das von uns nachgewiesene Objekt bereits bekannt sein, teilen Sie uns dies bitte unverzüglich mit. Die Weitergabe dieses Exposés an Dritte ohne unsere Zustimmung löst gegebenenfalls Courtage- bzw. Schadensersatzansprüche aus.
Kleingedrucktes:
Alle Angaben basieren ausschließlich auf Informationen, die uns von unserem Auftraggeber übermittelt wurden. Wir übernehmen keine Gewähr für die Vollständigkeit, Richtigkeit und Aktualität dieser Angaben. Zwischenverkauf bleibt vorbehalten.
Lage
Das Einfamilienhaus befindet sich in ruhiger und familienfreundlicher Lage im beliebten Stadtteil Elberfeld, einer der lebendigsten und kulturell vielseitigsten Gegenden Wuppertals. Die Straße liegt in einem gewachsenen Wohngebiet mit viel Grün und gepflegter Nachbarschaft – ideal für Menschen, die naturnah wohnen und zugleich die Vorzüge der Stadt genießen möchten.
Nur wenige Minuten entfernt lädt der Botanische Garten Wuppertal auf dem Hardtberg zu ausgedehnten Spaziergängen, entspannter Naherholung oder kleinen Ausflügen mit der Familie ein. Der wunderschön angelegte Park mit Gewächshäusern, historischen Anlagen und einem atemberaubenden Ausblick über die Stadt zählt zu den Highlights in der Umgebung.
Die Anbindung an das überregionale Verkehrsnetz ist hervorragend: In nur ca. 5 Minuten erreichen Sie die Auffahrt zur A46, die Sie schnell Richtung Düsseldorf, Neuss oder Hagen führt. Auch die Auffahrt zur A1 ist in etwa 10 bis 12 Minuten erreichbar – ideal für Pendler und alle, die mobil und flexibel bleiben möchten. Der Wuppertaler Hauptbahnhof ist in ca. 10 Fahrminuten erreichbar und bietet Anschluss an den Nah- und Fernverkehr.
Elberfeld selbst bietet alles, was das urbane Herz begehrt: Eine lebendige Innenstadt mit dem Luisenviertel, bekannt für seine charmanten Altbauten, kreativen Cafés, kleinen Boutiquen und gehobenen Restaurants. Die Fußgängerzone mit zahlreichen Einkaufsmöglichkeiten sowie das City-Arkaden-Einkaufszentrum sorgen für besten Komfort im Alltag. Auch Kulturinteressierte kommen auf ihre Kosten – mit dem Von der Heydt-Museum, dem Wuppertaler Schauspielhaus oder einem Besuch der berühmten Schwebebahn.
Schulen, Kindergärten, Ärzte und alle Einrichtungen des täglichen Bedarfs befinden sich in direkter oder naher Umgebung. Die Lage vereint somit Ruhe, Natur und städtische Vielfalt auf ideale Weise – ein perfekter Ort zum Wohnen und Wohlfühlen für Familien, Paare und Individualisten.
42119 Wuppertal, Deutschland (auf Google Maps ansehen)


























