Aktuelle Immobilien.
Startseite > Kauf > Immobilienangebot
Gräfrath.Historisches Wohnhaus mit genehmigter Erweiterungsoption–Gestalten Sie Ihr eigenes Kapitel.
42653 Solingen, Einfamilienhaus zum Kauf
Kontaktdaten
-
NameHerr Michael Sorgnit
-
FirmaKUBIKOM Immobilien GmbH
-
AnschriftKeldersstr. 6
42697 Solingen -
E-Mail
-
E-Mail
-
Telefon
-
Telefon
Objektdaten
-
Objekt IDMS1767
-
ObjekttypenEinfamilienhaus, Haus
-
Adresse42653 Solingen
-
Wohnfläche ca.160 m²
-
Grundstück ca.941 m²
-
Zimmer4
-
Schlafzimmer0,0
-
Badezimmer0,0
-
Terrassen1
-
Verfügbar absofort
-
Carport:2 Stellplätze
-
Käuferprovision3,57% inkl. MwSt.
-
Kaufpreis249.000 EUR
Ausstattung / Merkmale
- ✓ Teilunterkellert
- ✓ Terrasse
Energieausweis
-
EnergieausweistypBedarfsausweis
-
Gültig bis10.12.2034
-
GebäudeartWohngebäude
-
Baujahr lt. Energieausweis1900
-
PrimärenergieträgerGas
-
Endenergiebedarf637,60 kWh/(m²·a)
-
EnergieeffizienzklasseH
Objektbeschreibung
Beschreibung
Dieses historische Wohnhaus auf einem südlich ausgerichteten Hanggrundstück vereint individuellen Gestaltungsspielraum mit einem genehmigten Rahmen für die bauliche Weiterentwicklung. Mit einer Wohnfläche von ca. 160 m², verteilt auf zwei Etagen, eröffnet sich Ihnen hier die seltene Gelegenheit, ein Objekt mit Charakter und Historie nach Ihren Vorstellungen zu sanieren, umzubauen oder zu erweitern. Ein positiv beschiedener planungsrechtlicher Vorbescheid durch den Stadtdienst Bauaufsicht der Stadt Solingen liegt vor und bildet die Grundlage für eine rechtssichere Erweiterung des Gebäudes.
Sanierungsobjekt mit Bestandsschutz und genehmigter Perspektive
Das ursprüngliche Baujahr des Hauses liegt über 140 Jahre zurück. Vermutlich in Fachwerkbauweise errichtet und über Jahrzehnte immer wieder angepasst, existieren heute keine vollständigen Bauunterlagen – mit Ausnahme eines historischen Lageplans. Dennoch ist das Gebäude dem Solinger Bauamt bekannt und kann in seiner aktuellen Form als baurechtlich gesichert gelten. Der genehmigte Vorbescheid bestätigt: Der Bestand ist zulässig, eine Veräußerung auf dieser Basis uneingeschränkt möglich.
Hinzu kommt: Das Haus ist bereits an den städtischen Kanal sowie die Trinkwasserversorgung angeschlossen. Ein Glasfaseranschluss wurde im Jahr 2022 in den Keller gelegt – ein bedeutender Vorteil für Homeoffice-Nutzer oder IT-Selbstständige. Der Mobilfunkempfang ist trotz der Tallage ebenfalls sehr gut. Ein Gasanschluss besteht über einen Flüssiggastank; ein städtischer Erdgaszugang ist nicht vorhanden.
Die bestehende Scheune wurde bislang als Garage genutzt und bietet entsprechend Potenzial zur weiteren Nutzung oder Umgestaltung.
Erweiterungsoption mit Planungsfreiheit
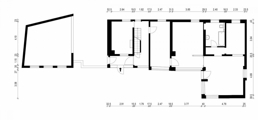
Ein ortsansässiger Architekt hat auf Basis des Bestands ein durchdachtes Konzept entwickelt, welches dem genehmigten Vorbescheid zugrunde liegt. Dieses sieht im Erdgeschoss u. a. eine großzügige Wohnküche, Wohnbereich, Hauswirtschaftsraum und Bad vor – mit direktem Zugang zum Garten. Im Obergeschoss entsteht Raum für drei Schlafzimmer, ein großes Bad und ein Ankleidebereich – modern gedacht, aber im historischen Rahmen.
Die beigefügten Unterlagen zeigen beispielhaft, was möglich ist – sie bieten Orientierung, kein Muss. Käufer*innen bleibt die volle Freiheit, das Vorhaben gemäß eigenem Bedarf und Budget weiterzuentwickeln.
Die Highlights im Überblick:
Positiv beschiedener planungsrechtlicher Vorbescheid liegt vor
Bestand baurechtlich gesichert
Geplante Erweiterung bereits konzeptuell durchdacht
Abstandsflächenregelung über Baulast oder Grundstücksvereinigung lösbar
Kunststofffenster mit Zweifachverglasung vorhanden
Gasanschluss über Flüssiggastank vorhanden (kein Erdgasanschluss)
Glasfaseranschluss seit 2022 im Keller
Sehr guter Mobilfunkempfang trotz Tallage
Städtischer Kanalanschluss und Trinkwasserversorgung
Scheune bislang als Garage genutzt, Umnutzung denkbar
Hanglage mit Süd-Ausrichtung und Gartenanteil
Großzügige Deckenhöhen und charmante Raumstruktur
Diese Immobilie eignet sich für anspruchsvolle Eigennutzer*innen, die Freude an der Verbindung von Alt und Neu haben – und ein Zuhause gestalten möchten, das sowohl Substanz als auch Zukunftsperspektive bietet. Der genehmigte Rahmen erleichtert Planung und Investition erheblich.
Gleichzeitig bleibt Raum für eigene Wünsche: Ob Sanierung, Umbau oder spätere Ersatzbebauung – alles ist offen. Im Falle eines konkreten Bauantrags stehen wir Ihnen gerne beratend zur Seite. Bitte beachten Sie: Im Genehmigungsverfahren sind auch Standsicherheitsnachweis und energetische Nachweise zu erbringen.
Die detaillierten Unterlagen zum Vorbescheid sowie das Ausbaukonzept sind Teil dieses Exposés.
Ausstattung
Objektdaten & Nutzung
Historisches Wohnhaus mit über 140 Jahren Geschichte
Wohnfläche: ca. 160 m² auf zwei Etagen
Südlich ausgerichtetes Hanggrundstück
Grundstück mit Gartenanteil
Baurecht & Erweiterung
Positiv beschiedener planungsrechtlicher Vorbescheid durch die Stadt Solingen liegt vor
Bestand ist baurechtlich gesichert, Verkauf auf dieser Grundlage möglich
Geplante Erweiterung konzeptuell durch Architekten ausgearbeitet
Geplante Nutzung lt. Konzept (nicht bindend)
EG: großzügige Wohnküche, Wohnbereich, Bad, Hauswirtschaftsraum, direkter Gartenzugang
OG: drei Schlafzimmer, großes Bad, Ankleidezimmer
Konzept als Beispiel enthalten, individuelle Planung weiterhin möglich
Ausstattung & Potenzial
Kunststofffenster mit Zweifachverglasung vorhanden
Gasanschluss vorhanden
Glasfaseranschluss im Keller vorhanden
Scheune mit Umnutzungspotenzial
Großzügige Deckenhöhen
Charmante Raumstruktur mit historischem Charakter
Sonstiges
Der Kaufpreis für die Immobilie beträgt 249.000,00 € zuzüglich der vom Käufer zu zahlenden Provision in Höhe von 3,57 % inkl. gesetzl. Mehrwertsteuer. Wir sind vom Eigentümer allein beauftragt, Verhandlungen mit Interessenten zu führen.
Der Makler-Vertrag mit uns kommt durch schriftliche Vereinbarung oder durch die Inanspruchnahme unserer Maklertätigkeit auf der Basis des Objekt-Exposés und seiner Bedingungen zustande. Die Käufercourtage ist bei notariellem Vertragsabschluss verdient und fällig. Grunderwerbsteuer, Notar- und Gerichtskosten trägt der Käufer. Sollte das von uns nachgewiesene Objekt bereits bekannt sein, teilen Sie uns dies bitte unverzüglich mit. Die Weitergabe dieses Exposés an Dritte ohne unsere Zustimmung löst gegebenenfalls Courtage- bzw. Schadensersatzansprüche aus.
Kleingedrucktes:
Alle Angaben basieren ausschließlich auf Informationen, die uns von unserem Auftraggeber übermittelt wurden. Wir übernehmen keine Gewähr für die Vollständigkeit, Richtigkeit und Aktualität dieser Angaben. Zwischenverkauf bleibt vorbehalten.
Lage
In einer der begehrtesten Lagen des traditionsreichen Stadtteils Solingen-Gräfrath gelegen, vereint diese Immobilie auf eindrucksvolle Weise naturnahe Ruhe mit urbaner Erreichbarkeit. Eingebettet in eine gepflegte Nachbarschaft aus Einfamilienhäusern mit großzügigen Grundstücken, befindet sich das Anwesen in einer verkehrsberuhigten Anliegerstraße, die den Charakter eines geschützten Rückzugsortes unterstreicht.
Bereits die Zufahrt – rund 800 Meter über von Wald gesäumte Wege und offene Felder – vermittelt ein Gefühl von Entschleunigung und Ankommen im Grünen. Umgeben von Wiesen, altem Baumbestand und einer wohltuenden Stille bietet diese Lage ideale Bedingungen für ein entspanntes, naturnahes Leben, fernab vom Alltagslärm – und doch nah genug am Puls der Stadt.
Das nur wenige Minuten entfernte Gräfrather Zentrum mit seinem denkmalgeschützten Marktplatz zählt zu den architektonischen und kulturellen Juwelen der Region. In stilvollen Cafés, gehobenen Restaurants und kleinen inhabergeführten Geschäften entfaltet sich ein Lebensgefühl, das historischen Charme mit moderner Lebensart verbindet. Ob Wochenmarkt, Kunsthandwerk, Theater oder Kulinarik – Gräfrath bietet ein lebendiges, niveauvolles Umfeld, das weit über die Stadtgrenzen hinaus geschätzt wird.
Trotz der abgeschiedenen Lage überzeugt die Umgebung durch eine gut ausgebaute Infrastruktur: Schulen, Kindergärten und Einkaufsmöglichkeiten sind bequem erreichbar, ebenso wie die Solinger Innenstadt mit weiteren Versorgungs- und Freizeitangeboten. Die umgebende Natur lädt zu ausgedehnten Spaziergängen, Laufrunden oder Fahrradtouren ein – etwa zur nahegelegenen Fauna, dem Gräfrather Lichtturm oder entlang der idyllischen Wanderwege des Bergischen Landes.
Auch beruflich mobile Menschen finden hier beste Voraussetzungen: Die A46 liegt nur wenige Fahrminuten entfernt und ermöglicht eine schnelle Anbindung nach Düsseldorf, Wuppertal, Köln oder Leverkusen. Der nahegelegene Bahnhof Solingen-Ohligs bietet zudem einen komfortablen Anschluss an den Regional- und Fernverkehr, inklusive ICE-Verbindung.
Diese Wohnlage bietet ein seltenes Maß an Lebensqualität – eine Symbiose aus ländlicher Exklusivität und städtischer Nähe, wie sie in der Region nur selten zu finden ist. Ideal für Familien oder anspruchsvolle Lebenskonzepte, die Privatsphäre, Natur und Anbindung harmonisch vereinen möchten.
42653 Solingen, Deutschland (auf Google Maps ansehen)























