Aktuelle Immobilien.
Startseite > Kauf > Immobilienangebot
Repräsentative Gewerbefläche mit hoher Sichtbarkeit und vielseitiger Nutzung in zentraler Lage.
42719 Solingen, Ladenlokal zur Miete
Kontaktdaten
-
NameHerr Henrik Rahlmeyer
-
AnschriftKeldersstr. 6
42697 Solingen -
E-Mail
-
E-Mail
-
Telefon
-
Telefon
-
Mobil
Objektdaten
-
Objekt IDHR2321
-
ObjekttypenEinzelhandel, Ladenlokal
-
Adresse42719 Solingen
-
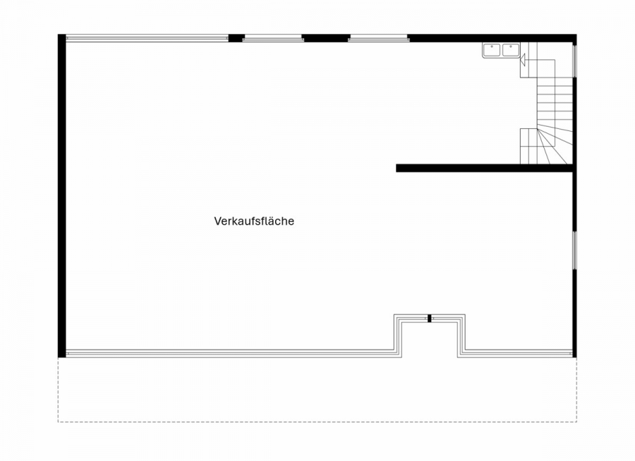
Nutzfläche ca.140 m²
-
Gesamtfläche ca.140 m²
-
Verkaufsfläche ca.140 m²
-
Zimmer0,0
-
Schlafzimmer0,0
-
Badezimmer0,0
-
Stellplatz:10 Stellplätze
-
Kaution6.000,00 EUR
-
Kaltmiete2.000,00 EUR
-
Betriebskosten brutto350,00 EUR
-
Gesamtbelastung brutto2.350,00 EUR
Ausstattung / Merkmale
- ✓ Stellplatz
Objektbeschreibung
Beschreibung
Diese Gewerbefläche zählt zu den etablierten Geschäftsadressen in Solingen und überzeugt durch ihre vielseitige Nutzbarkeit sowie eine repräsentative Ausstrahlung mit hochwertiger Ausstattung. Auf einer Fläche von rund 140 m² bietet sie ideale Rahmenbedingungen für unterschiedliche betriebliche Konzepte – ob im Einzelhandel, Dienstleistungssektor oder im Handwerks- und Bildungsbereich.
Der großzügige, offen gestaltete Hauptraum zeichnet sich durch eine klare Architektur und eine helle, freundliche Raumwirkung aus, wodurch ein modernes und zugleich funktionales Ambiente entsteht, das sich flexibel an verschiedene Nutzungsanforderungen anpassen lässt. Bislang wurde die Liegenschaft erfolgreich als Floristikgeschäft betrieben und genießt in der Umgebung einen hohen Bekanntheitsgrad – ein Umstand, von dem künftige Nutzerinnen und Nutzer unmittelbar profitieren können.
Im Jahr 2006 erfolgte eine umfassende Modernisierung. Dabei wurden unter anderem eine leistungsfähige Beschallungsanlage, eine moderne Außenbeleuchtung, ein neues Vordach sowie eine individuell steuerbare LED-Beleuchtung installiert. Die Fläche ist vollständig unterkellert und verfügt über einen großzügigen Lagerraum im Untergeschoss, der zusätzliche Nutz- und Abstellflächen bietet.
Auf der Rückseite der Immobilie befindet sich eine Zufahrt, die eine direkte und unkomplizierte Anlieferung ermöglicht. In der belebten Umgebung stellt die Verfügbarkeit von zehn Stellplätzen am Objekt einen bedeutenden Vorteil für Mitarbeitende, Kundschaft und Lieferverkehre dar.
Für weitere Informationen oder eine Besichtigung steht Ihnen Herr Henrik Rahlmeyer jederzeit zur Verfügung.
Ausstattung
- Hohe Sichtbarkeit und gute Erreichbarkeit
- Helle und freundliche Raumwirkung
- Beschallungsanlage (Einbau 2006)
- Einzeln steuerbare LED-Beleuchtung
- Außenbeleuchtung
- 10 Stellplätze am Objekt
- Vollunterkellert
Sonstiges
Die Nettokaltmiete beträgt 2.000,00€ zzgl. 350,00€ Nebenkostenvorauszahlung zzgl. der gesetzlichen MwSt.
Die Kaution beläuft sich auf 6.000€. Dies entspricht dem Betrag von 3 Nettokaltmieten (Gesamtbetrag).
Der schnellste Weg zu uns ist nur einen Klick entfernt. Nutzen Sie bitte die Schaltfläche „Nachricht“ und schreiben Sie uns darüber eine E-Mail.
Da dies ein weitgehend automatisierter Prozess ist, erhalten Sie so kurzfristig die Adresse der Immobilie und können diese anschließend diskret von außen besichtigen.
Lage
Dieses Ladenlokal überzeugt durch seine attraktive Lage im Herzen Solingens. Der Standort verbindet urbanes Leben mit einer angenehm grünen Umgebung und bietet beste Voraussetzungen für eine Nutzung im Einzelhandel oder als Dienstleistungsfläche. Die zentrale Position sorgt für eine hohe Sichtbarkeit im Stadtbild und schafft ein Umfeld, das sowohl Kunden als auch Mitarbeitende anspricht. Durch die gute Einbindung in das lokale Geschäftsumfeld ergibt sich ein idealer Standort für Unternehmen, die Wert auf Präsenz und Erreichbarkeit legen.
Die direkte Umgebung zeichnet sich durch eine lebendige Nachbarschaft und eine ausgewogene Mischung aus Wohn- und Geschäftsbebauung aus. Zahlreiche Einkaufsmöglichkeiten, Cafés, Restaurants und Dienstleister befinden sich in unmittelbarer Nähe und sorgen für eine konstant hohe Kundenfrequenz.
Die verkehrstechnische Anbindung ist hervorragend: Öffentliche Verkehrsmittel befinden sich in fußläufiger nähe und auch der Solinger Hauptbahnhof ist in kurzer Zeit mit dem Bus. Über die Autobahnen A3 und A46 bestehen zudem schnelle Verbindungen nach Düsseldorf, Köln und Wuppertal. Damit ist das Ladenlokal optimal in das regionale und überregionale Verkehrsnetz eingebunden.
42719 Solingen, Deutschland (auf Google Maps ansehen)






