Aktuelle Immobilien.
Startseite > Kauf > Immobilienangebot
Helle, großzügige Büroetage mit flexibler Raumaufteilung in zentraler Lage von Solingen.
42655 Solingen, Bürohaus zur Miete
Kontaktdaten
-
NameHerr Henrik Rahlmeyer
-
AnschriftKeldersstr. 6
42697 Solingen -
E-Mail
-
E-Mail
-
Telefon
-
Telefon
-
Mobil
Objektdaten
-
Objekt IDHR2317
-
ObjekttypenBüro/Praxis, Bürohaus
-
Adresse42655 Solingen
-
Bürofläche ca.212 m²
-
Gesamtfläche ca.212 m²
-
Zimmer0,0
-
Schlafzimmer0,0
-
Badezimmer0,0
-
Baujahr1997
-
Zustandgepflegt
-
Verfügbar absofort
-
Mieterprovision (gewerblich)3.027,36 € inkl. MwSt.
-
Kaution3.816,00 EUR
-
Kaltmiete1.272,00 EUR
-
Betriebskosten brutto500,00 EUR
-
Gesamtbelastung brutto1.772,00 EUR
Ausstattung / Merkmale
- ✓ Teppichboden
Energieausweis
-
EnergieausweistypVerbrauchsausweis
-
Gültig bis10.11.2035
-
GebäudeartNichtwohngebäude
-
Baujahr1997
-
PrimärenergieträgerGas
-
Endenergieverbrauch Strom27,80 kWh/(m²·a)
-
Endenergieverbrauch Wärme63,50 kWh/(m²·a)
Objektbeschreibung
Beschreibung
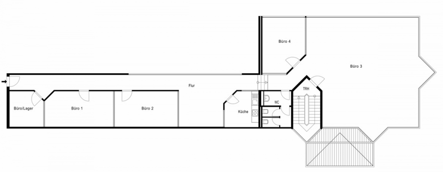
Diese ansprechende Büroetage im 1. Obergeschoss einer gepflegten Gewerbeeinheit bietet ideale Voraussetzungen für Ihr neues Büro. Die ca. 212 m² große Fläche überzeugt durch eine durchdachte Raumaufteilung, helle Arbeitsbereiche und vielfältige Nutzungsmöglichkeiten.
Der Zugang erfolgt über ein separates Treppenhaus mit eigenem Eingang. Von dort führt ein Flur in das erste Zimmer, welches sich flexibel als Büro oder auch als Lager- bzw. Archivfläche nutzen lässt. Im weiteren Verlauf des Flurs befinden sich zwei zusätzliche Büroräume.
Im hinteren Bereich öffnet sich der Flur zur Fensterseite hin und bietet ausreichend Platz für einen Ess- oder Aufenthaltsbereich. Direkt angrenzend befindet sich die Teeküche. Am Ende des Flurs befindet sich ein großzügiges, tageslichtdurchflutetes Büro, das durch seine weiträumige Gestaltung zahlreiche Nutzungskonzepte ermöglicht. Ein weiteres, durch Verglasung abgetrenntes Büro schafft Privatsphäre bei gleichzeitig angenehmer Transparenz und Lichtdurchlässigkeit.
Die Büroeinheit verfügt zudem über getrennte Damen- und Herren-WCs mit gemeinsamem Vorraum. Außenliegende Jalousien und die vorhandene Kaltwasseranlage gewährleisten ein angenehmes Raumklima. Die Räumlichkeiten – mit Ausnahme der Teeküche und des WCs – sind alle mit Teppichboden ausgestattet.
Sollten Sie Fragen haben, oder einen Besichtigungstermin wünschen, steht Ihnen Herr Henrik Rahlmeyer jederzeit gerne zur Verfügung.
Ausstattung
- Außenliegender Sonnenschutz
- Kaltwasseranlage
- PKW-Stellplätze zusätzlich anmietbar
- Funkklingel vorhanden
- DSL-Anschluss (100 Mbit/s), Nutzung über WLAN
- WC D/H
- Raumaufteilung flexibel
- Verfügbar ab sofort
Sonstiges
Die Nettokaltmiete beträgt 1.272,00€ zzgl. 500,00€ Nebenkostenvorauszahlung zzgl. der gesetzlichen MwSt.
Die Kaution beläuft sich auf 3.816,00€ (dies entspricht drei Nettokaltmieten).
Bei Abschluss des Mietvertrags erhält der Makler vom Mieter eine Provision in Höhe von 2,38 Monatsmieten inkl. gesetzlicher MwSt. vom Netto-Mietpreis. Bei Abschluss eines 5-Jahres-Mietvertrags beträgt die Provision 3,57 Monatsmieten inkl. gesetzlicher MwSt. vom Netto-Mietpreis.
Der schnellste Weg zu uns ist nur einen Klick entfernt. Nutzen Sie bitte die Schaltfläche „Nachricht“ und schreiben Sie uns darüber eine E-Mail.
Da dies ein weitgehend automatisierter Prozess ist, erhalten Sie so kurzfristig die Adresse der Immobilie und können diese anschließend diskret von außen besichtigen.
Lage
Die Büroeinheit befindet sich in zentraler Lage von Solingen-Merscheid, einem etablierten Gewerbe- und Dienstleistungsstandort mit sehr guter Anbindung an das regionale Verkehrsnetz. Die Umgebung ist geprägt von einer ausgewogenen Mischung aus gewerblichen Nutzungen, kleinen Unternehmen und Wohnbebauung, was für ein angenehmes und lebendiges Umfeld sorgt.
Die Anbindung an das öffentliche Nahverkehrsnetz ist hervorragend: Bushaltestellen befinden sich in fußläufiger Entfernung, und der Solinger Hauptbahnhof ist in wenigen Minuten erreichbar. Von dort bestehen regelmäßige Zugverbindungen in Richtung Düsseldorf, Wuppertal und Köln.
Auch die überregionale Erreichbarkeit ist sehr gut. Die Autobahnanschlüsse zur A3, A46 und A59 sind schnell zu erreichen und ermöglichen eine zügige Anbindung an die umliegenden Städte des Bergischen Landes sowie an die Ballungsräume Düsseldorf, Köln und Wuppertal.
In unmittelbarer Nähe finden sich diverse Einkaufsmöglichkeiten, Restaurants und Versorgungseinrichtungen des täglichen Bedarfs. Für Mitarbeitende und Besucher stehen somit ein attraktives Umfeld und eine komfortable Infrastruktur zur Verfügung – ideale Voraussetzungen für einen modernen Bürostandort in gepflegter Umgebung.
42655 Solingen, Deutschland (auf Google Maps ansehen)
















